悠悠ホーム

悠悠ホーム

空気環境を徹底的に整え、家族が快適に暮らせる「健康志向」の木の家づくり
お気に入りに追加する
佐賀県鳥栖市  Kさん
【吹抜け/外断熱/2階建て】落ち着いたグレイッシュがかっこいい!ホテルライクなこだわりが実現したお家
悠悠ホーム 【吹抜け/外断熱/2階建て】落ち着いたグレイッシュがかっこいい!ホテルライクなこだわりが実現したお家の建築実例画像1
  • 本体価格
    2,000万円2,499万円
    64.2万円80.2万円/坪
  • 延床面積
    103.07m2 (31.1坪)
    敷地面積
    226.26m2 (68.4坪)
    家族構成
    夫婦
  • 竣工年月
    2021年6月
    工法
    木造軸組(外断熱工法)
この会社をもっと知りたくなったら
無料でお届け!まずはカタログ請求

施主Kさんのこだわり

落ち着いたグレイッシュがかっこいい!ホテルライクなこだわりが実現した理想のお家

おふたりとも実家が築50~80年という伝統的な日本家屋。そのイメージもあって、外観は横幅のある“どーんとして安定感のあるイメージ”(奥様談)が理想でした。家づくりのスタートはやはり住宅展示場です。「ふたりで近くの住宅展示場に行って、好みの外観から攻めていったんですけど、実は悠悠ホームのモデルハウスには一番最後に行ったんですよ」と笑いながら話してくれました。それでも「担当のスタッフの方の人柄と説明の分かりやすさに感動しました!」とご夫婦とも納得。特に「性能の… 続きを読む

おふたりとも実家が築50~80年という伝統的な日本家屋。そのイメージもあって、外観は横幅のある“どーんとして安定感のあるイメージ”(奥様談)が理想でした。家づくりのスタートはやはり住宅展示場です。「ふたりで近くの住宅展示場に行って、好みの外観から攻めていったんですけど、実は悠悠ホームのモデルハウスには一番最後に行ったんですよ」と笑いながら話してくれました。それでも「担当のスタッフの方の人柄と説明の分かりやすさに感動しました!」とご夫婦とも納得。特に「性能の話はとっても大事なことだったんですけど、その認識が全くなく、しっかりと話してくれたおかげで一気に悠悠ホームで!という気持ちが高まりました」とはご主人。決め手は、この人に任せたら大丈夫という担当営業の安心感と信頼感と、さらに外断熱工法とサクラテクノロジーという住宅性能の高さでした。

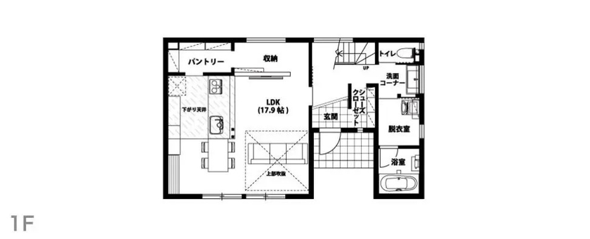
間取り図(3LDK)

1階
悠悠ホーム 【吹抜け/外断熱/2階建て】落ち着いたグレイッシュがかっこいい!ホテルライクなこだわりが実現したお家の間取り図(3LDK)1階
2階
悠悠ホーム 【吹抜け/外断熱/2階建て】落ち着いたグレイッシュがかっこいい!ホテルライクなこだわりが実現したお家の間取り図(3LDK)2階
この会社をもっと知りたくなったら
無料でお届け!まずはカタログ請求

内外観ギャラリー

この会社をもっと知りたくなったら
無料でお届け!まずはカタログ請求

この会社の他の建築実例を見る

この建築実例が気になった方へおすすめ

この建築実例の詳細情報

この建築実例を建てた店舗情報

店舗名 本社
住所 福岡県大野城市筒井4-4-17
問い合わせ
092-592-7012
  • ※営業時間内の対応となります。

  • ※お問い合わせの際は「SUUMO(スーモ)を見て」とお伝え下さい。

ホームページ この会社のホームページへ

悠悠ホームのコンテンツ一覧

お問い合わせ

カタログをもらう
施工実例集
悠悠ホームのカタログ(特選!施工実例集)
特選!施工実例集
問合コード:0739620001
イベントに参加する

この会社が気になったら

カタログをもらう
施工実例集
悠悠ホームのカタログ(特選!施工実例集)
特選!施工実例集
問合コード:0739620001
イベントに参加する

関連キーワード

この建築実例のその他の特徴
ページトップへ戻る