maida koumuten

希望予算でプランが叶う親身な対応 丁寧施工とフォロー体制を徹底
お気に入りに追加する
北海道札幌市北区  Oさん
【2000万円台/札幌市/間取り/ブルックリンテイスト】こだわりが随所に光るブルックリンテイストの家
maida koumuten 【2000万円台/札幌市/間取り/ブルックリンテイスト】こだわりが随所に光るブルックリンテイストの家の建築実例画像1
  • 本体価格
    2,350万円
  • 延床面積
    -
    敷地面積
    -
    家族構成
    -
  • 竣工年月
    -
    工法
    木造軸組
この会社をもっと知りたくなったら
無料でお届け!まずはカタログ請求

施主Oさんのこだわり

こだわりの追求と標準仕様のグレードが決め手!

自分のこだわりをとことん追求しつつも、性能&標準仕様のグレードの高さを軸に会社選びをしていたOさん。マイダ工務店では標準仕様で床暖房を採用できつつ、気密断熱性に優れているので月々のランニングコストを抑えられる点が決め手になったとのこと

自分のこだわりをとことん追求しつつも、性能&標準仕様のグレードの高さを軸に会社選びをしていたOさん。マイダ工務店では標準仕様で床暖房を採用できつつ、気密断熱性に優れているので月々のランニングコストを抑えられる点が決め手になったとのこと

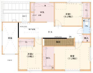
間取り図(4LDK)

1階
maida koumuten 【2000万円台/札幌市/間取り/ブルックリンテイスト】こだわりが随所に光るブルックリンテイストの家の間取り図(4LDK)1階
2階
maida koumuten 【2000万円台/札幌市/間取り/ブルックリンテイスト】こだわりが随所に光るブルックリンテイストの家の間取り図(4LDK)2階
この会社をもっと知りたくなったら
無料でお届け!まずはカタログ請求

内外観ギャラリー

この会社をもっと知りたくなったら
無料でお届け!まずはカタログ請求

この会社の他の建築実例を見る

この建築実例が気になった方へおすすめ

この建築実例の詳細情報

この建築実例を建てた店舗情報

住所 北海道札幌市東区北35条東25丁目4-16
問い合わせ
011-787-3535
  • ※営業時間内の対応となります。

  • ※お問い合わせの際は「SUUMO(スーモ)を見て」とお伝え下さい。

ホームページ この会社のホームページへ

maida koumutenのコンテンツ一覧

お問い合わせ

カタログをもらう
イベントに参加する
お問い合わせ先
011-787-3535
  • ※営業時間内の対応となります。

  • ※お問い合わせの際は「SUUMO(スーモ)を見て」とお伝え下さい。

  • 北海道札幌市東区北35条東25丁目4-16

  • 定休日:-

この会社のホームページへ
カタログ一覧

この会社が気になったら

カタログをもらう
イベントに参加する

関連キーワード

この建築実例のその他の特徴
ページトップへ戻る