VIVACE / 中谷建設工業

呉エリアでデザイン住宅を。土地探しからワンストップでサービスを
お気に入りに追加する
広島県  Hさん
【1500万円~2000万円台】日当たりが悪い立地でも、吹き抜けで光を集める明るいお家
VIVACE / 中谷建設工業 【1500万円~2000万円台】日当たりが悪い立地でも、吹き抜けで光を集める明るいお家の建築実例画像1
  • 本体価格
    1,500万円1,999万円
    47.2万円62.9万円/坪
  • 延床面積
    105.16m2 (31.8坪)
    敷地面積
    -
    家族構成
    -
  • 竣工年月
    -
    工法
    木造軸組
この会社をもっと知りたくなったら
無料でお届け!まずはカタログ請求

施主Hさんのこだわり

「デザイン性」&「標準仕様の高さ」&「予算内」で大満足の家を実現

利便性のいいところに購入した土地だが、日当たりの難があった。「できるだけ明るく、子どもたちが安全に育つように」という願いを託して依頼されたご家族。大きな吹き抜けや、高窓を通して光が入り、大好きな赤の鏡面仕上げのキッチンなどデザイン性も高く、「しかも予算内で念願のわが家を実現できて、大満足です」とおっしゃられていた。

利便性のいいところに購入した土地だが、日当たりの難があった。「できるだけ明るく、子どもたちが安全に育つように」という願いを託して依頼されたご家族。大きな吹き抜けや、高窓を通して光が入り、大好きな赤の鏡面仕上げのキッチンなどデザイン性も高く、「しかも予算内で念願のわが家を実現できて、大満足です」とおっしゃられていた。

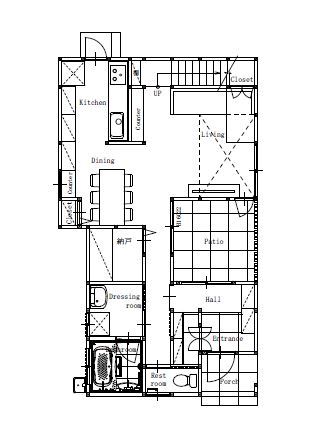
間取り図(3LDK)

1階
VIVACE / 中谷建設工業 【1500万円~2000万円台】日当たりが悪い立地でも、吹き抜けで光を集める明るいお家の間取り図(3LDK)1階
2階
VIVACE / 中谷建設工業 【1500万円~2000万円台】日当たりが悪い立地でも、吹き抜けで光を集める明るいお家の間取り図(3LDK)2階
この会社をもっと知りたくなったら
無料でお届け!まずはカタログ請求

内外観ギャラリー

この会社をもっと知りたくなったら
無料でお届け!まずはカタログ請求

この会社の他の建築実例を見る

この建築実例が気になった方へおすすめ

  • この建築実例のカタログをもらう

    VIVACE / 中谷建設工業のカタログ画像
    総合カタログ
    中谷建設工業のカタログ
    中谷建設工業のカタログです

この建築実例の詳細情報

この建築実例を建てた店舗情報

住所 広島県呉市中央3丁目3-17
問い合わせ
0823-21-2420
  • ※営業時間内の対応となります。

  • ※お問い合わせの際は「SUUMO(スーモ)を見て」とお伝え下さい。

ホームページ この会社のホームページへ

VIVACE / 中谷建設工業のコンテンツ一覧

お問い合わせ

カタログをもらう
総合カタログ
VIVACE / 中谷建設工業のカタログ(中谷建設工業のカタログ)
中谷建設工業のカタログ
問合コード:1507580001
お問い合わせ先
0823-21-2420
  • ※営業時間内の対応となります。

  • ※お問い合わせの際は「SUUMO(スーモ)を見て」とお伝え下さい。

  • 広島県呉市中央3丁目3-17

  • 定休日:なし

この会社のホームページへ

この会社が気になったら

カタログをもらう
総合カタログ
VIVACE / 中谷建設工業のカタログ(中谷建設工業のカタログ)
中谷建設工業のカタログ
問合コード:1507580001

関連キーワード

この建築実例のその他の特徴
ページトップへ戻る