内藤建設 NAITO HOME

内藤建設 NAITO HOME

デザイン性×強靭な耐震構造。確かな信頼と技術で「理想の暮らし」を実現する地元企業
お気に入りに追加する
岐阜県  Tさん
【2000万円台×4LDK】すべての水回りを回遊できる、家事ラク動線で毎日にゆとりを
内藤建設 NAITO HOME 【2000万円台×4LDK】すべての水回りを回遊できる、家事ラク動線で毎日にゆとりをの建築実例画像1
  • 本体価格
    2,000万円2,499万円
    61.9万円77.4万円/坪
  • 延床面積
    106.82m2 (32.3坪)
    敷地面積
    333.00m2 (100.7坪)
    家族構成
    夫婦(20代)+子ども1人
  • 竣工年月
    2024年4月
    工法
    その他(独自認定工法等)(パナソニック耐震住宅工法テクノストラクチャー)
この会社をもっと知りたくなったら
無料でお届け!まずはカタログ請求

施主Tさんのこだわり

シンプルなデザインの中にもこだわりが光る、あたたかく居心地の良い空間

暮らしやすさや便利さを重視しつつ、見た目にもこだわりたいというTさん。外観はベースに高級感のあるブラックを採用し、アクセントにベージュの石目調サイディングを取り入れることで、飽きのこない洗練されたデザインに仕上がっている。LDKは、穏やかでやわらかなグレージュのフローリングに、少し濃いめのグレーのキッチンが映える。トリプルワイドIHと全面ガラスパネルを施したこだわりのキッチンは、大きな鍋やフライパンを3つ並べて同時に使えるため料理の効率が格段にアップ。リビ… 続きを読む

暮らしやすさや便利さを重視しつつ、見た目にもこだわりたいというTさん。外観はベースに高級感のあるブラックを採用し、アクセントにベージュの石目調サイディングを取り入れることで、飽きのこない洗練されたデザインに仕上がっている。LDKは、穏やかでやわらかなグレージュのフローリングに、少し濃いめのグレーのキッチンが映える。トリプルワイドIHと全面ガラスパネルを施したこだわりのキッチンは、大きな鍋やフライパンを3つ並べて同時に使えるため料理の効率が格段にアップ。リビングで遊んでいるお子様の様子を見守りながら料理ができるのも嬉しいポイントだ。小さなお子様がいるTさんには、毎日の生活がより効率的に快適になるようにと、すべての水回りを回遊できる動線を提案した。忙しい朝でも料理をしながら洗濯ができるなど家事の時短に。「理想的な間取りが実現できました。家づくりは大変なこともあったが、今住んでみて頑張ってよかったと心から思っています。妥協はせずにたくさん悩んで決めたことで自分たちにぴったりな家になりました。」シンプルでありながら細部にまでこだわりが感じられるあたたかい住まいが完成した。

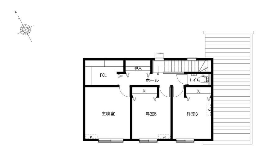
間取り図(4LDK)

1階
内藤建設 NAITO HOME 【2000万円台×4LDK】すべての水回りを回遊できる、家事ラク動線で毎日にゆとりをの間取り図(4LDK)1階
2階
内藤建設 NAITO HOME 【2000万円台×4LDK】すべての水回りを回遊できる、家事ラク動線で毎日にゆとりをの間取り図(4LDK)2階
この会社をもっと知りたくなったら
無料でお届け!まずはカタログ請求

内外観ギャラリー

この会社をもっと知りたくなったら
無料でお届け!まずはカタログ請求

この会社の他の建築実例を見る

この建築実例が気になった方へおすすめ

この建築実例の詳細情報

この建築実例を建てた店舗情報

住所 岐阜県各務原市那加前洞新町4丁目193
問い合わせ
0120-40-3031
  • ※営業時間内の対応となります。

  • ※お問い合わせの際は「SUUMO(スーモ)を見て」とお伝え下さい。

ホームページ この会社のホームページへ

内藤建設 NAITO HOMEのコンテンツ一覧

お問い合わせ

カタログをもらう
総合カタログ
内藤建設 NAITO HOMEのカタログ(【パナソニックビルダーズグループ】NAITO HOME 総合カタログ)
【パナソニックビルダーズグループ】NAITO HOME 総合カタログ
問合コード:1430720001
お問い合わせ先
0120-40-3031
  • ※営業時間内の対応となります。

  • ※お問い合わせの際は「SUUMO(スーモ)を見て」とお伝え下さい。

  • 岐阜県各務原市那加前洞新町4丁目193

  • 定休日:火曜日・水曜日

この会社のホームページへ

この会社が気になったら

カタログをもらう
総合カタログ
内藤建設 NAITO HOMEのカタログ(【パナソニックビルダーズグループ】NAITO HOME 総合カタログ)
【パナソニックビルダーズグループ】NAITO HOME 総合カタログ
問合コード:1430720001

関連キーワード

この建築実例のその他の特徴
ページトップへ戻る