内藤建設 NAITO HOME

内藤建設 NAITO HOME

デザイン性×強靭な耐震構造。確かな信頼と技術で「理想の暮らし」を実現する地元企業
お気に入りに追加する
岐阜県  Oさん
【3000万円台/4LDK】アイスブルーの玄関ドアが可愛い"cafe like"な家
内藤建設 NAITO HOME 【3000万円台/4LDK】アイスブルーの玄関ドアが可愛い"cafe like"な家の建築実例画像1
  • 本体価格
    3,000万円3,499万円
    72.9万円85.0万円/坪
  • 延床面積
    136.21m2 (41.2坪)
    敷地面積
    248.59m2 (75.1坪)
    家族構成
    夫婦(30代)+子ども2人
  • 竣工年月
    2023年12月
    工法
    その他(独自認定工法等)(パナソニック耐震住宅工法テクノストラクチャー)
この会社をもっと知りたくなったら
無料でお届け!まずはカタログ請求

施主Oさんのこだわり

いつまでも過ごしたくなる、理想の空間をカタチにした家づくり

「室内はこの写真がイメージにぴったりなんです!」とOさんが見せてくれたのは、ホワイトとグレージュで統一された、まるでカフェのようなリラックスした雰囲気が漂う空間。そんなOさんの理想をカタチにする家づくりがスタート。写真のイメージを反映しつつ、好みのカラーや素材を取り入れて自分らしさを表現した。フローリング、階段、扉、アクセントクロスをグレージュの色合いでまとめた優しい雰囲気の中に、上品な淡いピンクのキッチンが華やかさを添える。随所にちりばめられたアイアンパ… 続きを読む

「室内はこの写真がイメージにぴったりなんです!」とOさんが見せてくれたのは、ホワイトとグレージュで統一された、まるでカフェのようなリラックスした雰囲気が漂う空間。そんなOさんの理想をカタチにする家づくりがスタート。写真のイメージを反映しつつ、好みのカラーや素材を取り入れて自分らしさを表現した。フローリング、階段、扉、アクセントクロスをグレージュの色合いでまとめた優しい雰囲気の中に、上品な淡いピンクのキッチンが華やかさを添える。随所にちりばめられたアイアンパーツとガラスのペンダントライトがアクセントとなり、洗練された中にも個性が感じられる仕上がりとなった。キッチンから洗面・バスルームと直線でつながっており、無駄な動きを無くした使いやすい家事動線も魅力だ。使い勝手と収納力を兼ね備えた洗面所は、棚の位置を自由に調整できるためアイテムごとに最適な配置が可能。洗面用具やタオル、日用品などをすっきりと収納でき、広さを感じさせる余裕のある設計となっている。「洗面所は今まで狭くごちゃごちゃしていて嫌だったので、贅沢に3帖+可動棚を2つ付けてもらい、広くてストレスフリーです。こだわって良かったです」

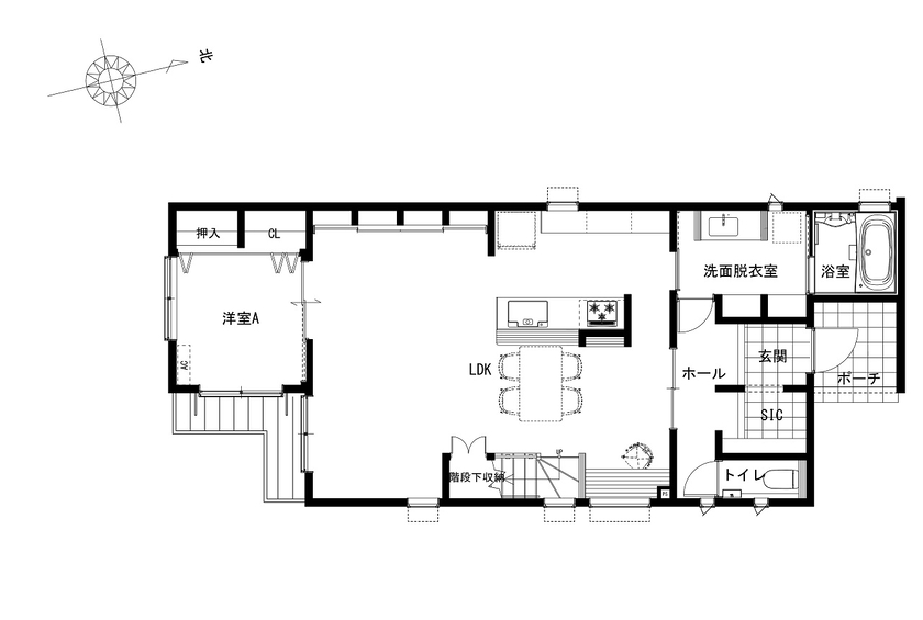
間取り図(4LDK)

1階
内藤建設 NAITO HOME 【3000万円台/4LDK】アイスブルーの玄関ドアが可愛い"cafe like"な家の間取り図(4LDK)1階
2階
内藤建設 NAITO HOME 【3000万円台/4LDK】アイスブルーの玄関ドアが可愛い"cafe like"な家の間取り図(4LDK)2階
この会社をもっと知りたくなったら
無料でお届け!まずはカタログ請求

内外観ギャラリー

この会社をもっと知りたくなったら
無料でお届け!まずはカタログ請求

この会社の他の建築実例を見る

この建築実例が気になった方へおすすめ

この建築実例の詳細情報

この建築実例を建てた店舗情報

住所 岐阜県各務原市那加前洞新町4丁目193
問い合わせ
0120-40-3031
  • ※営業時間内の対応となります。

  • ※お問い合わせの際は「SUUMO(スーモ)を見て」とお伝え下さい。

ホームページ この会社のホームページへ

内藤建設 NAITO HOMEのコンテンツ一覧

お問い合わせ

カタログをもらう
総合カタログ
内藤建設 NAITO HOMEのカタログ(【パナソニックビルダーズグループ】NAITO HOME 総合カタログ)
【パナソニックビルダーズグループ】NAITO HOME 総合カタログ
問合コード:1430720001
お問い合わせ先
0120-40-3031
  • ※営業時間内の対応となります。

  • ※お問い合わせの際は「SUUMO(スーモ)を見て」とお伝え下さい。

  • 岐阜県各務原市那加前洞新町4丁目193

  • 定休日:火曜日・水曜日

この会社のホームページへ

この会社が気になったら

カタログをもらう
総合カタログ
内藤建設 NAITO HOMEのカタログ(【パナソニックビルダーズグループ】NAITO HOME 総合カタログ)
【パナソニックビルダーズグループ】NAITO HOME 総合カタログ
問合コード:1430720001

関連キーワード

この建築実例のその他の特徴
ページトップへ戻る