いがみ建築工房 伊神建設

いがみ建築工房 伊神建設

岐阜|木を活かし、手間を惜しまない。「この家を建ててよかった」と、ずっと思える家
お気に入りに追加する
岐阜県各務原市  Iさん
【各務原市|自然素材】日本伝統の「土蔵造り」をほうふつとさせる、どこか懐かしさを感じる「小さな家」
いがみ建築工房 伊神建設 【各務原市|自然素材】日本伝統の「土蔵造り」をほうふつとさせる、どこか懐かしさを感じる「小さな家」の建築実例画像1
  • 本体価格
    3,000万円3,499万円
    113.0万円131.8万円/坪
  • 延床面積
    87.78m2 (26.5坪)
    敷地面積
    152.00m2 (45.9坪)
    家族構成
    夫婦+子ども1人
  • 竣工年月
    2018年12月
    工法
    木造軸組
この会社をもっと知りたくなったら
無料でお届け!まずはカタログ請求

施主Iさんのこだわり

「土地+建物で、小さくても好きなものに囲まれて安らげる家を目指し依頼しました」

「お友達の家へ遊びに行くたびに素敵なお家だなって思っていて、こんな家に住めたらいいな、と教えてもらったのが『いがみ建築工房』です」とI夫妻。これまで分譲マンションで暮らしていたが、そろそろ子どもも小学生。自然素材でできた家の心地よさ、清々しさを知ってしまい、子どもをのびのび育てる意味でも「いがみ建築工房」で建てようと決心したそう。決め手のポイントは何といっても自然素材の温もりとその素材を活かした素朴さであり、植栽も含めて日本の気候、街並みを考慮して建てるシ… 続きを読む

「お友達の家へ遊びに行くたびに素敵なお家だなって思っていて、こんな家に住めたらいいな、と教えてもらったのが『いがみ建築工房』です」とI夫妻。これまで分譲マンションで暮らしていたが、そろそろ子どもも小学生。自然素材でできた家の心地よさ、清々しさを知ってしまい、子どもをのびのび育てる意味でも「いがみ建築工房」で建てようと決心したそう。決め手のポイントは何といっても自然素材の温もりとその素材を活かした素朴さであり、植栽も含めて日本の気候、街並みを考慮して建てるシンプルでナチュラルなデザイン性だ。何度も見学会に参加した二人は、「小さな家でも、いいえ、小さな家だからこそ自然素材の愛しさが伝わってきたし、話しやすい社長に代表されるスタッフの人柄、目指す家づくりの考え方に共感できたことも決め手です」と話す。そんな夫妻は土地も探していたため「土地+建物」で自然の息吹きを感じる植栽も一緒に依頼。小さくても好きなものに囲まれ、心身ともに安らげる家を目指したと話す。こうして完成したIさんの家はどこか懐かしさを感じる白い漆喰と杉の板張り外壁でデザイン。植栽に囲まれたウッドデッキもあり、マンションライフではかなわなかった子どもと一緒にガーデニングが楽しめるマイホームができたと楽しそうに話してくれた。

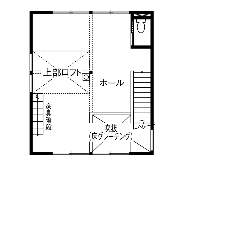
間取り図(1LDK+2階ホール)

1階
いがみ建築工房 伊神建設 【各務原市|自然素材】日本伝統の「土蔵造り」をほうふつとさせる、どこか懐かしさを感じる「小さな家」の間取り図(1LDK+2階ホール)1階
2階
いがみ建築工房 伊神建設 【各務原市|自然素材】日本伝統の「土蔵造り」をほうふつとさせる、どこか懐かしさを感じる「小さな家」の間取り図(1LDK+2階ホール)2階
この会社をもっと知りたくなったら
無料でお届け!まずはカタログ請求

内外観ギャラリー

この会社をもっと知りたくなったら
無料でお届け!まずはカタログ請求

この会社の他の建築実例を見る

この建築実例が気になった方へおすすめ

この建築実例の詳細情報

この建築実例を建てた店舗情報

住所 岐阜県各務原市桜木町4丁目25番地<ガーデンテラス鵜沼駅前II内>
問い合わせ
0120-853-805
  • ※営業時間内の対応となります。

  • ※お問い合わせの際は「SUUMO(スーモ)を見て」とお伝え下さい。

ホームページ この会社のホームページへ

いがみ建築工房 伊神建設のコンテンツ一覧

お問い合わせ

カタログをもらう
総合カタログ
いがみ建築工房 伊神建設のカタログ(はじまりは“小さなおうち”から)
はじまりは“小さなおうち”から
問合コード:1309390001
イベントに参加する
お問い合わせ先
0120-853-805
  • ※営業時間内の対応となります。

  • ※お問い合わせの際は「SUUMO(スーモ)を見て」とお伝え下さい。

  • 岐阜県各務原市桜木町4丁目25番地<ガーデンテラス鵜沼駅前II内>

  • 定休日:水曜日

この会社のホームページへ

この会社が気になったら

カタログをもらう
総合カタログ
いがみ建築工房 伊神建設のカタログ(はじまりは“小さなおうち”から)
はじまりは“小さなおうち”から
問合コード:1309390001
イベントに参加する

関連キーワード

この建築実例のその他の特徴
ページトップへ戻る