大喜工務店

大喜工務店

自然乾燥したヒノキを使用するなど、一切妥協ないこだわりを低コストで実現
お気に入りに追加する
滋賀県野洲市  Iさん
【滋賀県/2000万円台/自然乾燥無垢材/造り付け本棚】住宅密集地の細長い敷地でも明るく伸びやかな家
大喜工務店 【滋賀県/2000万円台/自然乾燥無垢材/造り付け本棚】住宅密集地の細長い敷地でも明るく伸びやかな家の建築実例画像1
  • 本体価格
    2,500万円2,999万円
    51.1万円61.3万円/坪
  • 延床面積
    161.94m2 (48.9坪)
    敷地面積
    354.79m2 (107.3坪)
    家族構成
    夫婦+子ども2人
  • 竣工年月
    2016年4月
    工法
    木造軸組
この会社をもっと知りたくなったら
無料でお届け!まずはカタログ請求

施主Iさんのこだわり

つなげて、仕切って住空間をフレキシブルに活用。家族共通のライブラリーもお気に入り

見学会に参加し、大喜工務店の家を初めて見たIさんは極太の柱や美しい木組みを見て「この家はすごい!!」と実感。さらにその場で大喜工務店の社長から使っている木材は自然乾燥した無垢材で、その無垢材の強さや住み心地の良さなどについて説明を受けた。木の品質の高さと家づくりへの情熱に感銘を受けたIさんは、大喜工務店で家を建てる事を決意。Iさんが希望したのは陽射しがたっぷり入り、風通しがいい家。というのも、細長い敷地形状に加えて住宅密集地であることから採光・通風について… 続きを読む

見学会に参加し、大喜工務店の家を初めて見たIさんは極太の柱や美しい木組みを見て「この家はすごい!!」と実感。さらにその場で大喜工務店の社長から使っている木材は自然乾燥した無垢材で、その無垢材の強さや住み心地の良さなどについて説明を受けた。木の品質の高さと家づくりへの情熱に感銘を受けたIさんは、大喜工務店で家を建てる事を決意。Iさんが希望したのは陽射しがたっぷり入り、風通しがいい家。というのも、細長い敷地形状に加えて住宅密集地であることから採光・通風について心配していた。さらに住空間は広いLDKをのぞむものの、リビングとダイニングを仕切って個別の空間としても使いたいと希望。読書好きなIさんは本棚を造り付け、家族共有のライブラリーのような空間も望んだ。設計の打合せはじっくり時間をかけて熟考。「打ち合わせのたびに社長から宿題をもらうんです。建築雑誌を買い込み、どんな家が自分たちにとって住みやすい家なのかを勉強しました」というIさん。おかげで細長い土地でも採光・通風ともに充分。また、仕切れるLDKやライブラリーはもちろん、家事ラクな動線や収納スペース、ふた部屋に仕切ることもできる子ども室などいろんな場所に自分たちの思いを反映。「お仕着せの家ではなく、自分たちの思い通りの家ができました」とIさん。

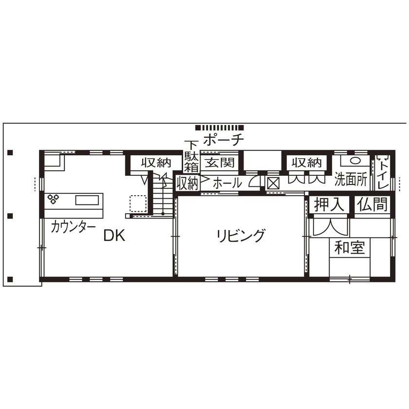
間取り図(4LDK+WIC)

1階
大喜工務店 【滋賀県/2000万円台/自然乾燥無垢材/造り付け本棚】住宅密集地の細長い敷地でも明るく伸びやかな家の間取り図(4LDK+WIC)1階
2階
大喜工務店 【滋賀県/2000万円台/自然乾燥無垢材/造り付け本棚】住宅密集地の細長い敷地でも明るく伸びやかな家の間取り図(4LDK+WIC)2階
この会社をもっと知りたくなったら
無料でお届け!まずはカタログ請求

内外観ギャラリー

この会社をもっと知りたくなったら
無料でお届け!まずはカタログ請求

この建築実例の担当者

大喜工務店の担当者画像
代表取締役社長
藤田喜代次
得意分野
強さを証明したり、安全性を確認すること。そんな風には見えないけれど、元々はじっくり研究者肌
実績
200棟

この会社の他の建築実例を見る

この建築実例が気になった方へおすすめ

  • この建築実例のカタログをもらう

    大喜工務店のカタログ画像
    総合カタログ
    建築のプロが認める無添加骨太住宅
    大喜工務店のこだわりや実例などを紹介しています。

この建築実例の詳細情報

この建築実例を建てた店舗情報

住所 滋賀県東近江市平田町764
問い合わせ
0748-22-0028
  • ※営業時間内の対応となります。

  • ※お問い合わせの際は「SUUMO(スーモ)を見て」とお伝え下さい。

ホームページ この会社のホームページへ

大喜工務店のコンテンツ一覧

お問い合わせ

カタログをもらう
総合カタログ
大喜工務店のカタログ(建築のプロが認める無添加骨太住宅)
建築のプロが認める無添加骨太住宅
問合コード:1736170001
お問い合わせ先
0748-22-0028
  • ※営業時間内の対応となります。

  • ※お問い合わせの際は「SUUMO(スーモ)を見て」とお伝え下さい。

  • 滋賀県東近江市平田町764

  • 定休日:無休

この会社のホームページへ

この会社が気になったら

カタログをもらう
総合カタログ
大喜工務店のカタログ(建築のプロが認める無添加骨太住宅)
建築のプロが認める無添加骨太住宅
問合コード:1736170001

関連キーワード

この建築実例のその他の特徴
ページトップへ戻る