サイト工業 はぐくみの木の家(宮城・福島)

サイト工業 はぐくみの木の家(宮城・福島)

太陽の恵みと四季の風。自然とともに暮らす日々。豊かな暮らしを愉しむための家づくり
お気に入りに追加する
福島県福島市  S.Hさん
【2200万円/間取り図有/薪ストーブのある家】開放的な2階リビングと木の温もり、薪ストーブがある家。
サイト工業 はぐくみの木の家(宮城・福島) 【2200万円/間取り図有/薪ストーブのある家】開放的な2階リビングと木の温もり、薪ストーブがある家。の建築実例画像1
  • 本体価格
    2,200万円
    59.8万円/坪
  • 延床面積
    121.72m2 (36.8坪)
    敷地面積
    165.29m2 (50.0坪)
    家族構成
    夫婦+子ども1人
  • 竣工年月
    2018年11月
    工法
    木造軸組
この会社をもっと知りたくなったら
無料でお届け!まずはカタログ請求

施主S.Hさんのこだわり

手作りの棚や収納も希望通り!家事動線も良好で、暮らし心地にも大満足

「いつも通るところにはぐくみの木の家の展示場があり、自分好みの展示場だと思い気になっていた」というS.Hさん。子どもができたことをきっかけに、本格的に家づくりを考えて展示場に足を運んだ。「住まいづくりの考え方が自分の考えに合っていた」という。敷地の条件を考えて2階リビングにしてもらったこと、ゆったりと緑を眺めることができるウッドデッキ、薪ストーブという提案も気に入った。「まわりを気にせず過ごせるうえに、開放的で採光がとれる2階リビングがとてもいい」という。… 続きを読む

「いつも通るところにはぐくみの木の家の展示場があり、自分好みの展示場だと思い気になっていた」というS.Hさん。子どもができたことをきっかけに、本格的に家づくりを考えて展示場に足を運んだ。「住まいづくりの考え方が自分の考えに合っていた」という。敷地の条件を考えて2階リビングにしてもらったこと、ゆったりと緑を眺めることができるウッドデッキ、薪ストーブという提案も気に入った。「まわりを気にせず過ごせるうえに、開放的で採光がとれる2階リビングがとてもいい」という。1階には、住まいをポカポカやさしく暖めてくれる暖炉があり、ライブラリースペースに座って火を眺めながら読書を楽しむことができるそう。また既製品ではなく「カップボード、洗面室、収納、本棚など、手作りのものを取り入れたい」という希望通り、造作棚や収納を設けて、温かみのある空間に仕上がった。「水回り等の家事動線と収納がとても使いやすく、洗濯、洗濯干し、収納の流れがとても気にいっています。収納もたっぷりで家事も楽しくなります。木の香りが気持ちいいです」と自然素材をたっぷり使った自慢のマイホームに満足している。外観もおしゃれなツートーンに仕上げシンプルに仕上がっている。家族3人のご要望がたっぷりつまった総二階の夢のマイホームを是非参考にしてほしい。

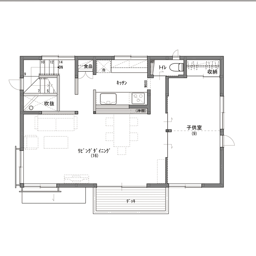
間取り図(2LDK(3LDK対応))

1階
サイト工業 はぐくみの木の家(宮城・福島) 【2200万円/間取り図有/薪ストーブのある家】開放的な2階リビングと木の温もり、薪ストーブがある家。の間取り図(2LDK(3LDK対応))1階
2階
サイト工業 はぐくみの木の家(宮城・福島) 【2200万円/間取り図有/薪ストーブのある家】開放的な2階リビングと木の温もり、薪ストーブがある家。の間取り図(2LDK(3LDK対応))2階
この会社をもっと知りたくなったら
無料でお届け!まずはカタログ請求

内外観ギャラリー

この会社をもっと知りたくなったら
無料でお届け!まずはカタログ請求

この会社の他の建築実例を見る

この建築実例が気になった方へおすすめ

この建築実例の詳細情報

この建築実例を建てた店舗情報

住所 宮城県仙台市若林区卸町2-6-11
問い合わせ
0120-310-275
  • ※営業時間内の対応となります。

  • ※お問い合わせの際は「SUUMO(スーモ)を見て」とお伝え下さい。

ホームページ この会社のホームページへ

サイト工業 はぐくみの木の家(宮城・福島)のコンテンツ一覧

お問い合わせ

カタログをもらう
施工実例集
サイト工業 はぐくみの木の家(宮城・福島)のカタログ(はぐくみの木の家「実例集」)
はぐくみの木の家「実例集」
問合コード:1683770001
お問い合わせ先
0120-310-275
  • ※営業時間内の対応となります。

  • ※お問い合わせの際は「SUUMO(スーモ)を見て」とお伝え下さい。

  • 宮城県仙台市若林区卸町2-6-11

  • 定休日:毎週火曜日・水曜日

この会社のホームページへ

この会社が気になったら

カタログをもらう
施工実例集
サイト工業 はぐくみの木の家(宮城・福島)のカタログ(はぐくみの木の家「実例集」)
はぐくみの木の家「実例集」
問合コード:1683770001

関連キーワード

この建築実例のその他の特徴
ページトップへ戻る