ホーエーホーム(久留米・柳川)

ホーエーホーム(久留米・柳川)

「住み心地を大切に」暮らしの可能性を広げる自由設計の家づくり
お気に入りに追加する
福岡県柳川市  Kさん
【アメリカンヴィンテージ】【ガルバ外壁】アメリカンヴィンテージスタイルの家 堂々完成!
ホーエーホーム(久留米・柳川) 【アメリカンヴィンテージ】【ガルバ外壁】アメリカンヴィンテージスタイルの家 堂々完成!の建築実例画像1
  • 本体価格
    1,900万円1,999万円
    48.5万円51.0万円/坪
  • 延床面積
    129.58m2 (39.1坪)
    敷地面積
    331.05m2 (100.1坪)
    家族構成
    夫婦+子ども2人
  • 竣工年月
    工法
    木造軸組
この会社をもっと知りたくなったら
無料でお届け!まずはカタログ請求

施主Kさんのこだわり

施主様のこだわりが溢れたアメリカンヴィンテージスタイル

色々な住宅メーカーを見学していたKさん。ご実家のの田を造成してからの建築予定だったため造成から自社で出来るホーエーホームに決定。「全てお任せ出来るので、工程管理やご近所さんへの気配りなど全てにおいて大満足ですそれ以上に要望を完璧に応えてくれた営業・設計・工務・コーディネーターさんに感謝です」とKさん。建物の内装以外にも、持込み家具や照明まで、細かい所もコーディネートしてくれる弊社の協力体制は必見だ。2階フリースペースは、当初ご主人の映画鑑賞の為のスペースで… 続きを読む

色々な住宅メーカーを見学していたKさん。ご実家のの田を造成してからの建築予定だったため造成から自社で出来るホーエーホームに決定。「全てお任せ出来るので、工程管理やご近所さんへの気配りなど全てにおいて大満足ですそれ以上に要望を完璧に応えてくれた営業・設計・工務・コーディネーターさんに感謝です」とKさん。建物の内装以外にも、持込み家具や照明まで、細かい所もコーディネートしてくれる弊社の協力体制は必見だ。2階フリースペースは、当初ご主人の映画鑑賞の為のスペースでしたが、今では子ども達のおもちゃでいっぱいです。毎日家に帰るのが楽しみで、お友達を招いてのBBQやランチ会、お家時間が大好きになったとご夫婦。間取では、風水や地元神主様の意見を取り入れて「子どもがぐれない家」をテーマに、こだわった階段のアイアン手すりや、レッドシダー貼りの壁や天井、両面時計の位置に至るまでアメリカンヴィンテージスタイルを表現した家は、見どころ満載だ。

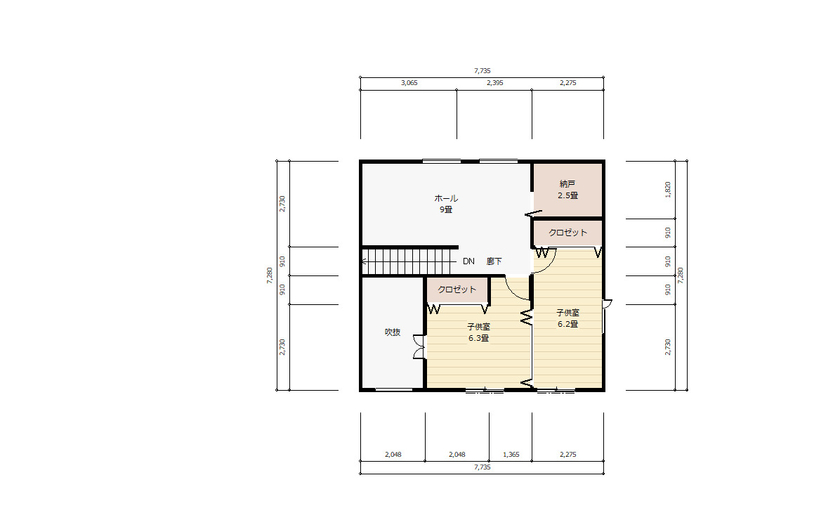
間取り図(4LDK)

1階
ホーエーホーム(久留米・柳川) 【アメリカンヴィンテージ】【ガルバ外壁】アメリカンヴィンテージスタイルの家 堂々完成!の間取り図(4LDK)1階
2階
ホーエーホーム(久留米・柳川) 【アメリカンヴィンテージ】【ガルバ外壁】アメリカンヴィンテージスタイルの家 堂々完成!の間取り図(4LDK)2階
この会社をもっと知りたくなったら
無料でお届け!まずはカタログ請求

内外観ギャラリー

この会社をもっと知りたくなったら
無料でお届け!まずはカタログ請求

この建築実例の担当者

ホーエーホーム(久留米・柳川)の担当者画像
待鳥 景子

この会社の他の建築実例を見る

この建築実例が気になった方へおすすめ

この建築実例の詳細情報

この建築実例を建てた店舗情報

店舗名 柳川展示場
住所 福岡県柳川市三橋町高畑210-2
問い合わせ
0120-188-578
  • ※営業時間内の対応となります。

  • ※お問い合わせの際は「SUUMO(スーモ)を見て」とお伝え下さい。

ホームページ この会社のホームページへ

ホーエーホーム(久留米・柳川)のコンテンツ一覧

お問い合わせ

カタログをもらう
総合カタログ
ホーエーホーム(久留米・柳川)のカタログ(ホーエーホーム自由設計の家づくり)
ホーエーホーム自由設計の家づくり
問合コード:1653790001
お問い合わせ先
0120-188-578
  • ※営業時間内の対応となります。

  • ※お問い合わせの際は「SUUMO(スーモ)を見て」とお伝え下さい。

柳川展示場
  • 福岡県柳川市三橋町高畑210-2

  • 定休日:水曜日

この会社のホームページへ

この会社が気になったら

カタログをもらう
総合カタログ
ホーエーホーム(久留米・柳川)のカタログ(ホーエーホーム自由設計の家づくり)
ホーエーホーム自由設計の家づくり
問合コード:1653790001

関連キーワード

この建築実例のその他の特徴
ページトップへ戻る