CRATCH(クラッチ)

CRATCH(クラッチ)

自然素材を生かしたおしゃれな高性能住宅で『家族がつながる家づくり』
お気に入りに追加する
福岡県北九州市小倉南区  Aさん
【北九州市/2545万円/2LDK/間取図有】愛猫も大満足!キャットウォークを創作した住み心地◎猫ちゃんハウス
CRATCH(クラッチ) 【北九州市/2545万円/2LDK/間取図有】愛猫も大満足!キャットウォークを創作した住み心地◎猫ちゃんハウスの建築実例画像1
  • 本体価格
    2,545万円
    83.0万円/坪
  • 延床面積
    101.43m2 (30.6坪)
    敷地面積
    182.48m2 (55.2坪)
    家族構成
    -
  • 竣工年月
    2019年7月
    工法
    木造軸組
この会社をもっと知りたくなったら
無料でお届け!まずはカタログ請求

施主Aさんのこだわり

夏は涼しく、冬は暖かい、防音もバッチリの快適で頑丈な住まい

8月に入居。「真夏」以外はすべての季節を経験して、住み心地の良さは想像通り。冬の 暖かさは嬉しかった!しかも防音もしっかり。扉を閉めていると、本当に静か。住み始めて気づいたメリットだった。改めて頑丈な家だと実感しました。家づくりのすべてに関わったので、不便なところはどこにもないと思うほど快適です。とお話をするご家族。ご主人はDIYが好きで、奥様お気に入りのボックスがぴったりと入る収納を造作。リビングの階段下、ネコ部屋に設置。以前は家が古くてインテリアを飾る… 続きを読む

8月に入居。「真夏」以外はすべての季節を経験して、住み心地の良さは想像通り。冬の 暖かさは嬉しかった!しかも防音もしっかり。扉を閉めていると、本当に静か。住み始めて気づいたメリットだった。改めて頑丈な家だと実感しました。家づくりのすべてに関わったので、不便なところはどこにもないと思うほど快適です。とお話をするご家族。ご主人はDIYが好きで、奥様お気に入りのボックスがぴったりと入る収納を造作。リビングの階段下、ネコ部屋に設置。以前は家が古くてインテリアを飾る気がしなかったが、家づくりを通して、新しい楽しみができたとのこと。また、クラッチでは、間取りや動線などご家族にぴったりのご提案が得意。こちらのご家族も当初は平屋を希望。以前の家では2階に行くのが面倒だったため。ただ土地の広さの関係で平屋にするのは難しく悩んでいたところ、「寝る以外は2階にいかない」ことを意識。1階ですべてができる動線、間取りに仕上げました。

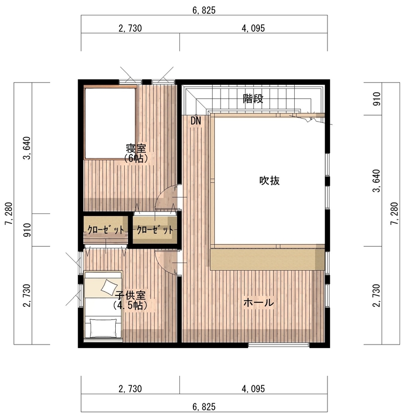
間取り図(2LDK+フリースペース)

1階
CRATCH(クラッチ) 【北九州市/2545万円/2LDK/間取図有】愛猫も大満足!キャットウォークを創作した住み心地◎猫ちゃんハウスの間取り図(2LDK+フリースペース)1階
2階
CRATCH(クラッチ) 【北九州市/2545万円/2LDK/間取図有】愛猫も大満足!キャットウォークを創作した住み心地◎猫ちゃんハウスの間取り図(2LDK+フリースペース)2階
この会社をもっと知りたくなったら
無料でお届け!まずはカタログ請求

内外観ギャラリー

この会社をもっと知りたくなったら
無料でお届け!まずはカタログ請求

この会社の他の建築実例を見る

この建築実例が気になった方へおすすめ

  • この建築実例のカタログをもらう

    CRATCH(クラッチ)のカタログ画像
    その他
    CRATCHコンセプトブック 
    素材や保証システムなどの説明に加え、施工例抜粋写真を掲載しています。

この建築実例の詳細情報

この建築実例を建てた店舗情報

住所 福岡県北九州市小倉南区富士見2丁目4-7 1F
問い合わせ
0120-939-837
  • ※営業時間内の対応となります。

  • ※お問い合わせの際は「SUUMO(スーモ)を見て」とお伝え下さい。

ホームページ この会社のホームページへ

CRATCH(クラッチ)のコンテンツ一覧

お問い合わせ

カタログをもらう
その他
CRATCH(クラッチ)のカタログ(CRATCHコンセプトブック )
CRATCHコンセプトブック 
問合コード:1510020001
お問い合わせ先
0120-939-837
  • ※営業時間内の対応となります。

  • ※お問い合わせの際は「SUUMO(スーモ)を見て」とお伝え下さい。

  • 福岡県北九州市小倉南区富士見2丁目4-7 1F

  • 定休日:年末・年始の休みはお問合せください

この会社のホームページへ

この会社が気になったら

カタログをもらう
その他
CRATCH(クラッチ)のカタログ(CRATCHコンセプトブック )
CRATCHコンセプトブック 
問合コード:1510020001

関連キーワード

ページトップへ戻る