昭和住宅

昭和住宅

【北九州】住むほどに愛着が深まる。創業から50年以上続く、地元無垢材で建てる家
お気に入りに追加する
福岡県鞍手郡鞍手町大字新北  Iさん
【鞍手郡/3980万円/間取図有】杉や檜の香りで毎日が森林浴。家族の健康のため化学的なものを使用しない平屋
昭和住宅 【鞍手郡/3980万円/間取図有】杉や檜の香りで毎日が森林浴。家族の健康のため化学的なものを使用しない平屋の建築実例画像1
  • 本体価格
    3,980万円
    88.1万円/坪
  • 延床面積
    149.41m2 (45.1坪)
    敷地面積
    732.39m2 (221.5坪)
    家族構成
    夫婦+愛犬
  • 竣工年月
    2015年2月
    工法
    木造軸組
この会社をもっと知りたくなったら
無料でお届け!まずはカタログ請求

施主Iさんのこだわり

難しいオーダーにも一発回答!大手メーカーでは決してできないこだわりの平屋の住まい

「化学的な建材は使わず、オール自然素材で造ってほしい」とご希望されたのは、すぐ近くにお住いのご子息様。たどり着いた答えは、天井、壁、床のすべてに本物の木材か漆喰などの塗壁材を使用するということ。真壁造りを採用した室内に、杉や檜の木材をふんだんに張り巡らされた空間は、まるで毎日森林浴をしているような癒しをもたらしてくれる。登り梁を配したLDKは圧倒的な存在感を放つ和風スタイル。旅行の際の宿泊先に高級な旅館が好まれるのがよくわかる。自然素材しか使わない徹底した… 続きを読む

「化学的な建材は使わず、オール自然素材で造ってほしい」とご希望されたのは、すぐ近くにお住いのご子息様。たどり着いた答えは、天井、壁、床のすべてに本物の木材か漆喰などの塗壁材を使用するということ。真壁造りを採用した室内に、杉や檜の木材をふんだんに張り巡らされた空間は、まるで毎日森林浴をしているような癒しをもたらしてくれる。登り梁を配したLDKは圧倒的な存在感を放つ和風スタイル。旅行の際の宿泊先に高級な旅館が好まれるのがよくわかる。自然素材しか使わない徹底した素材の選択は、施主との共同作業にて実現。渾身の一邸。

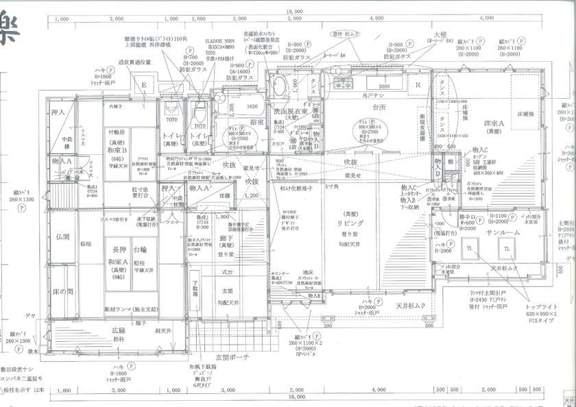
間取り図(3LDK+サンルーム)

1階
昭和住宅 【鞍手郡/3980万円/間取図有】杉や檜の香りで毎日が森林浴。家族の健康のため化学的なものを使用しない平屋の間取り図(3LDK+サンルーム)1階
この会社をもっと知りたくなったら
無料でお届け!まずはカタログ請求

内外観ギャラリー

この会社をもっと知りたくなったら
無料でお届け!まずはカタログ請求

この会社の他の建築実例を見る

この建築実例が気になった方へおすすめ

  • この建築実例のカタログをもらう

    昭和住宅のカタログ画像
    施工実例集
    過去事例の間取り図・価格を知れる!昭和住宅の実例集
    昭和住宅の総合カタログです。
  • モデルハウスを見学する

    昭和住宅のモデルハウス画像1
    昭和住宅のモデルハウス画像2
    • 延床面積
      131.33m239.7坪)
    • 所在地
      福岡県北九州市八幡西区町上津役西4-2-16
    • 営業時間
      10:00~17:00(定休日:お盆、年末年始)
    • ナチュラル
    • 和モダン
    • 子育て
    • 外と繋がる
  • イベントに参加する

    昭和住宅のイベント画像
    【事前予約/八幡西区】無垢材の家は高いと諦めてない?予算内で叶える、心地よい暮らし発見プラン相談会
    • 設計・資金相談会
    • 完成見学会
    • 土地相談会
    開催日
    随時
    開催場所
    福岡県北九州市八幡西区町上津役西4-2-16

この建築実例の詳細情報

この建築実例を建てた店舗情報

住所 福岡県北九州市八幡西区町上津役西4-2-16
問い合わせ
093-612-0228
  • ※営業時間内の対応となります。

  • ※お問い合わせの際は「SUUMO(スーモ)を見て」とお伝え下さい。

ホームページ この会社のホームページへ

昭和住宅のコンテンツ一覧

お問い合わせ

カタログをもらう
施工実例集
昭和住宅のカタログ(過去事例の間取り図・価格を知れる!昭和住宅の実例集)
過去事例の間取り図・価格を知れる!昭和住宅の実例集
問合コード:1016380001
イベントに参加する
お問い合わせ先
093-612-0228
  • ※営業時間内の対応となります。

  • ※お問い合わせの際は「SUUMO(スーモ)を見て」とお伝え下さい。

  • 福岡県北九州市八幡西区町上津役西4-2-16

  • 定休日:なし

この会社のホームページへ

この会社が気になったら

カタログをもらう
施工実例集
昭和住宅のカタログ(過去事例の間取り図・価格を知れる!昭和住宅の実例集)
過去事例の間取り図・価格を知れる!昭和住宅の実例集
問合コード:1016380001
イベントに参加する

関連キーワード

この建築実例のその他の特徴
ページトップへ戻る