新日本ホームズ

新日本ホームズ

「New JAPANDI」新、日本の家。家族をひとつにする。家族が帰りたくなる家
お気に入りに追加する
福岡県小郡市  Aさん
【2500万円~3000万円で建てた家】家族の成長をイメージした家づくり、美しく使い心地のよい住まいの継承
新日本ホームズ 【2500万円~3000万円で建てた家】家族の成長をイメージした家づくり、美しく使い心地のよい住まいの継承の建築実例画像1
  • 本体価格
    2,500万円2,999万円
    55.3万円66.3万円/坪
  • 延床面積
    149.66m2 (45.2坪)
    敷地面積
    187.22m2 (56.6坪)
    家族構成
    母親+夫婦+子ども2人
  • 竣工年月
    2019年7月
    工法
    2×4、2×6
この会社をもっと知りたくなったら
無料でお届け!まずはカタログ請求

施主Aさんのこだわり

暮らしのなかにも豊かな美意識を!家族のつながりを育む空間デザイン演出

暮らしの変化を家族の生活ステージと捉えて、未来を見据えた快適なプランの提案を行う新日本ホームズ。今回紹介するA邸は、まさに家族のライフステージの変化である〝親世代との同居”を目的とした住まいだ。手すりやフラットな床面、そして車椅子生活も安心の動線幅など、身体を気遣うバリアフリー対策が家の随所に見られた。リビング横の母親の居室向かいには、トイレ・洗面台などの水回り動線を置き、日常に安心が寄り添う。「将来、息子家族が暮らすイメージも巡らせて間取りを考案。また、… 続きを読む

暮らしの変化を家族の生活ステージと捉えて、未来を見据えた快適なプランの提案を行う新日本ホームズ。今回紹介するA邸は、まさに家族のライフステージの変化である〝親世代との同居”を目的とした住まいだ。手すりやフラットな床面、そして車椅子生活も安心の動線幅など、身体を気遣うバリアフリー対策が家の随所に見られた。リビング横の母親の居室向かいには、トイレ・洗面台などの水回り動線を置き、日常に安心が寄り添う。「将来、息子家族が暮らすイメージも巡らせて間取りを考案。また、メンテナンスを考慮し、耐久性の優れた素材や設備を選びました」。バリアフリーや機能性を考慮した設計と併せて目を惹いたのは、タイルや床材などの、各空間の用途を引きたてる厳選素材たちだ。夫婦互いが持つ美意識を、暮らしのなかに織り交ぜたオリジナル空間が広がっていた。親と子が互いに思いあう、人に優しい住まいと心を豊かにするデザイン設計が細部に宿るA邸。次世代に受け継ぐ、価値の高い住まいが誕生した。

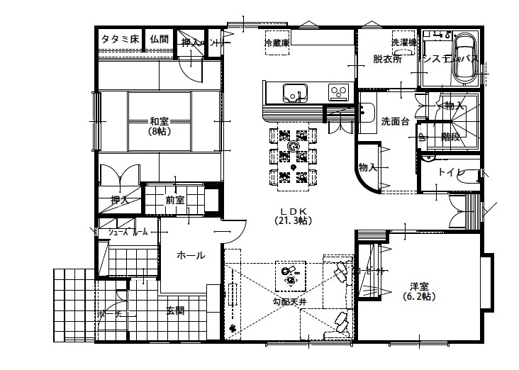
間取り図(5K以上)

1階
新日本ホームズ 【2500万円~3000万円で建てた家】家族の成長をイメージした家づくり、美しく使い心地のよい住まいの継承の間取り図(5K以上)1階
2階
新日本ホームズ 【2500万円~3000万円で建てた家】家族の成長をイメージした家づくり、美しく使い心地のよい住まいの継承の間取り図(5K以上)2階
この会社をもっと知りたくなったら
無料でお届け!まずはカタログ請求

内外観ギャラリー

この会社をもっと知りたくなったら
無料でお届け!まずはカタログ請求

この会社の他の建築実例を見る

この建築実例が気になった方へおすすめ

この建築実例の詳細情報

この建築実例を建てた店舗情報

住所 福岡県北九州市八幡西区折尾3-3-22(本社)
問い合わせ
0120-71-2033
  • ※営業時間内の対応となります。

  • ※お問い合わせの際は「SUUMO(スーモ)を見て」とお伝え下さい。

ホームページ この会社のホームページへ

新日本ホームズのコンテンツ一覧

お問い合わせ

カタログをもらう
カタログ一覧

この会社が気になったら

カタログをもらう

関連キーワード

この建築実例のその他の特徴
ページトップへ戻る