新日本建設

新日本建設

愛媛県屈指の自然素材の注文住宅。自社保有の山で育てた木の家が、暮らしと健康を守る
お気に入りに追加する
【ナチュラルモダン/グレー/梁現し/子育て世代の家】木×白×グレーのシンプルかつデザイン性のある家
新日本建設 【ナチュラルモダン/グレー/梁現し/子育て世代の家】木×白×グレーのシンプルかつデザイン性のある家の建築実例画像1
  • 本体価格
    2,400万円
    76.1万円/坪
  • 延床面積
    104.30m2 (31.5坪)
    敷地面積
    230.88m2 (69.8坪)
    家族構成
    -
  • 竣工年月
    2024年2月
    工法
    木造軸組
この会社をもっと知りたくなったら
無料でお届け!まずはカタログ請求

施主のこだわり

家族に寄り添い快適に暮らせるコンパクトで心地よいお家

木の温かみや自然素材の優しい雰囲気が大好きなご夫婦が、成長していく子供たちとの未来を考えた居心地の良い家づくりをスタート。コンセプトは、「木やタイルの素材感が映える、シンプルな白い家」。いつまでも飽きの来ないナチュラルでシンプルなデザインの中に、奥様のセンスが加わった魅力的な空間が実現した。南側のリビングには畳コーナーを設け、まだ小さい子供たちとお昼寝をしたり一緒に遊んだりできるスペースを確保。フラットな作りにしたことで、お子様が走り回るようになっても転ぶ… 続きを読む

木の温かみや自然素材の優しい雰囲気が大好きなご夫婦が、成長していく子供たちとの未来を考えた居心地の良い家づくりをスタート。コンセプトは、「木やタイルの素材感が映える、シンプルな白い家」。いつまでも飽きの来ないナチュラルでシンプルなデザインの中に、奥様のセンスが加わった魅力的な空間が実現した。南側のリビングには畳コーナーを設け、まだ小さい子供たちとお昼寝をしたり一緒に遊んだりできるスペースを確保。フラットな作りにしたことで、お子様が走り回るようになっても転ぶ心配がなく掃除もしやすい、家族の安全性や快適性を考えた設計を意識した。そして、家事を時短できる生活導線にこだわり、玄関からキッチンの導線を短くしたり、脱衣所とテラスを隣り合わせに配置したりなど、無駄な移動が少なくなるようにして生活環境を整えた。30代の子育て世代の今、忙しい毎日を過ごしながらも、家に居るとリラックスできるような心地よい空間のお家が完成した。

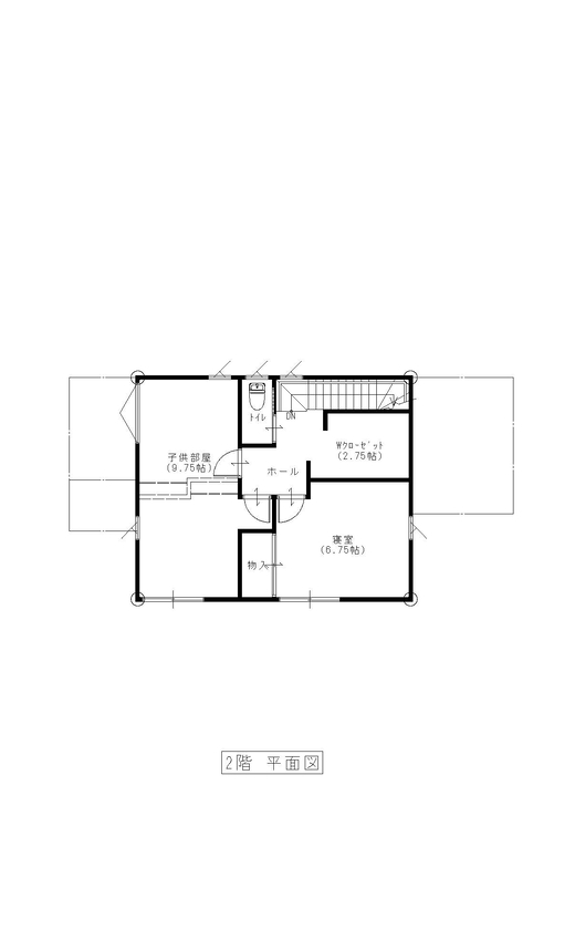
間取り図(3LDK)

1階
新日本建設 【ナチュラルモダン/グレー/梁現し/子育て世代の家】木×白×グレーのシンプルかつデザイン性のある家の間取り図(3LDK)1階
2階
新日本建設 【ナチュラルモダン/グレー/梁現し/子育て世代の家】木×白×グレーのシンプルかつデザイン性のある家の間取り図(3LDK)2階
この会社をもっと知りたくなったら
無料でお届け!まずはカタログ請求

内外観ギャラリー

この会社をもっと知りたくなったら
無料でお届け!まずはカタログ請求

この会社の他の建築実例を見る

この建築実例が気になった方へおすすめ

この建築実例の詳細情報

この建築実例を建てた店舗情報

住所 愛媛県松山市空港通3-9-3
問い合わせ
0120-41-0006
  • ※営業時間内の対応となります。

  • ※お問い合わせの際は「SUUMO(スーモ)を見て」とお伝え下さい。

ホームページ この会社のホームページへ

新日本建設のコンテンツ一覧

お問い合わせ

カタログをもらう
総合カタログ
新日本建設のカタログ(総合パンフレット「新日本建設の家」)
総合パンフレット「新日本建設の家」
問合コード:5013830001
お問い合わせ先
0120-41-0006
  • ※営業時間内の対応となります。

  • ※お問い合わせの際は「SUUMO(スーモ)を見て」とお伝え下さい。

  • 愛媛県松山市空港通3-9-3

  • 定休日:年末年始・お盆等

この会社のホームページへ

この会社が気になったら

カタログをもらう
総合カタログ
新日本建設のカタログ(総合パンフレット「新日本建設の家」)
総合パンフレット「新日本建設の家」
問合コード:5013830001

関連キーワード

この建築実例のその他の特徴
ページトップへ戻る