丸山建設(E‐HOME一級建築士事務所)

丸山建設(E‐HOME一級建築士事務所)

「あなたらしい」をカタチに。手の届くデザイナーズハウスを1000万円台~実現
お気に入りに追加する
愛知県名古屋市  Oさん
【間口3.8m/店舗併用/3階建/間取図/狭小】間口3.8mの狭小住宅。高い強度を叶える木造フレーム工法の家
丸山建設(E‐HOME一級建築士事務所) 【間口3.8m/店舗併用/3階建/間取図/狭小】間口3.8mの狭小住宅。高い強度を叶える木造フレーム工法の家の建築実例画像1
  • 本体価格
    3,000万円3,499万円
    105.1万円122.6万円/坪
  • 延床面積
    94.41m2 (28.5坪)
    敷地面積
    67.32m2 (20.3坪)
    家族構成
    夫婦
  • 竣工年月
    2020年6月
    工法
    その他(独自認定工法等)(木造フレーム工法)
この会社をもっと知りたくなったら
無料でお届け!まずはカタログ請求

施主Oさんのこだわり

「理想通りの店舗設計に大満足です!」狭い間口でも設計アイデアで夢を叶えた3階建て

Oさんが会社を退職後、自家焙煎珈琲豆専門店をオープンするという夢を託したのがE-HOMEだった。間口3.8mの狭小地という厳しい条件でも、最大限に広く見せるノウハウを持っているのが同社。地元名古屋で狭小住宅を多く手掛けていることや、狭くても光が届く設計、確かな施工力が決め手だったようだ。1階が店舗、2階・3階が住居の3階建て。店舗の間口をできるだけ広く取るために選んだのが木造フレーム工法だ。狭小地でも大開口や大空間を確保できる最適な工法を選択し、さらに空気… 続きを読む

Oさんが会社を退職後、自家焙煎珈琲豆専門店をオープンするという夢を託したのがE-HOMEだった。間口3.8mの狭小地という厳しい条件でも、最大限に広く見せるノウハウを持っているのが同社。地元名古屋で狭小住宅を多く手掛けていることや、狭くても光が届く設計、確かな施工力が決め手だったようだ。1階が店舗、2階・3階が住居の3階建て。店舗の間口をできるだけ広く取るために選んだのが木造フレーム工法だ。狭小地でも大開口や大空間を確保できる最適な工法を選択し、さらに空気で断熱して年中快適に暮らせるAir断を採用。部屋間・床・壁・天井の温度変化が少なく、空気のよどまない室内環境を叶えている。店舗設計にもこだわったOさん。狭くても温もりのある無垢材をふんだんに使うことでほっと安らぐ雰囲気に。「ジャズが流れる落ち着いた店内で珈琲焙煎の香りを存分に堪能してほしい」というOさんの想いを感じられる店舗設計だ。隣家が迫る街中でも、窓の位置を考慮しスケルトン階段にすることで光と風の通り道を確保。また収納面の工夫をすることで快適に暮らせる家になったそう。「これからの第二の人生を過ごす大切な住まいを叶えることができました」とOさん。 

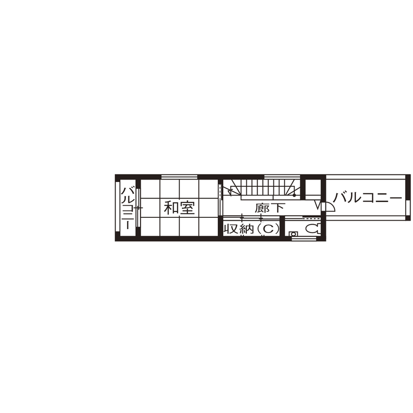
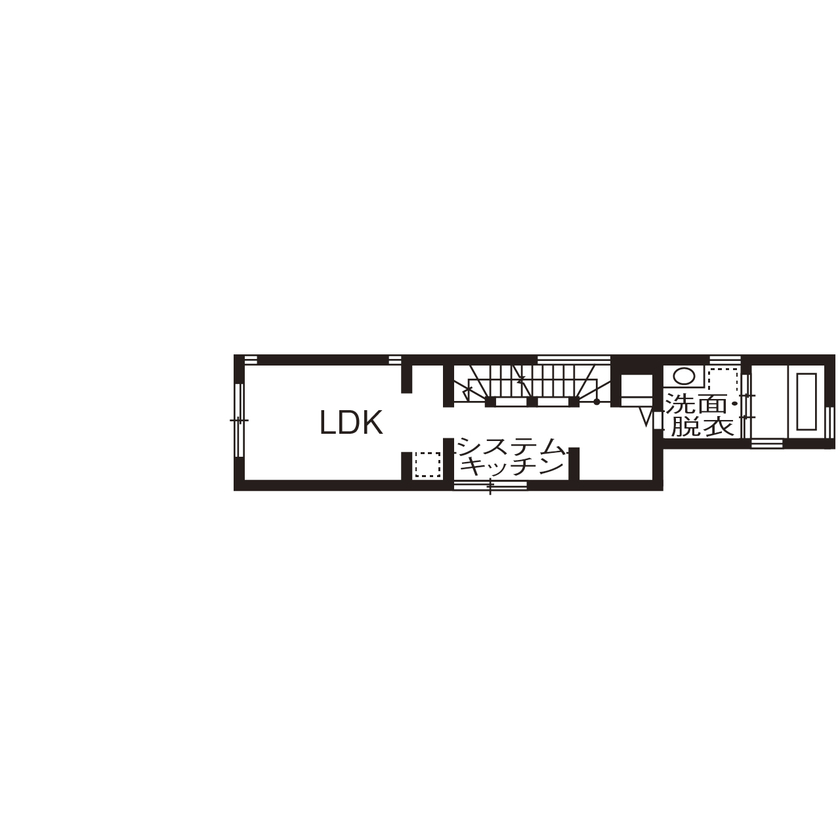
間取り図(2LDK)

1階
丸山建設(E‐HOME一級建築士事務所) 【間口3.8m/店舗併用/3階建/間取図/狭小】間口3.8mの狭小住宅。高い強度を叶える木造フレーム工法の家の間取り図(2LDK)1階
2階
丸山建設(E‐HOME一級建築士事務所) 【間口3.8m/店舗併用/3階建/間取図/狭小】間口3.8mの狭小住宅。高い強度を叶える木造フレーム工法の家の間取り図(2LDK)2階
3階
丸山建設(E‐HOME一級建築士事務所) 【間口3.8m/店舗併用/3階建/間取図/狭小】間口3.8mの狭小住宅。高い強度を叶える木造フレーム工法の家の間取り図(2LDK)3階
この会社をもっと知りたくなったら
無料でお届け!まずはカタログ請求

内外観ギャラリー

この会社をもっと知りたくなったら
無料でお届け!まずはカタログ請求

この建築実例の担当者

丸山建設(E‐HOME一級建築士事務所)の担当者画像
一級建築士
水野健太郎

この会社の他の建築実例を見る

この建築実例が気になった方へおすすめ

  • この建築実例のカタログをもらう

    丸山建設(E‐HOME一級建築士事務所)のカタログ画像
    施工実例集
    E-HOMEの一級建築士とつくる完全自由設計・完全自社施工の事例集
    こだわりの施工事例集大公開!家族の夢を自由設計で描いた18選をご紹介します
  • イベントに参加する

    丸山建設(E‐HOME一級建築士事務所)のイベント画像
    【丸山建設/名古屋市南区】ほぼ毎日開催(予約制)「家づくりなんでも相談会」住宅ローン・土地探し相談可初心者向け「家づくりの秘密」お教えします!
    • セミナー・教室
    • 設計・資金相談会
    • 入居者宅見学会
    開催日
    2023/11/29(水)~随時
    開催場所
    愛知県名古屋市南区鳥山町二丁目3-2 丸山建設ビル1F
    参加特典
    事前にご予約いただいた方には【有名通販サイトギフトカード】1000円分をプレゼント

この建築実例の詳細情報

この建築実例を建てた店舗情報

店舗名 本社
住所 愛知県名古屋市南区鳥山町二丁目3-2 丸山建設ビル1F
問い合わせ
0528227586
  • ※営業時間内の対応となります。

  • ※お問い合わせの際は「SUUMO(スーモ)を見て」とお伝え下さい。

ホームページ この会社のホームページへ

丸山建設(E‐HOME一級建築士事務所)のコンテンツ一覧

お問い合わせ

カタログをもらう
施工実例集
丸山建設(E‐HOME一級建築士事務所)のカタログ(E-HOMEの一級建築士とつくる完全自由設計・完全自社施工の事例集)
E-HOMEの一級建築士とつくる完全自由設計・完全自社施工の事例集
問合コード:1209140001
イベントに参加する
お問い合わせ先
0528227586
  • ※営業時間内の対応となります。

  • ※お問い合わせの際は「SUUMO(スーモ)を見て」とお伝え下さい。

本社
  • 愛知県名古屋市南区鳥山町二丁目3-2 丸山建設ビル1F

この会社のホームページへ

この会社が気になったら

カタログをもらう
施工実例集
丸山建設(E‐HOME一級建築士事務所)のカタログ(E-HOMEの一級建築士とつくる完全自由設計・完全自社施工の事例集)
E-HOMEの一級建築士とつくる完全自由設計・完全自社施工の事例集
問合コード:1209140001
イベントに参加する

関連キーワード

この建築実例のその他の特徴
ページトップへ戻る