"20260419152102:H:0" "20260419152102:H:0" "20260419152102:H:0"
この物件にお問い合わせ
お問い合わせの内容を選択してください
03-6409-0707
リブマックス目黒店(株)リブ・マックス
営業時間:9:00~19:00
定休日:水
お電話の際は、SUUMOを見たとお伝えいただくとスムーズです。

部屋の特徴・設備

  • バストイレ別、バルコニー、エアコン、ガスコンロ対応、クロゼット、フローリング、TVインターホン、浴室乾燥機、オートロック、室内洗濯置、陽当り良好、シューズボックス、システムキッチン、追焚機能浴室、角住戸、温水洗浄便座、脱衣所、エレベーター、洗面所独立、洗面化粧台、駐輪場、宅配ボックス、光ファイバー、閑静な住宅地、3口以上コンロ、対面式キッチン、防犯カメラ、照明付、オートバス、ウォークインクロゼット、保証人不要、二人入居相談、バイク置場、全居室フローリング、デザイナーズ、2沿線利用可、ディンプルキー、CS、ネット使用料不要、ダブルロックキー、24時間換気システム、学生相談、耐火構造、耐震構造、2駅利用可、3駅以上利用可、24時間ゴミ出し可、敷地内ごみ置き場、都市ガス、洗面所にドア、BS、IT重説 対応物件、LGBTフレンドリー、初期費用カード決済可、通風良好

物件概要

情報の見方

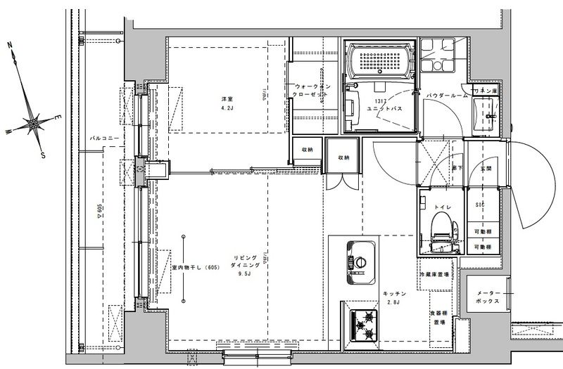
間取り詳細 洋4.2 LDK12.3 構造 鉄筋コン
階建 6階/8階建 築年月 2022年3月
エネルギー
消費性能
- 断熱性能 -
目安光熱費
  • -
損保 2.4万円2年 駐車場 近隣100m35000円
入居 '26年5月上旬 取引態様 仲介
条件 二人入居可 取り扱い店舗
物件コード
6877367
SUUMO
物件コード
100501852068 総戸数 -
情報更新日 2026/04/18 次回更新予定日 2026/04/26
契約期間
  • 普通借家 2年
保証会社
  • 保証会社利用必 必須 レジデンシャル 初回保証料:総賃料の50%、以後1年毎25%
ほか初期費用
  • 合計1.65万円(内訳:鍵交換代1.65万円)
ほか諸費用
  • 更新料 新賃料1.00ヶ月分
備考
  • 通勤管理/初期費用クレジット支払可能!オンライン内覧・オンライン契約等弊社に一度も来店せずとも問題ありません♪弊社ではネットに掲載されている物件は全てご紹介可能になりますので気になる物件は全て申し付けください★

情報掲載元物件はこちら
この物件にお問い合わせ
お問い合わせの内容を選択してください
リブマックス目黒店(株)リブ・マックス
営業時間:9:00~19:00/定休日:水

この物件を取り扱う店舗

リブマックス目黒店(株)リブ・マックス 取引態様:仲介
免許番号: 国土交通大臣(5)第7032号 / (公社)全日本不動産協会東京都本部会員 / (公社)首都圏不動産公正取引協議会加盟
  • 駅徒歩3分以内
  • 法人契約取扱
  • 多店舗展開
  • 賃貸保証対応
  • 保証人不要相談可
東京都内でトップクラスのシェアを誇るSET-UP賃貸(家具家電付き物件)は当社へお任せ下さいませ!!
東京都品川区上大崎2-15-15 伊多喜ビル5階
9:00~19:00
定休日: 水
JR山手線/目黒駅 歩1分

03-6409-0707
  • 部屋情報
  • 地図・周辺環境
  • エリアの口コミ

【掲載物件情報について】

・SUUMOは「自ら居住するための住宅」をお探しの方に向けたポータルサイトです。契約者以外の方が使用する(例:第三者に宿泊させる等)ことを目的としたお問合せはご遠慮ください


・SUUMOではユーザーの皆様に最も信頼されるサイトを目指して、物件情報の精度向上に努めております。SUUMOに掲載されている物件情報について「事実と異なる点や誤解を招く表現がある」「成約済の物件が掲載されている」などにお気づきになりましたら、以下のページからご連絡ください

その他の情報

リブマックス目黒店(株)リブ・マックスのその他取り扱い物件

最寄駅から探す

最寄駅の沿線から探す

関連エリアから不動産情報を探す

ページトップへ戻る

お気に入りに追加しました。