"20260414161555:H:0" "20260414161555:H:0" "20260414161555:H:0"

CREST TAPP名古屋山王 205号室 - ルームセレクト八田店(株)洞口が提供する賃貸物件情報

この物件にお問い合わせ
お問い合わせの内容を選択してください
052-526-7667
ルームセレクト八田店(株)洞口
営業時間:9時30分から18時30分 / 定休日:水曜日 (繁忙期を除く)

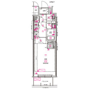
部屋の特徴・設備

  • バストイレ別、バルコニー、エアコン、ガスコンロ対応、フローリング、シャワー付洗面台、TVインターホン、浴室乾燥機、オートロック、室内洗濯置、シューズボックス、システムキッチン、温水洗浄便座、エレベーター、洗面所独立、2口コンロ、宅配ボックス、CATV、光ファイバー、閑静な住宅地、防犯カメラ、ペット相談、分譲賃貸、全居室洋室、保証人不要、24時間緊急通報システム、2沿線利用可、ネット使用料不要、2駅利用可、3駅以上利用可、3沿線以上利用可、敷地内ごみ置き場、都市ガス、IT重説 対応物件、初期費用カード決済可、通風良好

物件概要

情報の見方

間取り詳細 - 構造 鉄筋コン
階建 2階/15階建 築年月 2026年2月
エネルギー
消費性能
- 断熱性能 -
目安光熱費
  • -
損保 1.7万円2年 駐車場 -
入居 取引態様 仲介
条件 ペット相談 取り扱い店舗
物件コード
379598
SUUMO
物件コード
100480034997 総戸数 -
情報更新日 2026/04/13 次回更新予定日 2026/04/21
保証会社
  • 保証会社利用必 クレディセゾン利用必須 初回保証料 月額総賃料の30% 年間更新料10,000円
ほか諸費用
  • 更新料1.0ヵ月 24H駆けつけサービス:990円/月 更新事務手数料:11,000円/2年 エアコンクリーニング 退去時 16,500円 室内清掃費用 退去時 38,500円 ペット飼育時:1匹につき敷金1ヶ月+賃料100円UP(小型犬・猫 合計2匹まで)
備考
  • 短期解約違約金有 2ヵ月(1年未満) 1ヵ月(1年以上2年未満)
 
周辺情報
  • 名古屋市立広見小学校(小学校)まで468m
  • 名古屋市立山王中学校(中学校)まで1179m
  • ミニストップ 西日置店(コンビニ)まで293m
  • 業務スーパー 福住店(スーパー)まで1121m
  • NTT西日本東海病院(病院)まで699m

周辺環境を見る

携帯用QRコード
このQRコードを読み取ることで、
ケータイでも物件情報を見ることができます。

物件情報をメールに送る

この物件にお問い合わせ
お問い合わせの内容を選択してください
052-526-7667
ルームセレクト八田店(株)洞口
営業時間:9時30分から18時30分 / 定休日:水曜日 (繁忙期を除く)

店舗・物件ブランドのアピールポイント

取り扱い店舗

【店舗写真】ルームセレクト八田店(株)洞口

ルームセレクト八田店(株)洞口

TEL:052-526-7667

名古屋市内に10店舗。
掲載物件は最寄りの店舗にてご案内可能です。

お問い合わせは24時間受付中です。
専門スタッフの迅速な対応と、的確なご提案をいたします。

なお、ルムセレHPでは全店舗の物件を掲載中です。
ぜひ、ご覧ください。

  • 住所: 愛知県名古屋市中村区並木2-120 イースクエア並木1階
  • 営業時間: 9時30分から18時30分
  • 定休日: 水曜日 (繁忙期を除く)
  • 免許番号: 国土交通大臣(4)第7901号
  • 取引態様: 仲介
  • 部屋情報
  • 地図・周辺環境
  • 取り扱い店舗の情報
  • エリアの口コミ

【掲載物件情報について】

・SUUMOは「自ら居住するための住宅」をお探しの方に向けたポータルサイトです。契約者以外の方が使用する(例:第三者に宿泊させる等)ことを目的としたお問合せはご遠慮ください


・SUUMOではユーザーの皆様に最も信頼されるサイトを目指して、物件情報の精度向上に努めております。SUUMOに掲載されている物件情報について「事実と異なる点や誤解を招く表現がある」「成約済の物件が掲載されている」などにお気づきになりましたら、以下のページからご連絡ください

その他の情報

ルームセレクト八田店(株)洞口のその他取り扱い物件

全物件を一覧表示する

最寄駅から探す

最寄駅の沿線から探す

関連エリアから不動産情報を探す

ページトップへ戻る

お気に入りに追加しました。