"20251206000524:H:0" "20251206000524:H:0" "20251206000524:H:0"
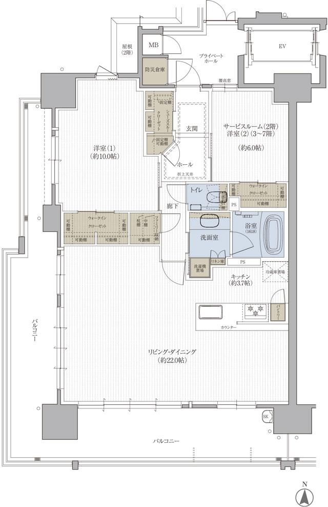
クレアホームズ松江大橋 (間取り図 A)

クレアホームズ松江大橋 (間取り図 A)

5580万円~8620万円  (先着順)
2LDK | 85.98m2~100.8m2、※防災倉庫面積0.94m2を含む | JR山陰本線「松江」歩14分
SUUMO(スーモ)新築マンションのクレアホームズ松江大橋の間取り(A)詳細情報です。
A
  • 所在地 島根県松江市東本町1丁目2番1(地番)
  • 交通 JR山陰本線「松江」歩14分
間取りの概要/特徴
価格

6650万円(先着順)

間取り
  • 2LDK
専有面積
  • 94.01m2
バルコニーまたは
テラス面積
  • 36.09m2
その他
  • プライベートホール面積/5.77m2、※専有面積に防災倉庫面積0.94m2を含む
特徴
キッチン
  • 浄水器or活水器
立地・配置
  • 角部屋
設備・構造
  • リビングダイニング15畳以上
  • 角住戸
  • LD15畳以上

【この物件広告についての注釈】

※価格は物件の代金総額を表示しています。消費税が課税される場合は税込み価格を表示しており、10000円未満を切り上げている場合があります。

※住戸別の価格(帯)表記については、そのタイプに含まれるすべての住戸の情報を掲載していない場合があります。住戸タイプと各住戸の価格帯表記について、単位(1000万円・100万円・10万円)が異なる場合があります。

※「モデルルーム」とは、間取りや仕様・設備などを知ることができる施設全般を指し、それらの一部のみ展示している「サンプルルーム」や「ギャラリー」、「インフォメーションセンター」なども含みます。

※完成予想図はいずれも外構、植栽、外観等実際のものとは多少異なることがあります。

※CG合成の画像の場合、実際とは多少異なる場合があります。

※完成後1年以上を経過した未入居物件が掲載される場合があります。ご了承ください。

※掲載の省エネ性能ラベル内の物件・住棟・号室名称については最新のものに変更されている場合があります。

※概要のエネルギー消費性能、断熱性能、目安光熱費については、表示している省エネ性能ラベルによってデータの内容が異なります。販売戸数が複数の住棟ラベル、または住戸ラベルの場合は、原則建築確認が下りている物件全体の最小~最大を、販売戸数1戸の住戸ラベルの場合はその住戸のデータを表示しています。

クレアホームズ松江大橋 物件概要 先着順

所在地
島根県松江市東本町1丁目2番1(地番)
地図を見る
交通 JR山陰本線「松江」歩14分 総戸数 26戸
間取り 2LDK 専有面積 85.98m2~100.8m2、※防災倉庫面積0.94m2を含む
価格
5580万円~8620万円
引渡可能時期 2026年3月31日予定

情報更新日:2025/12/3

お問い合わせ先

「クレアホームズ・マンションギャラリー」

0120-888-284 無料

お問合せの際は『SUUMO(スーモ)を見て』とお伝えいただくとスムーズです。

営業時間:10:00~18:00

定休日:火・水曜日(祝日除く)※2025年12月29日(月)~2026年1月4日(日)の期間は年末年始休業となります。

見学予約スケジュール

見学をご希望される日程をお選びください。

12/5
12/6
12/7
12/8
12/9
12/10
12/11
12/12
12/13
12/14
12/15
12/16
12/17
12/18
12/19
12/20
12/21
12/22
12/23
12/24
12/25
12/26
12/27
12/28
12/29
12/30
12/31
1/1
1/2
1/3
1/4
1/5
1/6
1/7
1/8

見学予約メニュー

  • モデルルーム見学会(所要時間:120分)

    ◇◆開催日時:月木金土日祝10:00~14:00~◆◇

【67730755】クレアホームズ松江大橋
他の物件も見てみる!

あなたにオススメの物件

PR

条件を変更して物件を探す

ページトップへ戻る
簡単!約2分で完了
以前、資料請求した物件です
簡単!約2分で完了 まずは気軽に見学予約をしてみよう!
以前にもチェックした物件です
簡単!約2分で完了 まずは気軽に見学予約や資料請求をしてみよう!

モデルルーム見学は予約優先でのご案内になります。

ぜひ、お早めにご予約ください。