"20251205233037:H:0" "20251205233037:H:0" "20251205233037:H:0"
W TOWERS 箕面船場(CLASSY TOWER 箕面船場/Brillia(ブリリア) Tower 箕面船場 SKY & GARDEN) (間取り図 B-75C1)

W TOWERS 箕面船場(CLASSY TOWER 箕面船場/Brillia(ブリリア) Tower 箕面船場 SKY & GARDEN) (間取り図 B-75C1)

3770万円~2億4550万円  (クラッシィタワー箕面船場 先着順/一般定期借地権)
1LDK~4LDK | 35.92m2~140.54m2、(住戸専有面積:35.92m2~139.44m2、専有トランクルーム面積:0.33m2~1.1m2) | 北大阪急行「箕面船場阪大前」歩1分~2分
SUUMO(スーモ)新築マンションのW TOWERS 箕面船場(CLASSY TOWER 箕面船場/Brillia(ブリリア) Tower 箕面船場 SKY & GARDEN)の間取り(B-75C1)詳細情報です。
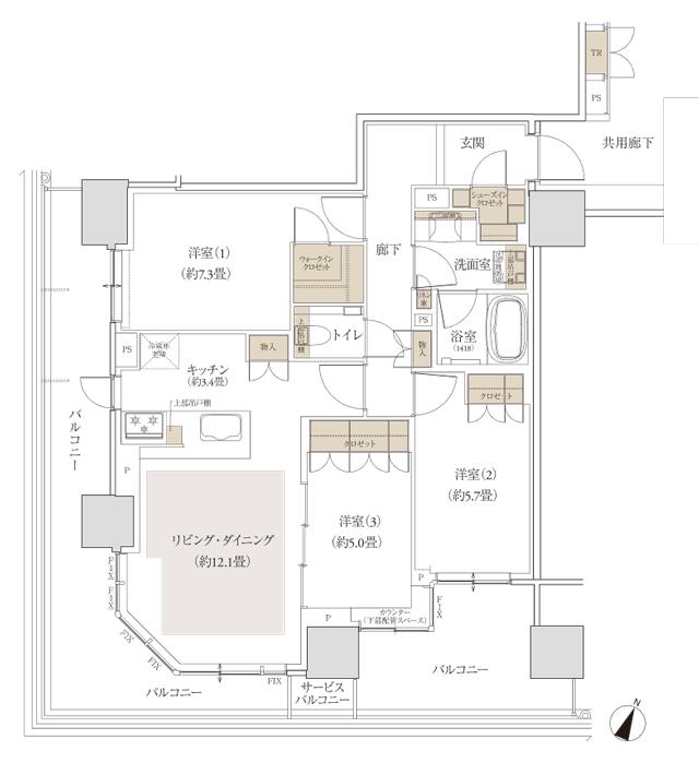
B-75C1
  • 所在地 大阪府箕面市船場東2丁目6-10、大阪府箕面市船場東3丁目1-6、1-9、1-10、2-1、6-7、8-2、8-16(従前地番)、大阪府箕面市船場東2丁目1街区5-2、大阪府箕面市船場東3丁目1街区4、5-1、5-3、7、8-1、8-2、8-3(仮換地番号)
  • 交通 北大阪急行「箕面船場阪大前」歩1分~2分
間取りの概要/特徴
価格

6880万円・6970万円(ブリリアタワー箕面船場 先着順/一般定期借地権)

間取り
  • 3LDK+WIC+SIC
専有面積
  • 79.63m2
バルコニーまたは
テラス面積
  • 28.73m2
その他
  • サービスバルコニー面積:1.62m2(6~17階) ※専有面積に専有トランクルーム面積0.49m2を含む
特徴
キッチン
  • ディスポーザー
  • 浄水器or活水器
立地・配置
  • 角部屋
設備・構造
  • 床暖房
  • 角住戸

【この物件広告についての注釈】

※価格は物件の代金総額を表示しています。消費税が課税される場合は税込み価格を表示しており、10000円未満を切り上げている場合があります。

※住戸別の価格(帯)表記については、そのタイプに含まれるすべての住戸の情報を掲載していない場合があります。住戸タイプと各住戸の価格帯表記について、単位(1000万円・100万円・10万円)が異なる場合があります。

※「モデルルーム」とは、間取りや仕様・設備などを知ることができる施設全般を指し、それらの一部のみ展示している「サンプルルーム」や「ギャラリー」、「インフォメーションセンター」なども含みます。

※完成予想図はいずれも外構、植栽、外観等実際のものとは多少異なることがあります。

※CG合成の画像の場合、実際とは多少異なる場合があります。

※完成後1年以上を経過した未入居物件が掲載される場合があります。ご了承ください。

※掲載の省エネ性能ラベル内の物件・住棟・号室名称については最新のものに変更されている場合があります。

※概要のエネルギー消費性能、断熱性能、目安光熱費については、表示している省エネ性能ラベルによってデータの内容が異なります。販売戸数が複数の住棟ラベル、または住戸ラベルの場合は、原則建築確認が下りている物件全体の最小~最大を、販売戸数1戸の住戸ラベルの場合はその住戸のデータを表示しています。

W TOWERS 箕面船場(CLASSY TOWER 箕面船場/Brillia(ブリリア) Tower 箕面船場 SKY & GARDEN) 物件概要 クラッシィタワー箕面船場 先着順/一般定期借地権

所在地
大阪府箕面市船場東2丁目6-10、大阪府箕面市船場東3丁目1-6、1-9、1-10、2-1、6-7、8-2、8-16(従前地番)、大阪府箕面市船場東2丁目1街区5-2、大阪府箕面市船場東3丁目1街区4、5-1、5-3、7、8-1、8-2、8-3(仮換地番号)
地図を見る
交通 北大阪急行「箕面船場阪大前」歩1分~2分 総戸数 728戸(一般分譲720戸・地権者住戸8戸)(クラッシィタワー:567戸、ブリリアタワー:161戸(一般分譲153戸・地権者住戸8戸))
間取り 1LDK~4LDK 専有面積 35.92m2~140.54m2、(住戸専有面積:35.92m2~139.44m2、専有トランクルーム面積:0.33m2~1.1m2)
価格
3770万円~2億4550万円
引渡可能時期 2026年12月下旬予定

情報更新日:2025/12/3

お問い合わせ先

「W TOWERS 箕面船場」レジデンスサロン

0120-015-728 無料

お問合せの際は『SUUMO(スーモ)を見て』とお伝えいただくとスムーズです。

営業時間:10:00~18:00

定休日:水・木曜日、第2・4火曜日

見学予約スケジュール

見学をご希望される日程をお選びください。

12/5
12/6
12/7
12/8
12/9
12/10
12/11
12/12
12/13
12/14
12/15
12/16
12/17
12/18
12/19
12/20
12/21
12/22
12/23
12/24
12/25
12/26
12/27
12/28
12/29
12/30
12/31
1/1
1/2
1/3
1/4
1/5
1/6
1/7
1/8

見学予約メニュー

  • モデルルーム見学会[120分](所要時間:120分)

    ◇◆開催日時:10:00~13:00~15:30~◆◇

  • 【お急ぎの方へおすすめ】モデルルーム見学会[60分](所要時間:60分)

    ◇◆開催日時:10:00~13:00~15:30~◆◇

  • オンライン相談コース[60分](所要時間:60分)

    自宅でOK!物件のおすすめポイント、最新の販売状況をご案内いたします。【簡単!アプリダウンロード不要】【安心!お客様顔出し不要】

【67720914】W TOWERS 箕面船場(CLASSY TOWER 箕面船場/Brillia(ブリリア) Tower 箕面船場 SKY & GARDEN)
他の物件も見てみる!

あなたにオススメの物件

PR

条件を変更して物件を探す

ページトップへ戻る
簡単!約2分で完了
以前、資料請求した物件です
簡単!約2分で完了 まずは気軽に見学予約をしてみよう!
以前にもチェックした物件です
簡単!約2分で完了 まずは気軽に見学予約や資料請求をしてみよう!

モデルルーム見学は予約優先でのご案内になります。

ぜひ、お早めにご予約ください。