"20251205195255:H:0" "20251205195255:H:0" "20251205195255:H:0"
レ・ジェイド茨木 (物件TOP)

レ・ジェイド茨木 (物件TOP)

8690万円・9190万円  (第2期5次)
あける とじる

JR東海道本線(京都線)「茨木」駅徒歩5分 イオンモール茨木徒歩4分。都心へダイレクトアクセス ZEH-M Oriented 低炭素建築物認定マンションW認定取得(申請中)<レ・ジェイド茨木>誕生

物件概要 第2期5次

所在地
大阪府茨木市松ケ本町52番8(地番)
地図を見る
交通 JR東海道本線「茨木」歩5分 総戸数 31戸
間取り 3LDK 専有面積 75.79m2
価格
8690万円・9190万円
引渡可能時期 2026年6月末予定

建物の特徴

JR快速停車駅「茨木」駅徒歩5分、イオンモール茨木徒歩4分。都心へダイレクトアクセス
レ・ジェイド茨木の建物の特徴画像
現地周辺航空写真(2024年7月撮影したもの)に一部CG処理を施したもので、実際とは多少異なります。現地の光柱は、物件の位置を示すもので建物形状、高さ等を表現するものではありません

整った教育環境と商業施設が徒歩圏に揃う利便性の高い立地にして、
上質なプライベートを感じられる全31邸「レ・ジェイド茨木」がいよいよ誕生します。
本物件から徒歩5分のJR「茨木」駅から快速利用で「大阪」駅へ13分、「京都」駅へ22分と都心へダイレクトアクセス!
通勤・通学はもちろん、休日のレジャーやおでかけも思いのまま。新生活にますます期待が膨らみます。

室内の特徴

室内空間のポイント

多彩なプランニング。ZEH-M Oriented及び低炭素建築物のW認定取得マンション(予定)
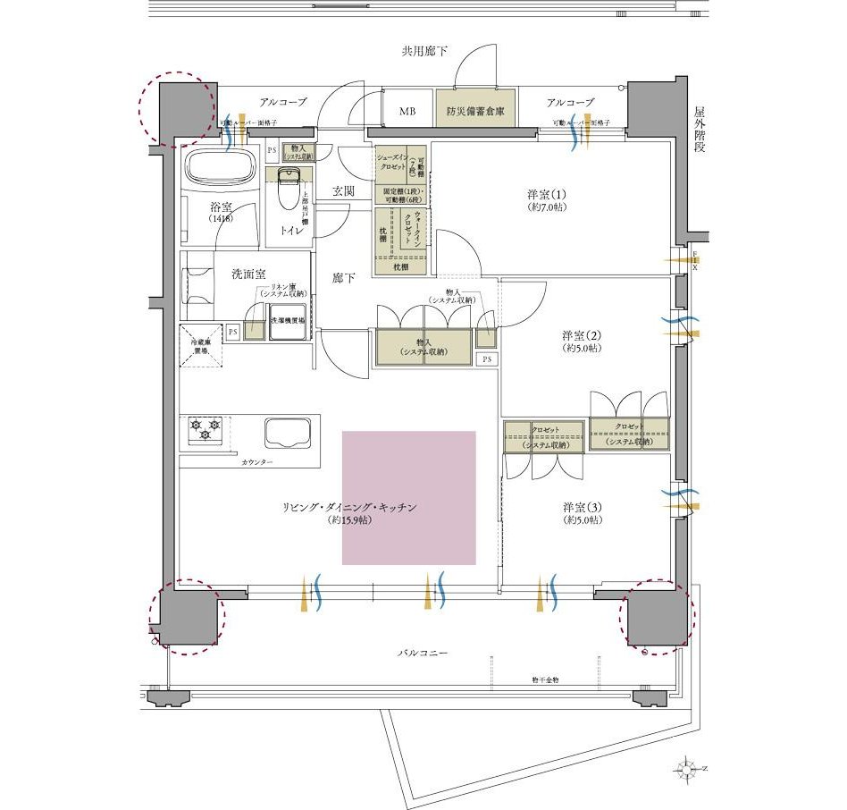
レ・ジェイド茨木の室内の特徴画像
Eタイプ/3LDK+WIC+SIC:専有面積75.79m2 バルコニー面積15.66m2・16.38m2 アルコーブ面積4.24m2

全邸、生活空間を効率的に活用可能なスクエアプランを採用。ワイドな開口部により、明るく開放的な住まいを実現。
廊下が短く居室空間や収納スペースも充実し、ゆとりを感じる設計が魅力。
きっとライフスタイルに合った1邸が見つかるはずです。

周辺環境の特徴

徒歩4分のイオンモール茨木を普段使い。学校や公園も近く、生活利便に恵まれた住環境
  • レ・ジェイド茨木の周辺環境の特徴画像
    イオンモール茨木(徒歩4分、約320m)
    • レ・ジェイド茨木の周辺環境の特徴画像
      JR茨木駅から現地までの歩行者専用道ルート図※
    • レ・ジェイド茨木の周辺環境の特徴画像
      岩倉公園(徒歩7分、約510m)

JR茨木駅へ、信号で止まることのない歩行者専用道を歩いて5分という好立地。
イオンモール茨木が徒歩4分という近さで、食料品はもちろん、ファッションや雑貨、家電、映画館も入り、愉しみの多いライフスタイルが叶います。
また、市立穂積小学校は徒歩8分、市立西陵中学校は徒歩23分と子育てするにも嬉しい環境。さらに、立命館大学大阪いばらきキャンパスと一体になった美しい防災公園の岩倉公園(徒歩7分)は、広大な芝生広場や遊具もあり憩いの場に。文教の薫りが漂う住環境で、快適な暮らしが叶う「レ・ジェイド茨木」で新生活をはじめてみませんか?

表示する周辺環境
※上記周辺施設は物件の所在地から半径1.5キロ以内の施設のみ表示されています

立地・アクセス

交通アクセス

物件への交通 JR東海道本線(京都線)「茨木」駅徒歩5分
  • アクセス図(注1)

  • カーアクセス図

現地案内図

  • 現地案内図

  • モデルルーム案内図
    お車でお越しの方は、カーナビに下記の住所をご入力ください。
    茨木市西駅前町13-18
    【駐車場のご案内】
    当マンションギャラリーには駐車場はございません。近隣の三井のリパーク駐車場をご利用ください。お帰りの際に駐車場料金を精算させていただきます。

【この物件広告についての注釈】

※価格は物件の代金総額を表示しています。消費税が課税される場合は税込み価格を表示しており、10000円未満を切り上げている場合があります。

※住戸別の価格(帯)表記については、そのタイプに含まれるすべての住戸の情報を掲載していない場合があります。住戸タイプと各住戸の価格帯表記について、単位(1000万円・100万円・10万円)が異なる場合があります。

※「モデルルーム」とは、間取りや仕様・設備などを知ることができる施設全般を指し、それらの一部のみ展示している「サンプルルーム」や「ギャラリー」、「インフォメーションセンター」なども含みます。

※完成予想図はいずれも外構、植栽、外観等実際のものとは多少異なることがあります。

※CG合成の画像の場合、実際とは多少異なる場合があります。

※完成後1年以上を経過した未入居物件が掲載される場合があります。ご了承ください。

※掲載の省エネ性能ラベル内の物件・住棟・号室名称については最新のものに変更されている場合があります。

※概要のエネルギー消費性能、断熱性能、目安光熱費については、表示している省エネ性能ラベルによってデータの内容が異なります。販売戸数が複数の住棟ラベル、または住戸ラベルの場合は、原則建築確認が下りている物件全体の最小~最大を、販売戸数1戸の住戸ラベルの場合はその住戸のデータを表示しています。

※地図上に表示される物件の位置は付近住所に所在することを表すものであり、実際の物件所在地とは異なる場合がございます。

※地図の更新タイミングの関係で、物件情報が実際のものとは異なる場合や最新情報に更新されていない場合がございます。

※現地周辺航空写真(2024年7月撮影したもの)に一部CG処理を施したものです。

【画像についての注釈】

注1:所要時間は朝の通勤ラッシュ時(7:00~9:00)、に目的地着の電車のもので、曜日・時間帯により多少異なる場合がございます。また、乗換え・待ち時間を含みます。

レ・ジェイド茨木 物件概要 第2期5次

所在地
大阪府茨木市松ケ本町52番8(地番)
地図を見る
交通 JR東海道本線「茨木」歩5分 総戸数 31戸
間取り 3LDK 専有面積 75.79m2
価格
8690万円・9190万円
引渡可能時期 2026年6月末予定

情報更新日:2025/12/3

お問い合わせ先

「レ・ジェイド茨木」マンションギャラリー

0120-144-031 無料

お問合せの際は『SUUMO(スーモ)を見て』とお伝えいただくとスムーズです。

営業時間:10:00AM~7:00PM

定休日:水・木曜日(祝日は除く)

※携帯電話・PHSからもご利用いただけます。

【67731325】レ・ジェイド茨木
他の物件も見てみる!

あなたにオススメの物件

PR

条件を変更して物件を探す

ページトップへ戻る
簡単!約2分で完了
以前にもチェックした物件です 簡単!約2分で完了 まずは気軽に資料請求をしてみよう!