"20251206094419:H:0" "20251206094419:H:0" "20251206094419:H:0"
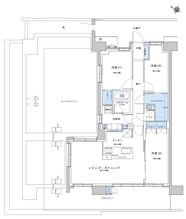
ライオンズ茨木総持寺ステーショングラン (間取り図 V)

ライオンズ茨木総持寺ステーショングラン (間取り図 V)

4570万円~1億円  (先着順)
SUUMO(スーモ)新築マンションのライオンズ茨木総持寺ステーショングランの間取り(V)詳細情報です。
V
  • 所在地 大阪府茨木市庄1丁目347番1(地番)、大阪府茨木市庄1丁目28番50-(室番号)号(住居表示)
  • 交通 JR東海道本線「JR総持寺」歩2分
間取りの概要/特徴
価格

1億円(先着順)

間取り
  • 3LDK+WIC+HC
専有面積
  • 80.82m2
バルコニーまたは
テラス面積
  • 20.78m2
その他
  • ルーフバルコニー面積:42.5m2
  • ※専有面積に専用トランクルーム面積/0.32m2含む
特徴
キッチン
  • 電磁調理器
  • 浄水器or活水器
立地・配置
  • 角部屋
設備・構造
  • 光ファイバー対応
  • オール電化
  • 角住戸
  • ルーフバルコニー

【この物件広告についての注釈】

※価格は物件の代金総額を表示しています。消費税が課税される場合は税込み価格を表示しており、10000円未満を切り上げている場合があります。

※住戸別の価格(帯)表記については、そのタイプに含まれるすべての住戸の情報を掲載していない場合があります。住戸タイプと各住戸の価格帯表記について、単位(1000万円・100万円・10万円)が異なる場合があります。

※「モデルルーム」とは、間取りや仕様・設備などを知ることができる施設全般を指し、それらの一部のみ展示している「サンプルルーム」や「ギャラリー」、「インフォメーションセンター」なども含みます。

※完成予想図はいずれも外構、植栽、外観等実際のものとは多少異なることがあります。

※CG合成の画像の場合、実際とは多少異なる場合があります。

※完成後1年以上を経過した未入居物件が掲載される場合があります。ご了承ください。

※掲載の省エネ性能ラベル内の物件・住棟・号室名称については最新のものに変更されている場合があります。

※概要のエネルギー消費性能、断熱性能、目安光熱費については、表示している省エネ性能ラベルによってデータの内容が異なります。販売戸数が複数の住棟ラベル、または住戸ラベルの場合は、原則建築確認が下りている物件全体の最小~最大を、販売戸数1戸の住戸ラベルの場合はその住戸のデータを表示しています。

ライオンズ茨木総持寺ステーショングラン 物件概要 先着順

所在地
大阪府茨木市庄1丁目347番1(地番)、大阪府茨木市庄1丁目28番50-(室番号)号(住居表示)
地図を見る
交通 JR東海道本線「JR総持寺」歩2分 総戸数 279戸
間取り 1LDK+S(納戸)・3LDK 専有面積 57.97m2~80.82m2
価格
4570万円~1億円
引渡可能時期 即引渡可(諸手続き完了後)

情報更新日:2025/12/3

お問い合わせ先

「ライオンズ茨木総持寺ステーショングラン」マンションギャラリー

0120-014-279 無料

お問合せの際は『SUUMO(スーモ)を見て』とお伝えいただくとスムーズです。

営業時間:10:00AM~6:00PM

定休日:火曜・水曜・第2木曜(祝日を除く)

※一部IP電話からはご利用になれません。
※当物件は物件エントリー制のため、資料請求いただいた後、エントリー者限定ページのログインID・パスワードが送付されます。資料の郵送はございませんので、予めご了承ください。

見学予約スケジュール

見学をご希望される日程をお選びください。

12/6
12/7
12/8
12/9
12/10
12/11
12/12
12/13
12/14
12/15
12/16
12/17
12/18
12/19
12/20
12/21
12/22
12/23
12/24
12/25
12/26
12/27
12/28
12/29
12/30
12/31
1/1
1/2
1/3
1/4
1/5
1/6
1/7
1/8
1/9

見学予約メニュー

  • 『建物内モデルルーム見学会』開催【完全予約制】(所要時間:120分)

    実際の建物にお入りいただき、本物件のコンセプトやデザイン、共用設備・仕様など魅力のポイントを
    担当者が分かりやすくご説明いたします。完全予約制となりますので、お申し込みはお早めにお願いいたします。

  • 『オンラインご案内会』開催【完全予約制】(所要時間:60分)

  • 『初めて住宅見学のお客様向けご案内会』開催【完全予約制】(所要時間:120分)

    マンションか戸建てか、新築か中古かなど、ご自身にとってどんな住まいがよいか、これからご検討されたいお客様向けに担当者がそれぞれのメリット・デメリットを分かりやすくご説明いたします。

【67717189】ライオンズ茨木総持寺ステーショングラン
他の物件も見てみる!

あなたにオススメの物件

PR

条件を変更して物件を探す

ページトップへ戻る
簡単!約2分で完了
以前、資料請求した物件です
簡単!約2分で完了 まずは気軽に見学予約をしてみよう!
以前にもチェックした物件です
簡単!約2分で完了 まずは気軽に見学予約や資料請求をしてみよう!

モデルルーム見学は予約優先でのご案内になります。

ぜひ、お早めにご予約ください。