"20251205210313:H:0" "20251205210313:H:0" "20251205210313:H:0"
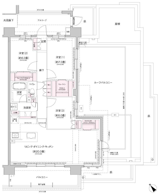
ノブレス泉中央EAST (間取り図 G2r(メニュー1))

ノブレス泉中央EAST (間取り図 G2r(メニュー1))

4390万円~5490万円  (先着順住戸)
SUUMO(スーモ)新築マンションのノブレス泉中央EASTの間取り(G2r(メニュー1))詳細情報です。
G2r(メニュー1)
  • 所在地 宮城県仙台市泉区市名坂字山岸50-2(地番)
  • 交通 仙台市地下鉄南北線「泉中央」歩22分
間取りの概要/特徴
価格

未定(第三期)

間取り
  • 3LDK
専有面積
  • 85.01m2
バルコニーまたは
テラス面積
  • 12.53m2
その他
  • アルコーブ面積:10.77m2 ※メニュープランは無償・申込期限有
特徴
キッチン
  • 電磁調理器
立地・配置
  • 角部屋
設備・構造
  • オール電化
  • リビングダイニング15畳以上
  • 角住戸
  • LD15畳以上

【この物件広告についての注釈】

※価格は物件の代金総額を表示しています。消費税が課税される場合は税込み価格を表示しており、10000円未満を切り上げている場合があります。

※住戸別の価格(帯)表記については、そのタイプに含まれるすべての住戸の情報を掲載していない場合があります。住戸タイプと各住戸の価格帯表記について、単位(1000万円・100万円・10万円)が異なる場合があります。

※「モデルルーム」とは、間取りや仕様・設備などを知ることができる施設全般を指し、それらの一部のみ展示している「サンプルルーム」や「ギャラリー」、「インフォメーションセンター」なども含みます。

※完成予想図はいずれも外構、植栽、外観等実際のものとは多少異なることがあります。

※CG合成の画像の場合、実際とは多少異なる場合があります。

※完成後1年以上を経過した未入居物件が掲載される場合があります。ご了承ください。

※掲載の省エネ性能ラベル内の物件・住棟・号室名称については最新のものに変更されている場合があります。

※概要のエネルギー消費性能、断熱性能、目安光熱費については、表示している省エネ性能ラベルによってデータの内容が異なります。販売戸数が複数の住棟ラベル、または住戸ラベルの場合は、原則建築確認が下りている物件全体の最小~最大を、販売戸数1戸の住戸ラベルの場合はその住戸のデータを表示しています。

ノブレス泉中央EAST 物件概要 先着順住戸

所在地
宮城県仙台市泉区市名坂字山岸50-2(地番)
地図を見る
交通 仙台市地下鉄南北線「泉中央」歩22分 総戸数 71戸
間取り 3LDK 専有面積 70.2m2~80.35m2
価格
4390万円~5490万円
引渡可能時期 2026年3月予定

情報更新日:2025/12/5

お問い合わせ先

ナイスノブレスマンションギャラリー泉センター

0120-001-714 無料

お問合せの際は『SUUMO(スーモ)を見て』とお伝えいただくとスムーズです。

営業時間:10:00AM~6:00PM

定休日:火・水曜日

※携帯電話・PHSからもご利用いただけます。

見学予約スケジュール

見学をご希望される日程をお選びください。

12/5
12/6
12/7
12/8
12/9
12/10
12/11
12/12
12/13
12/14
12/15
12/16
12/17
12/18
12/19
12/20
12/21
12/22
12/23
12/24
12/25
12/26
12/27
12/28
12/29
12/30
12/31
1/1
1/2
1/3
1/4
1/5
1/6
1/7
1/8

見学予約メニュー

  • モデルルームご見学会(所要時間:120分)

  • 【はじめての方にオススメ】住宅購入ご相談会(所要時間:120分)

  • 【新築?中古?マンション?戸建て?】比較検討相談コース(所要時間:120分)

【67731024】ノブレス泉中央EAST
他の物件も見てみる!

あなたにオススメの物件

PR

条件を変更して物件を探す

ページトップへ戻る
簡単!約2分で完了
以前、資料請求した物件です
簡単!約2分で完了 まずは気軽に見学予約をしてみよう!
以前にもチェックした物件です
簡単!約2分で完了 まずは気軽に見学予約や資料請求をしてみよう!

モデルルーム見学は予約優先でのご案内になります。

ぜひ、お早めにご予約ください。