"20251209085411:H:0" "20251209085411:H:0" "20251209085411:H:0"
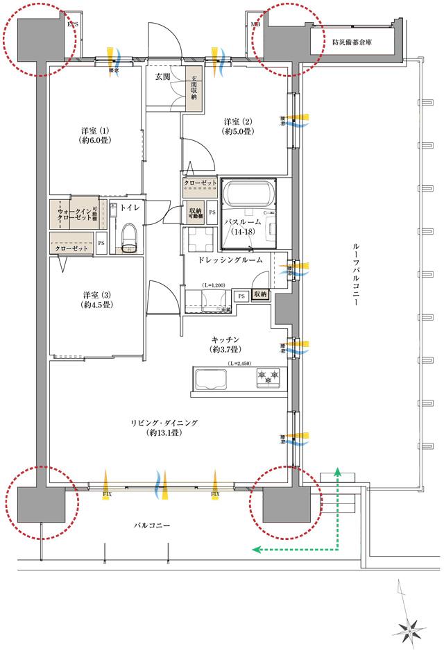
サーパス伏石中央公園南 (間取り図 Cr)

サーパス伏石中央公園南 (間取り図 Cr)

3588万円~4258万円  (先着順)
SUUMO(スーモ)新築マンションのサーパス伏石中央公園南の間取り(Cr)詳細情報です。
Cr
  • 所在地 香川県高松市伏石町2089-4(地番)
  • 交通 高松琴平電鉄琴平線「伏石」歩11分
間取りの概要/特徴
価格

3998万円(先着順)

間取り
  • 3LDK+WIC
専有面積
  • 73.92m2
バルコニーまたは
テラス面積
  • 16.8m2
その他
  • ルーフバルコニー面積:36.96m2
特徴
立地・配置
  • 角部屋
設備・構造
  • 光ファイバー対応
  • 角住戸
  • ルーフバルコニー

【この物件広告についての注釈】

※価格は物件の代金総額を表示しています。消費税が課税される場合は税込み価格を表示しており、10000円未満を切り上げている場合があります。

※住戸別の価格(帯)表記については、そのタイプに含まれるすべての住戸の情報を掲載していない場合があります。住戸タイプと各住戸の価格帯表記について、単位(1000万円・100万円・10万円)が異なる場合があります。

※「モデルルーム」とは、間取りや仕様・設備などを知ることができる施設全般を指し、それらの一部のみ展示している「サンプルルーム」や「ギャラリー」、「インフォメーションセンター」なども含みます。

※完成予想図はいずれも外構、植栽、外観等実際のものとは多少異なることがあります。

※CG合成の画像の場合、実際とは多少異なる場合があります。

※完成後1年以上を経過した未入居物件が掲載される場合があります。ご了承ください。

※掲載の省エネ性能ラベル内の物件・住棟・号室名称については最新のものに変更されている場合があります。

※概要のエネルギー消費性能、断熱性能、目安光熱費については、表示している省エネ性能ラベルによってデータの内容が異なります。販売戸数が複数の住棟ラベル、または住戸ラベルの場合は、原則建築確認が下りている物件全体の最小~最大を、販売戸数1戸の住戸ラベルの場合はその住戸のデータを表示しています。

サーパス伏石中央公園南 物件概要 先着順

所在地
香川県高松市伏石町2089-4(地番)
地図を見る
交通 高松琴平電鉄琴平線「伏石」歩11分 総戸数 51戸
間取り 3LDK 専有面積 71.68m2~79.13m2
価格
3588万円~4258万円
引渡可能時期 2026年3月下旬予定

情報更新日:2025/12/4

お問い合わせ先

総合ご案内センター

0120-384-215 無料

お問合せの際は『SUUMO(スーモ)を見て』とお伝えいただくとスムーズです。

営業時間:10:00AM~6:00PM

定休日:火曜・水曜・第2木曜日(祝日を除く)

見学予約スケジュール

見学をご希望される日程をお選びください。

12/9
12/10
12/11
12/12
12/13
12/14
12/15
12/16
12/17
12/18
12/19
12/20
12/21
12/22
12/23
12/24
12/25
12/26
12/27
12/28
12/29
12/30
12/31
1/1
1/2
1/3
1/4
1/5
1/6
1/7
1/8
1/9
1/10
1/11
1/12

見学予約メニュー

  • 【はじめての住宅検討におすすめ】住宅購入の基本コース(所要時間:60分)

    ◇◆開催日時:月木金土日祝 10:00~18:00 ◆◇

  • モデルルーム+建設地周辺見学ツアー(所要時間:60分)

    ◇◆開催日時:月木金土日祝 10:00~18:00◆◇

  • 【オンライン案内】ご自宅で物件説明が受けられるコース(所要時間:60分)

    ◇◆開催日時:月木金土日祝 10:00~18:00 ◆◇

【67731389】サーパス伏石中央公園南
他の物件も見てみる!

あなたにオススメの物件

PR

条件を変更して物件を探す

ページトップへ戻る
簡単!約2分で完了
以前、資料請求した物件です
簡単!約2分で完了 まずは気軽に見学予約をしてみよう!
以前にもチェックした物件です
簡単!約2分で完了 まずは気軽に見学予約や資料請求をしてみよう!

モデルルーム見学は予約優先でのご案内になります。

ぜひ、お早めにご予約ください。