"20251208025409:H:0" "20251208025409:H:0" "20251208025409:H:0"
サーパス伏石中央公園南 (取材レポート)

サーパス伏石中央公園南 (取材レポート)

3588万円~4258万円  (先着順)
SUUMO(スーモ)新築マンションのサーパス伏石中央公園南の取材レポート情報です。

サン・フラワー通り×レインボーロードの利便性を享受する全51邸

「サーパス伏石中央公園南」

詳しい資料請求、見学予約はこちらから。
右画像:外観完成予想CG

簡単!約2分で完了
簡単!約2分で完了 以前に資料請求した物件です。気軽に見学予約をして物件を見学しに行こう! 以前にもチェックした物件です。まずは気軽に見学予約や資料請求をしてみよう!
1
【position】高松市による「太田第2土地区画整理事業」の区画整理エリアに誕生
サン・フラワー通り×レインボーロード、その利便性を享受するポジションに誕生
  • ここ高松市で創業した穴吹工務店が供給する<サーパス伏石中央公園南>。同マンションが誕生するのは、高松市が20数年におよぶ長い年月を経て、美しい街並みを整備してきた「太田第2土地区画整理事業」の区画整理地内。昔は田畑の多い地域でしたが、今は道路整備や宅地開発が進み、街が活性化しています。

  • 同マンションが誕生する伏石エリアは閑静な住宅街でありながら、ロードサイドには商業施設が多く、暮らし心地のよい場所。現地周辺の道路は幅が広くて見通しもよく、歩道には街路樹や季節の花などが計画的に配置されていて、美しくきれいに整った環境が大きな魅力です。

サーパス伏石中央公園南の取材レポート画像
現地周辺を撮影(2024年1月)し、CG加工を施したもので、実際とは多少異なります※1
  • サーパス伏石中央公園南の取材レポート画像
    レインボーロード

    レインボーロードには、光、水、花、風の4種のプロムナードと題して、季節感ある草花やさまざまなモニュメントが設置されており、夜は明るくライトアップされます。ロードサイドにはスーパーや数多くの専門店が並び、平日週末問わず、賑わいのあるストリートです。

  • サーパス伏石中央公園南の取材レポート画像
    サン・フラワー通り

    サン・フラワー通りは少し異なった雰囲気を持つストリートです。レインボーロードより比較的交通量が減少するため、穏やかな印象があります。本物件は商業利便の高いレインボーロードを生活圏に置きながら、静かな住環境も得ることができる立地です。

2
【location】子育ても安心な永く暮らせる住環境。駅へ自転車約4分で通勤通学も快適
小学校徒歩3分、大型公園徒歩5分、2本の大通り周辺の多彩な商業施設が魅力
  • 現地周辺には「コープかがわ コープ太田」をはじめ、商業施設が充実しています。また小学校や保育園へ徒歩3分と近く、子育て世帯に嬉しい、安心の教育環境です。さらには家族みんなで楽しめる「伏石中央公園」など大小さまざまな公園が身近に整い、自然と触れ合い、思い切り遊べる環境がすぐそばにあります。

  • このエリアにお勤めの方は、「スーパー、ドラッグストア、コンビニエンスストア、ホームセンターなどが充実し、買い物に困りません。ボール遊びができる大きな公園もあり、坂道が無いので小中学校への通学もラク。遊びも憩いも買い物も周辺で完結する利便性の良さと、のんびりとした雰囲気が魅力です」と語ります。

    • サーパス伏石中央公園南の取材レポート画像
      コープかがわ コープ太田(徒歩7分)
    • サーパス伏石中央公園南の取材レポート画像
      市立太田保育所(徒歩5分)
    • サーパス伏石中央公園南の取材レポート画像
      伏石中央公園(徒歩5分)
    • サーパス伏石中央公園南の取材レポート画像
      ハローズ 高松レインボー店(徒歩8分)
    • サーパス伏石中央公園南の取材レポート画像
      市立太田小学校(徒歩3分)
    • サーパス伏石中央公園南の取材レポート画像
      竹広小児科医院(徒歩9分)
  • サーパス伏石中央公園南の取材レポート画像
    アクセス図
    • サーパス伏石中央公園南の取材レポート画像
      「伏石」駅
    • サーパス伏石中央公園南の取材レポート画像
      レインボー循環バス「サンフラワー東」バス停
    通勤通学に便利な「伏石」駅へ自転車約4分

    ■「伏石」駅へ自転車でスムーズアクセス
    ことでん琴平線「伏石」駅自転車で約4分(約820m)
    「伏石」駅から「瓦町」駅まで乗車7分
    「伏石」駅から「高松築港」駅まで乗車12分

    ■バスでも気軽に周辺エリアへ
    レインボー循環「サンフラワー東」バス停まで
    西廻り/徒歩7分(約540m)、東廻り/徒歩8分(約640m)

    鹿角線・塩江線「たかまつ楽器前」バス停まで
    香川中央高校方面/徒歩2分(約120m)
    瓦町方面/徒歩2分(約140m)

    ■インターまで約4分で軽快なカーアクセス
    高松東バイパス利用で高松中央I.C.へ車約4分(約2580m)



3
【equipment】キッチン、収納など設備仕様にこだわり抜き、快適な空間を実現
サーパス伏石中央公園南の取材レポート画像
ラクユスキッチン(同仕様写真)
サーパス新提案の「ラクユスキッチン」

ただ作業する場から、キッチンは楽しむ場所へ。コロナ禍を経て「食」への向き合い方が多様化したことにより、キッチンのあり方も大きく変わろうとしています。

これからの時代にふさわしい“新発想”ラクユスキッチンを全邸に標準採用。コンロ前の壁を撤去し、カウンターを延長することで、手元を隠しながらも開放感のあるキッチンを実現しました。誰もが片付けやすい収納や食器洗い乾燥機などの先進設備も搭載しました。

  • サーパス伏石中央公園南の取材レポート画像
    食器洗い乾燥機(Eタイプ・モデルルーム写真)
  • サーパス伏石中央公園南の取材レポート画像
    浄水器一体型タッチレス水栓(Eタイプ・モデルルーム写真)
  • サーパス伏石中央公園南の取材レポート画像
    マグネット対応のキッチンパネル(同仕様写真)
  • サーパス伏石中央公園南の取材レポート画像
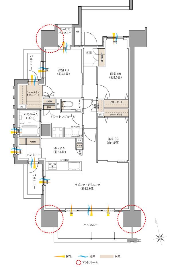
    Aタイプ・3LDK+WIC、専有面積/79.13m2、バルコニー面積/15.75m2(※2)
    • サーパス伏石中央公園南の取材レポート画像
      アウトフレーム設計(概念図)
    • サーパス伏石中央公園南の取材レポート画像
      センターオープンサッシ(Eタイプ・モデルルーム写真)
    暮らし心地を高めるこだわりの設計

    ■アウトフレーム設計
    柱や梁を部屋の外に設置することで、部屋の隅まで家具を配置できるため、デッドスペースが少なく、空間の広さを無駄なく活用することができます。

    ■センターオープンサッシ
    同マンションは全邸南向きを実現しています。サッシの中央が大きく開くセンターオープンサッシを採用することで、さらなる開放感や明るさを確保できる設計となっています。

「サーパス伏石中央公園南」

詳しい資料請求、見学予約はこちらから。
右画像:外観完成予想CG

簡単!約2分で完了
簡単!約2分で完了 以前に資料請求した物件です。気軽に見学予約をして物件を見学しに行こう! 以前にもチェックした物件です。まずは気軽に見学予約や資料請求をしてみよう!

※1:光の柱は現地の場所を示しているもので、規模や高さを表しているものではございません。
※2:サービスバルコニー面積/1.62m2
※文中の施設までの距離:ローソン 高松伏石店(徒歩2分)、ヤマダデンキ テックランドNew高松レインボー通り店(徒歩8分)、ウエルシア 高松伏石店(徒歩9分)、伏石にこにこ保育園(徒歩3分)、さくら伏石保育園(徒歩7分)、市立太田中学校(徒歩19分)、とびうめ内科(徒歩8分)、ぶんご内科医院(徒歩9分)、伏石立石公園(徒歩5分)、伏石南公園(徒歩5分)、高松伏石郵便局(徒歩7分)
※WIC:ウォークインクローゼット

【この物件広告についての注釈】

※価格は物件の代金総額を表示しています。消費税が課税される場合は税込み価格を表示しており、10000円未満を切り上げている場合があります。

※住戸別の価格(帯)表記については、そのタイプに含まれるすべての住戸の情報を掲載していない場合があります。住戸タイプと各住戸の価格帯表記について、単位(1000万円・100万円・10万円)が異なる場合があります。

※「モデルルーム」とは、間取りや仕様・設備などを知ることができる施設全般を指し、それらの一部のみ展示している「サンプルルーム」や「ギャラリー」、「インフォメーションセンター」なども含みます。

※完成予想図はいずれも外構、植栽、外観等実際のものとは多少異なることがあります。

※CG合成の画像の場合、実際とは多少異なる場合があります。

※完成後1年以上を経過した未入居物件が掲載される場合があります。ご了承ください。

※掲載の省エネ性能ラベル内の物件・住棟・号室名称については最新のものに変更されている場合があります。

※概要のエネルギー消費性能、断熱性能、目安光熱費については、表示している省エネ性能ラベルによってデータの内容が異なります。販売戸数が複数の住棟ラベル、または住戸ラベルの場合は、原則建築確認が下りている物件全体の最小~最大を、販売戸数1戸の住戸ラベルの場合はその住戸のデータを表示しています。

サーパス伏石中央公園南 物件概要 先着順

所在地
香川県高松市伏石町2089-4(地番)
地図を見る
交通 高松琴平電鉄琴平線「伏石」歩11分 総戸数 51戸
間取り 3LDK 専有面積 71.68m2~79.13m2
価格
3588万円~4258万円
引渡可能時期 2026年3月下旬予定

情報更新日:2025/12/4

お問い合わせ先

総合ご案内センター

0120-384-215 無料

お問合せの際は『SUUMO(スーモ)を見て』とお伝えいただくとスムーズです。

営業時間:10:00AM~6:00PM

定休日:火曜・水曜・第2木曜日(祝日を除く)

見学予約スケジュール

見学をご希望される日程をお選びください。

12/8
12/9
12/10
12/11
12/12
12/13
12/14
12/15
12/16
12/17
12/18
12/19
12/20
12/21
12/22
12/23
12/24
12/25
12/26
12/27
12/28
12/29
12/30
12/31
1/1
1/2
1/3
1/4
1/5
1/6
1/7
1/8
1/9
1/10
1/11

見学予約メニュー

  • 【はじめての住宅検討におすすめ】住宅購入の基本コース(所要時間:60分)

    ◇◆開催日時:月木金土日祝 10:00~18:00 ◆◇

  • モデルルーム+建設地周辺見学ツアー(所要時間:60分)

    ◇◆開催日時:月木金土日祝 10:00~18:00◆◇

  • 【オンライン案内】ご自宅で物件説明が受けられるコース(所要時間:60分)

    ◇◆開催日時:月木金土日祝 10:00~18:00 ◆◇

【67731389】サーパス伏石中央公園南
他の物件も見てみる!

あなたにオススメの物件

PR

条件を変更して物件を探す

ページトップへ戻る

見学予約

可能な日程

12/8
12/9
12/10
12/11
12/12
12/13
12/14
他の日程
簡単!約2分で完了
以前、資料請求した物件です
簡単!約2分で完了 まずは気軽に見学予約をしてみよう!
以前にもチェックした物件です
簡単!約2分で完了 まずは気軽に見学予約や資料請求をしてみよう!

モデルルーム見学は予約優先でのご案内になります。

ぜひ、お早めにご予約ください。