"20251205142004:H:0" "20251205142004:H:0" "20251205142004:H:0"
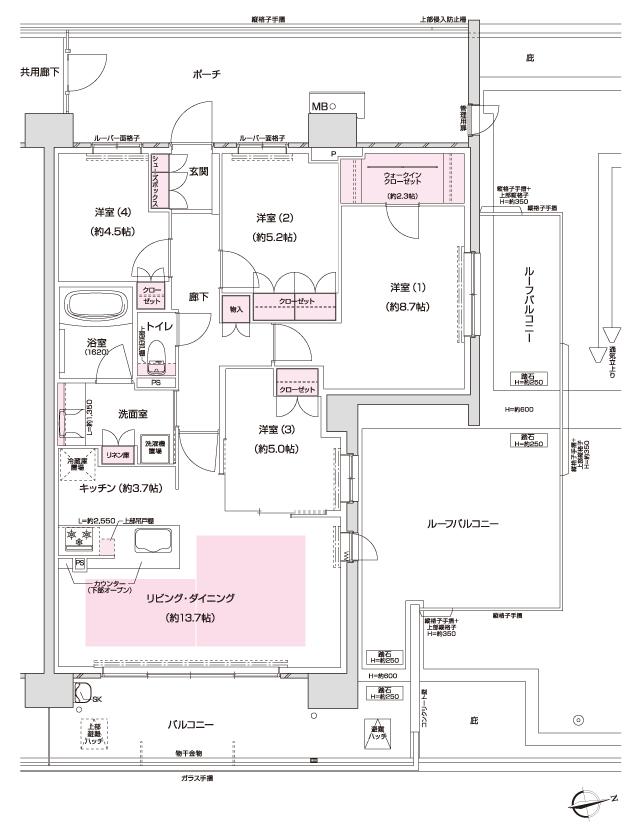
プレディア神戸舞子レジデンス (間取り図 EH2)

プレディア神戸舞子レジデンス (間取り図 EH2)

4648万円~8048万円  (先着順)
SUUMO(スーモ)新築マンションのプレディア神戸舞子レジデンスの間取り(EH2)詳細情報です。
EH2
  • 所在地 兵庫県神戸市垂水区舞子台1丁目19番1(地番)
  • 交通 JR山陽本線「舞子」歩7分
間取りの概要/特徴
価格

8048万円(先着順)

間取り
  • 4LDK+WIC
専有面積
  • 91.54m2
バルコニーまたは
テラス面積
  • 16m2
その他
  • ルーフバルコニー面積:30.88m2
  • ポーチ面積:21.32m2
特徴
キッチン
  • 浄水器or活水器
立地・配置
  • 角部屋
設備・構造
  • 光ファイバー対応
  • 床暖房
  • 浴室1.6×2.0M以上
  • 角住戸
  • ルーフバルコニー
部屋ごとの価格

※S:サービスルーム(納戸) ※WIC:ウォークインクローゼット ※SIC:シューズインクローゼット ※MC:マルチクローゼット
※掲載の図面・設備・仕様は計画段階のものであり、変更になる場合があります。

【この物件広告についての注釈】

※価格は物件の代金総額を表示しています。消費税が課税される場合は税込み価格を表示しており、10000円未満を切り上げている場合があります。

※住戸別の価格(帯)表記については、そのタイプに含まれるすべての住戸の情報を掲載していない場合があります。住戸タイプと各住戸の価格帯表記について、単位(1000万円・100万円・10万円)が異なる場合があります。

※「モデルルーム」とは、間取りや仕様・設備などを知ることができる施設全般を指し、それらの一部のみ展示している「サンプルルーム」や「ギャラリー」、「インフォメーションセンター」なども含みます。

※完成予想図はいずれも外構、植栽、外観等実際のものとは多少異なることがあります。

※CG合成の画像の場合、実際とは多少異なる場合があります。

※完成後1年以上を経過した未入居物件が掲載される場合があります。ご了承ください。

※掲載の省エネ性能ラベル内の物件・住棟・号室名称については最新のものに変更されている場合があります。

※概要のエネルギー消費性能、断熱性能、目安光熱費については、表示している省エネ性能ラベルによってデータの内容が異なります。販売戸数が複数の住棟ラベル、または住戸ラベルの場合は、原則建築確認が下りている物件全体の最小~最大を、販売戸数1戸の住戸ラベルの場合はその住戸のデータを表示しています。

プレディア神戸舞子レジデンス 物件概要 先着順

所在地
兵庫県神戸市垂水区舞子台1丁目19番1(地番)
地図を見る
交通 JR山陽本線「舞子」歩7分 総戸数 350戸
間取り 3LDK・4LDK 専有面積 65.54m2~91.54m2
価格
4648万円~8048万円 価格表を見る
引渡可能時期 2026年9月上旬予定

情報更新日:2025/12/3

お問い合わせ先

「プレディア神戸舞子レジデンス」マンションギャラリー

0120-320-315 無料

お問合せの際は『SUUMO(スーモ)を見て』とお伝えいただくとスムーズです。

営業時間:平日/11:00~17:00 土・日・祝/10:00~17:00

定休日:第二火曜・水・木曜日

※携帯電話からもご利用いただけます。

見学予約スケジュール

見学をご希望される日程をお選びください。

12/5
12/6
12/7
12/8
12/9
12/10
12/11
12/12
12/13
12/14
12/15
12/16
12/17
12/18
12/19
12/20
12/21
12/22
12/23
12/24
12/25
12/26
12/27
12/28
12/29
12/30
12/31
1/1
1/2
1/3
1/4
1/5
1/6
1/7
1/8

見学予約メニュー

  • 【標準プラン】モデルルーム見学会 《ご来場で2000円ギフト券プレゼント!》(所要時間:120分)

    モデルルーム・周辺環境・間取りなど、当マンションの基本情報を一通りご案内させていただくプランです。

  • 【はじめての方向け】はじめてのマンション見学コース《ご来場で2000円ギフト券プレゼント!》(所要時(所要時間:120分)

    「モデルルームのご見学は初めて」という方にお勧めのコースです。

【67728492】プレディア神戸舞子レジデンス
他の物件も見てみる!

あなたにオススメの物件

PR

条件を変更して物件を探す

ページトップへ戻る
簡単!約2分で完了
以前、資料請求した物件です
簡単!約2分で完了 まずは気軽に見学予約をしてみよう!
以前にもチェックした物件です
簡単!約2分で完了 まずは気軽に見学予約や資料請求をしてみよう!

モデルルーム見学は予約優先でのご案内になります。

ぜひ、お早めにご予約ください。