"20251206095705:H:0" "20251206095705:H:0" "20251206095705:H:0"
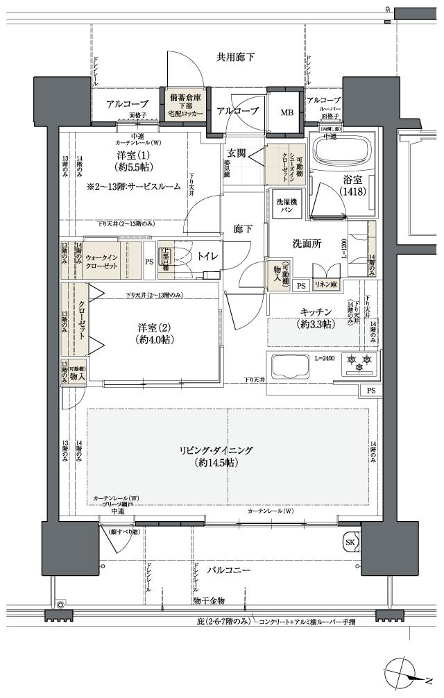
Theフローレンス三之丸西御門 (間取り図 B(MENU PLAN4)(1LDK+S))

Theフローレンス三之丸西御門 (間取り図 B(MENU PLAN4)(1LDK+S))

3798万円~6148万円  (第2期)
SUUMO(スーモ)新築マンションのTheフローレンス三之丸西御門の間取り(B(MENU PLAN4)(1LDK+S))詳細情報です。
B(MENU PLAN4)(1LDK+S)
  • 所在地 広島県福山市三之丸町124(地番)
  • 交通 JR山陽本線「福山」歩7分
間取りの概要/特徴
価格

3798万円~4050万円(第2期)

間取り
  • 1LDK+S+SIC+WIC
専有面積
  • 61.85m2
バルコニーまたは
テラス面積
  • 14.5m2
その他
  • アルコーブ面積:4.48m2 備蓄倉庫・宅配ロッカー面積:0.75m2 MB面積:0.7m2 ※2~13F ※メニュープランは無償・申込期限有
特徴
キッチン
  • 浄水器or活水器
設備・構造
  • 光ファイバー対応
  • 床暖房

※S=サービスルーム(納戸)

【この物件広告についての注釈】

※価格は物件の代金総額を表示しています。消費税が課税される場合は税込み価格を表示しており、10000円未満を切り上げている場合があります。

※住戸別の価格(帯)表記については、そのタイプに含まれるすべての住戸の情報を掲載していない場合があります。住戸タイプと各住戸の価格帯表記について、単位(1000万円・100万円・10万円)が異なる場合があります。

※「モデルルーム」とは、間取りや仕様・設備などを知ることができる施設全般を指し、それらの一部のみ展示している「サンプルルーム」や「ギャラリー」、「インフォメーションセンター」なども含みます。

※完成予想図はいずれも外構、植栽、外観等実際のものとは多少異なることがあります。

※CG合成の画像の場合、実際とは多少異なる場合があります。

※完成後1年以上を経過した未入居物件が掲載される場合があります。ご了承ください。

※掲載の省エネ性能ラベル内の物件・住棟・号室名称については最新のものに変更されている場合があります。

※概要のエネルギー消費性能、断熱性能、目安光熱費については、表示している省エネ性能ラベルによってデータの内容が異なります。販売戸数が複数の住棟ラベル、または住戸ラベルの場合は、原則建築確認が下りている物件全体の最小~最大を、販売戸数1戸の住戸ラベルの場合はその住戸のデータを表示しています。

Theフローレンス三之丸西御門 物件概要 第2期

所在地
広島県福山市三之丸町124(地番)
地図を見る
交通 JR山陽本線「福山」歩7分 総戸数 40戸
間取り 2LDK+S(納戸)~4LDK 専有面積 61.85m2~87.42m2
価格
3798万円~6148万円
引渡可能時期 2026年7月中旬予定

情報更新日:2025/12/3

お問い合わせ先

「Theフローレンス三之丸西御門」マンションギャラリー

0120-13-2604 無料

お問合せの際は『SUUMO(スーモ)を見て』とお伝えいただくとスムーズです。

営業時間:10:00AM~8:00PM

定休日:水曜日(祝日除く)

見学予約スケジュール

見学をご希望される日程をお選びください。

12/6
12/7
12/8
12/9
12/10
12/11
12/12
12/13
12/14
12/15
12/16
12/17
12/18
12/19
12/20
12/21
12/22
12/23
12/24
12/25
12/26
12/27
12/28
12/29
12/30
12/31
1/1
1/2
1/3
1/4
1/5
1/6
1/7
1/8
1/9

見学予約メニュー

  • 【120分】基本ご接客(所要時間:120分)

    ◇◆開催日時: 10:00~ 13:00~ 16:00~ ◆◇

【67732373】Theフローレンス三之丸西御門
他の物件も見てみる!

あなたにオススメの物件

PR

条件を変更して物件を探す

ページトップへ戻る
簡単!約2分で完了
以前、資料請求した物件です
簡単!約2分で完了 まずは気軽に見学予約をしてみよう!
以前にもチェックした物件です
簡単!約2分で完了 まずは気軽に見学予約や資料請求をしてみよう!

モデルルーム見学は予約優先でのご案内になります。

ぜひ、お早めにご予約ください。