"20251206041528:H:0" "20251206041528:H:0" "20251206041528:H:0"
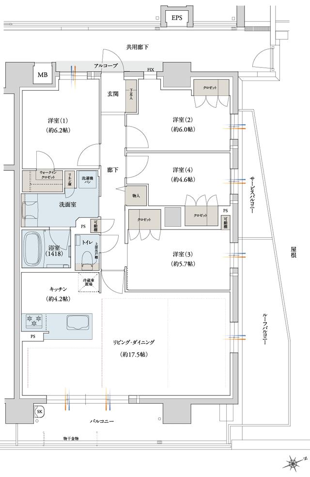
ジェイグラン六本松レジデンス (間取り図 H)

ジェイグラン六本松レジデンス (間取り図 H)

5400万円台~1億1900万円台/予定
SUUMO(スーモ)新築マンションのジェイグラン六本松レジデンスの間取り(H)詳細情報です。
H
  • 所在地 福岡県福岡市中央区谷1丁目184番1(地番)
  • 交通 地下鉄七隈線「桜坂」歩7分
間取りの概要/特徴
価格

未定

間取り
  • 4LDK+WIC
専有面積
  • 96.23m2
バルコニーまたは
テラス面積
  • 13.5m2
その他
  • ルーフバルコニー面積:12.62m2
  • サービスバルコニー面積:4.83m2
特徴
キッチン
  • 浄水器or活水器
立地・配置
  • 角部屋
設備・構造
  • 光ファイバー対応
  • 床暖房
  • リビングダイニング15畳以上
  • 角住戸
  • LD15畳以上
  • ルーフバルコニー

【この物件広告についての注釈】

※価格は物件の代金総額を表示しています。消費税が課税される場合は税込み価格を表示しており、10000円未満を切り上げている場合があります。

※住戸別の価格(帯)表記については、そのタイプに含まれるすべての住戸の情報を掲載していない場合があります。住戸タイプと各住戸の価格帯表記について、単位(1000万円・100万円・10万円)が異なる場合があります。

※「モデルルーム」とは、間取りや仕様・設備などを知ることができる施設全般を指し、それらの一部のみ展示している「サンプルルーム」や「ギャラリー」、「インフォメーションセンター」なども含みます。

※完成予想図はいずれも外構、植栽、外観等実際のものとは多少異なることがあります。

※CG合成の画像の場合、実際とは多少異なる場合があります。

※完成後1年以上を経過した未入居物件が掲載される場合があります。ご了承ください。

※掲載の省エネ性能ラベル内の物件・住棟・号室名称については最新のものに変更されている場合があります。

※概要のエネルギー消費性能、断熱性能、目安光熱費については、表示している省エネ性能ラベルによってデータの内容が異なります。販売戸数が複数の住棟ラベル、または住戸ラベルの場合は、原則建築確認が下りている物件全体の最小~最大を、販売戸数1戸の住戸ラベルの場合はその住戸のデータを表示しています。

ジェイグラン六本松レジデンス 物件概要

所在地
福岡県福岡市中央区谷1丁目184番1(地番)
地図を見る
交通 地下鉄七隈線「桜坂」歩7分 総戸数 34戸
間取り 2LDK~4LDK 専有面積 62.32m2~96.23m2
予定価格帯
5400万円台~1億1900万円台
引渡可能時期 2026年3月下旬予定
販売スケジュール 販売開始予定 2025年12月中旬

情報更新日:2025/12/6

お問い合わせ先

ジェイグラン販売センター

0800-8080-879 無料

お問合せの際は『SUUMO(スーモ)を見て』とお伝えいただくとスムーズです。

営業時間:10:00~18:00

定休日:毎週水・木曜日※祝日を除く

見学予約スケジュール

見学をご希望される日程をお選びください。

12/6
12/7
12/8
12/9
12/10
12/11
12/12
12/13
12/14
12/15
12/16
12/17
12/18
12/19
12/20
12/21
12/22
12/23
12/24
12/25
12/26
12/27
12/28
12/29
12/30
12/31
1/1
1/2
1/3
1/4
1/5
1/6
1/7
1/8
1/9

見学予約メニュー

  • 建物内見学会《完全予約制》(所要時間:180分)

    ◇◆開催日時:11月29日(土)~  (1)10:00~ (2)14:00~ (3)17:00~◆◇
    ◇◆会場:ジェイグラン六本松レジデンス 現地 (住所:福岡市中央区谷1丁目4番53)◆◇

【67727412】ジェイグラン六本松レジデンス
他の物件も見てみる!

あなたにオススメの物件

PR

条件を変更して物件を探す

ページトップへ戻る
簡単!約2分で完了
以前、資料請求した物件です
簡単!約2分で完了 まずは気軽に見学予約をしてみよう!
以前にもチェックした物件です
簡単!約2分で完了 まずは気軽に見学予約や資料請求をしてみよう!

モデルルーム見学は予約優先でのご案内になります。

ぜひ、お早めにご予約ください。