"20251206171646:H:0" "20251206171646:H:0" "20251206171646:H:0"
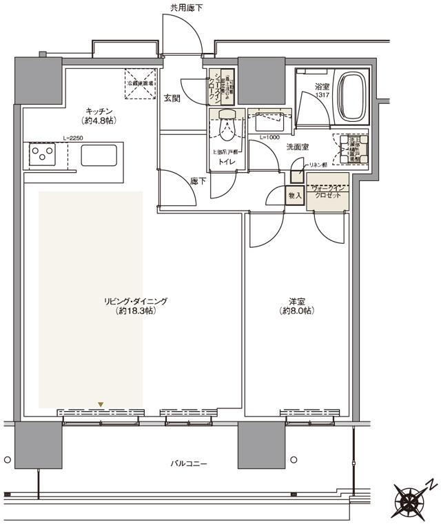
NAGOYA the TOWER (間取り図 H-8(メニュー2))

NAGOYA the TOWER (間取り図 H-8(メニュー2))

5828万円~2億7888万円  (先着順)
SUUMO(スーモ)新築マンションのNAGOYA the TOWERの間取り(H-8(メニュー2))詳細情報です。
H-8(メニュー2)
  • 所在地 愛知県名古屋市中村区名駅南2-702-1(地番)
  • 交通 JR東海道本線「名古屋」歩14分
間取りの概要/特徴
価格

7158万円(先着順)

間取り
  • 1LDK+SIC+WIC
専有面積
  • 67.97m2
バルコニーまたは
テラス面積
  • 13.21m2
特徴
キッチン
  • ディスポーザー
  • 浄水器or活水器
設備・構造
  • 光ファイバー対応
  • 床暖房
  • リビングダイニング15畳以上
  • LD15畳以上

【この物件広告についての注釈】

※価格は物件の代金総額を表示しています。消費税が課税される場合は税込み価格を表示しており、10000円未満を切り上げている場合があります。

※住戸別の価格(帯)表記については、そのタイプに含まれるすべての住戸の情報を掲載していない場合があります。住戸タイプと各住戸の価格帯表記について、単位(1000万円・100万円・10万円)が異なる場合があります。

※「モデルルーム」とは、間取りや仕様・設備などを知ることができる施設全般を指し、それらの一部のみ展示している「サンプルルーム」や「ギャラリー」、「インフォメーションセンター」なども含みます。

※完成予想図はいずれも外構、植栽、外観等実際のものとは多少異なることがあります。

※CG合成の画像の場合、実際とは多少異なる場合があります。

※完成後1年以上を経過した未入居物件が掲載される場合があります。ご了承ください。

※掲載の省エネ性能ラベル内の物件・住棟・号室名称については最新のものに変更されている場合があります。

※概要のエネルギー消費性能、断熱性能、目安光熱費については、表示している省エネ性能ラベルによってデータの内容が異なります。販売戸数が複数の住棟ラベル、または住戸ラベルの場合は、原則建築確認が下りている物件全体の最小~最大を、販売戸数1戸の住戸ラベルの場合はその住戸のデータを表示しています。

NAGOYA the TOWER 物件概要 先着順

所在地
愛知県名古屋市中村区名駅南2-702-1(地番)
地図を見る
交通 JR東海道本線「名古屋」歩14分 総戸数 435戸
間取り 2LDK~3LDK 専有面積 60.18m2~135.45m2
価格
5828万円~2億7888万円
引渡可能時期 即引渡可※諸手続き完了後

情報更新日:2025/12/3

お問い合わせ先

「NAGOYA the TOWER」現地インフォメーションサロン

0120-758-042 無料

お問合せの際は『SUUMO(スーモ)を見て』とお伝えいただくとスムーズです。

営業時間:10:00AM~6:00PM

定休日:水・木曜日(祝日は営業)

見学予約スケジュール

見学をご希望される日程をお選びください。

12/6
12/7
12/8
12/9
12/10
12/11
12/12
12/13
12/14
12/15
12/16
12/17
12/18
12/19
12/20
12/21
12/22
12/23
12/24
12/25
12/26
12/27
12/28
12/29
12/30
12/31
1/1
1/2
1/3
1/4
1/5
1/6
1/7
1/8
1/9

見学予約メニュー

  • NAGOYA the TOWER モデルルームご案内会(所要時間:120分)

    名古屋都心・名駅最寄りの超高層42階建タワープロジェクト、ご予約を承ります。 (感染対策としてお席数限定・完全ご予約制)

【67721278】NAGOYA the TOWER
他の物件も見てみる!

あなたにオススメの物件

PR

条件を変更して物件を探す

ページトップへ戻る
簡単!約2分で完了
以前、資料請求した物件です
簡単!約2分で完了 まずは気軽に見学予約をしてみよう!
以前にもチェックした物件です
簡単!約2分で完了 まずは気軽に見学予約や資料請求をしてみよう!

モデルルーム見学は予約優先でのご案内になります。

ぜひ、お早めにご予約ください。