いえとち本舗

いえとち本舗

【山口】家も土地も、まとめてお任せ!ローコスト住宅はいえとち本舗のイエテラス
お気に入りに追加する
山口県山口市陶  Fさん
【1000万円台/山口市/3LDK/28坪】家事導線にこだわった家
いえとち本舗 【1000万円台/山口市/3LDK/28坪】家事導線にこだわった家の建築実例画像1
  • 本体価格
    1,499万円
    52.1万円/坪
  • 延床面積
    95.22m2 (28.8坪)
    敷地面積
    474.94m2 (143.6坪)
    家族構成
    夫婦(30代)+子ども1人
  • 竣工年月
    2021年8月
    工法
    木造軸組
この会社をもっと知りたくなったら
無料でお届け!まずはカタログ請求

施主Fさんのこだわり

家事ラク動線!子どもの様子も見ながら毎日の家事がスムーズな間取りを実現!

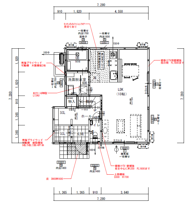
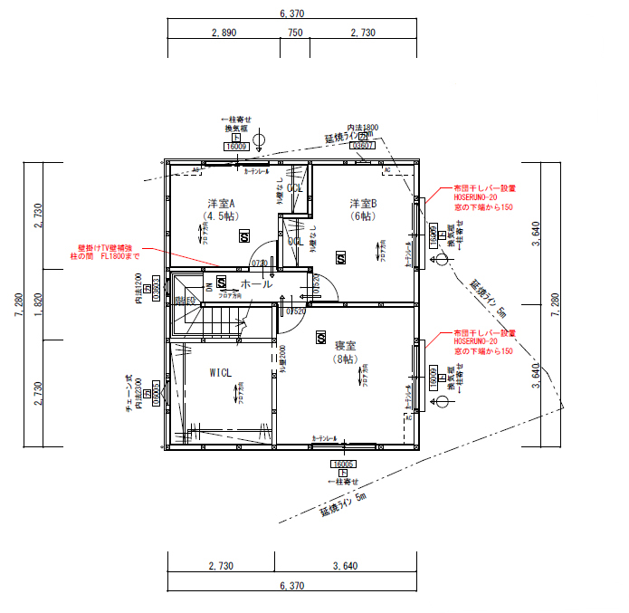
Fさんが家づくりで最もこだわったのは、日々の家事を行う上で動きやすい家事導線。特にキッチンと洗面が隣り合わせの間取りはこだわったポイントの一つ。3歩で互いを行き来できるため、子どもの様子や声を感じながら家事を進められる。人気のシューズクローゼットやウォークインクローゼットはもちろん階段下収納など、余すことなく収納が充実している部分もお気に入り。それ以外にも全棟標準の太陽光を取り入れるなど、性能が充実している部分、など満足のいく住まいに仕上がった。

Fさんが家づくりで最もこだわったのは、日々の家事を行う上で動きやすい家事導線。特にキッチンと洗面が隣り合わせの間取りはこだわったポイントの一つ。3歩で互いを行き来できるため、子どもの様子や声を感じながら家事を進められる。人気のシューズクローゼットやウォークインクローゼットはもちろん階段下収納など、余すことなく収納が充実している部分もお気に入り。それ以外にも全棟標準の太陽光を取り入れるなど、性能が充実している部分、など満足のいく住まいに仕上がった。

間取り図(3LDK)

1階
いえとち本舗 【1000万円台/山口市/3LDK/28坪】家事導線にこだわった家の間取り図(3LDK)1階
2階
いえとち本舗 【1000万円台/山口市/3LDK/28坪】家事導線にこだわった家の間取り図(3LDK)2階
この会社をもっと知りたくなったら
無料でお届け!まずはカタログ請求

内外観ギャラリー

この会社をもっと知りたくなったら
無料でお届け!まずはカタログ請求

この会社の他の建築実例を見る

この建築実例が気になった方へおすすめ

この建築実例の詳細情報

この建築実例を建てた店舗情報

住所 山口県山口市大内長野825-1
問い合わせ
083-902-7881
  • ※営業時間内の対応となります。

  • ※お問い合わせの際は「SUUMO(スーモ)を見て」とお伝え下さい。

ホームページ この会社のホームページへ

いえとち本舗のコンテンツ一覧

お問い合わせ

カタログをもらう
商品別カタログ
いえとち本舗のカタログ(IETERRACE(イエテラス)コンセプトブック)
IETERRACE(イエテラス)コンセプトブック
問合コード:1540670001
お問い合わせ先
083-902-7881
  • ※営業時間内の対応となります。

  • ※お問い合わせの際は「SUUMO(スーモ)を見て」とお伝え下さい。

  • 山口県山口市大内長野825-1

  • 定休日:水・木曜日

この会社のホームページへ

この会社が気になったら

カタログをもらう
商品別カタログ
いえとち本舗のカタログ(IETERRACE(イエテラス)コンセプトブック)
IETERRACE(イエテラス)コンセプトブック
問合コード:1540670001

関連キーワード

この建築実例のその他の特徴
ページトップへ戻る