ジューケン

ジューケン

LIXIL賞10回受賞を誇るデザイン力で、夢をカタチに
お気に入りに追加する
広島県広島市  Hさん
【街中狭小地23坪】中庭でバーベキューができる×ビルに挟まれたコンパクトな家
ジューケン 【街中狭小地23坪】中庭でバーベキューができる×ビルに挟まれたコンパクトな家の建築実例画像1
  • 本体価格
    2,000万円2,499万円
    69.7万円87.1万円/坪
  • 延床面積
    94.89m2 (28.7坪)
    敷地面積
    78.84m2 (23.8坪)
    家族構成
    夫婦
  • 竣工年月
    2016年9月
    工法
    木造軸組
この会社をもっと知りたくなったら
無料でお届け!まずはカタログ請求

施主Hさんのこだわり

LDKと中庭、浴室が繋がったオープン空間。空を眺め、バーベキューを楽しみ、酒を嗜む

両側をビルに囲まれた、街中の約23坪の奥深い敷地。そこに建っていた実家を建て替えて、明るく豊かに暮らせるように工夫を凝らした家。お酒が好きで、バーベキューが好きで、仲間と騒ぐのが好きで、お風呂も大好きなHさんの「大人のオアシス」的な家だ。家の中心に中庭を配置し、中庭はLDKや浴室と繋がる。バーベキューをしながらリビングのテレビで野球観戦したり、バーベキューの途中でお風呂に入ったり、半身浴をしながら満天の星を眺めたり。休日には友人を招いてパーティをすることも… 続きを読む

両側をビルに囲まれた、街中の約23坪の奥深い敷地。そこに建っていた実家を建て替えて、明るく豊かに暮らせるように工夫を凝らした家。お酒が好きで、バーベキューが好きで、仲間と騒ぐのが好きで、お風呂も大好きなHさんの「大人のオアシス」的な家だ。家の中心に中庭を配置し、中庭はLDKや浴室と繋がる。バーベキューをしながらリビングのテレビで野球観戦したり、バーベキューの途中でお風呂に入ったり、半身浴をしながら満天の星を眺めたり。休日には友人を招いてパーティをすることも多い。「実家は真っ暗だったのに、今はとても明るくて気持ちがいい。どこに居てもお互いの姿が見えるのもいいですね」と大満足。2台分のインナーガレージや畳スペースのロフトも大活躍。夫婦水入らずで、友人と一緒に、「大人のオアシス」で人生を謳歌されている。「必要な空間だけ確保して予算を削ったプランも魅力的でした」とご夫婦は微笑む

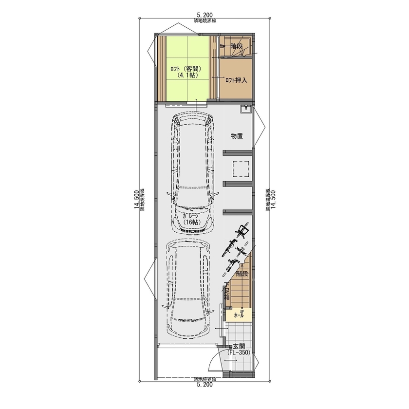
間取り図(1LDK+ロフト)

1階
ジューケン 【街中狭小地23坪】中庭でバーベキューができる×ビルに挟まれたコンパクトな家の間取り図(1LDK+ロフト)1階
2階
ジューケン 【街中狭小地23坪】中庭でバーベキューができる×ビルに挟まれたコンパクトな家の間取り図(1LDK+ロフト)2階
ロフト
ジューケン 【街中狭小地23坪】中庭でバーベキューができる×ビルに挟まれたコンパクトな家の間取り図(1LDK+ロフト)ロフト
この会社をもっと知りたくなったら
無料でお届け!まずはカタログ請求

内外観ギャラリー

この会社をもっと知りたくなったら
無料でお届け!まずはカタログ請求

この建築実例の担当者

ジューケンの担当者画像
代表取締役
吉川富志夫
得意分野
“らしさ”を素敵に表現することに拘った設計

この会社の他の建築実例を見る

この建築実例が気になった方へおすすめ

  • この建築実例のカタログをもらう

    ジューケンのカタログ画像
    総合カタログ
    JUKEN GUIDE BOOK
    ジューケンの家づくりを紹介する冊子とDVDです

この建築実例の詳細情報

この建築実例を建てた店舗情報

住所 広島県広島市中区光南4丁目4-27
問い合わせ
082-246-3741
  • ※営業時間内の対応となります。

  • ※お問い合わせの際は「SUUMO(スーモ)を見て」とお伝え下さい。

ホームページ この会社のホームページへ

ジューケンのコンテンツ一覧

お問い合わせ

カタログをもらう
総合カタログ
ジューケンのカタログ(JUKEN GUIDE BOOK)
JUKEN GUIDE BOOK
問合コード:1225400001
お問い合わせ先
082-246-3741
  • ※営業時間内の対応となります。

  • ※お問い合わせの際は「SUUMO(スーモ)を見て」とお伝え下さい。

  • 広島県広島市中区光南4丁目4-27

  • 定休日:水曜日

この会社のホームページへ

この会社が気になったら

カタログをもらう
総合カタログ
ジューケンのカタログ(JUKEN GUIDE BOOK)
JUKEN GUIDE BOOK
問合コード:1225400001

関連キーワード

ページトップへ戻る