紀州国土建設

紀州国土建設

紀州材・無垢材のぬくもりに満ちた家づくり。3つの地震対策で安心と快適性を提供
お気に入りに追加する
和歌山県和歌山市  Tさん
【和歌山市/2000万円台/平屋】ロフト付きリビングと広い庭で楽しく暮らす家
紀州国土建設 【和歌山市/2000万円台/平屋】ロフト付きリビングと広い庭で楽しく暮らす家の建築実例画像1
  • 本体価格
    2,500万円2,999万円
    86.8万円104.2万円/坪
  • 延床面積
    95.23m2 (28.8坪)
    敷地面積
    331.96m2 (100.4坪)
    家族構成
    夫婦+子供2人
  • 竣工年月
    2020年11月
    工法
    木造軸組
この会社をもっと知りたくなったら
無料でお届け!まずはカタログ請求

施主Tさんのこだわり

20帖のLDKと庭が子供たちの遊び場

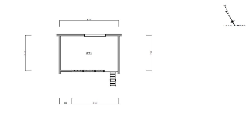
小上がりの畳コーナーの上には、まるで雲の上にいるかのような空のクロスが貼られた7.5帖のロフトがあります。お子さまの成長に合わせて、大容量の収納としても、秘密基地としても大活躍!キッチンからはリビングと、その先に続くウッドデッキと庭まで見渡すことができ、広い場所でのびのびと遊ぶ子どもたちの姿がいつもそばにある安心感があります。小上がりの畳の下に引き出しを作ったり、リビングにロフトを設けたりしたことで、平屋の住まいで心配される"収納場所"のお悩みも解消しまし… 続きを読む

小上がりの畳コーナーの上には、まるで雲の上にいるかのような空のクロスが貼られた7.5帖のロフトがあります。お子さまの成長に合わせて、大容量の収納としても、秘密基地としても大活躍!キッチンからはリビングと、その先に続くウッドデッキと庭まで見渡すことができ、広い場所でのびのびと遊ぶ子どもたちの姿がいつもそばにある安心感があります。小上がりの畳の下に引き出しを作ったり、リビングにロフトを設けたりしたことで、平屋の住まいで心配される"収納場所"のお悩みも解消しました。

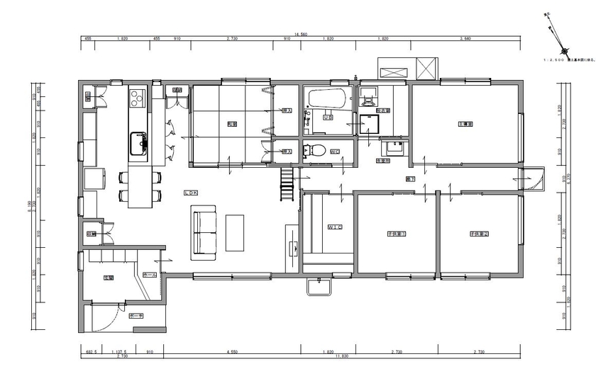
間取り図(4LDK)

1階
紀州国土建設 【和歌山市/2000万円台/平屋】ロフト付きリビングと広い庭で楽しく暮らす家の間取り図(4LDK)1階
ロフト
紀州国土建設 【和歌山市/2000万円台/平屋】ロフト付きリビングと広い庭で楽しく暮らす家の間取り図(4LDK)ロフト
この会社をもっと知りたくなったら
無料でお届け!まずはカタログ請求

内外観ギャラリー

この会社をもっと知りたくなったら
無料でお届け!まずはカタログ請求

この会社の他の建築実例を見る

この建築実例が気になった方へおすすめ

この建築実例の詳細情報

この建築実例を建てた店舗情報

店舗名 なんば展示場
住所 大阪府大阪市浪速区敷津東1-1-1 なんば住宅博内
問い合わせ
06-6645-5669
  • ※営業時間内の対応となります。

  • ※お問い合わせの際は「SUUMO(スーモ)を見て」とお伝え下さい。

ホームページ この会社のホームページへ

紀州国土建設のコンテンツ一覧

お問い合わせ

カタログをもらう
施工実例集
紀州国土建設のカタログ(紀州国土建設施工事例集)
紀州国土建設施工事例集
問合コード:0673420001

この会社が気になったら

カタログをもらう
施工実例集
紀州国土建設のカタログ(紀州国土建設施工事例集)
紀州国土建設施工事例集
問合コード:0673420001

関連キーワード

この建築実例のその他の特徴
ページトップへ戻る