YUTORIE富山

YUTORIE富山

【太陽光パネル6.0kW以上を標準仕様】光熱費ゼロを目指し、富山で建てるZEH住宅
お気に入りに追加する
富山県富山市  Iさん
【1291万円/25坪/ZEH住宅】仲良し母娘が建てた、手の届く価格で叶うナチュラルな住まい
YUTORIE富山 【1291万円/25坪/ZEH住宅】仲良し母娘が建てた、手の届く価格で叶うナチュラルな住まいの建築実例画像1
  • 本体価格
    1,291万円
    52.6万円/坪
  • 延床面積
    81.14m2 (24.5坪)
    敷地面積
    117.90m2 (35.6坪)
    家族構成
    -
  • 竣工年月
    -
    工法
    木造軸組
この会社をもっと知りたくなったら
無料でお届け!まずはカタログ請求

施主Iさんのこだわり

お母様・娘様が暮らす25坪住宅です

温かみのある色で揃え、統一感がありながらも部屋ごとにクロスが違うなどお母様と娘様のお好みが反映された素敵なお家です。

温かみのある色で揃え、統一感がありながらも部屋ごとにクロスが違うなどお母様と娘様のお好みが反映された素敵なお家です。

間取り図

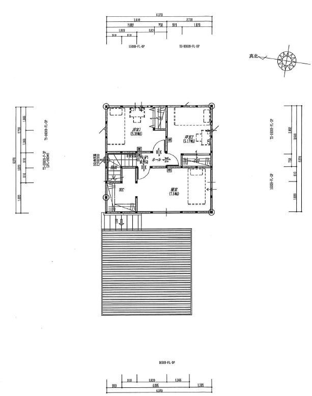
1階
YUTORIE富山 【1291万円/25坪/ZEH住宅】仲良し母娘が建てた、手の届く価格で叶うナチュラルな住まいの間取り図null1階
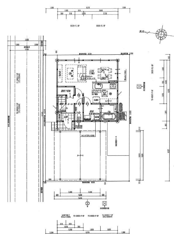
2階
YUTORIE富山 【1291万円/25坪/ZEH住宅】仲良し母娘が建てた、手の届く価格で叶うナチュラルな住まいの間取り図null2階
この会社をもっと知りたくなったら
無料でお届け!まずはカタログ請求

内外観ギャラリー

この会社をもっと知りたくなったら
無料でお届け!まずはカタログ請求

この会社の他の建築実例を見る

この建築実例が気になった方へおすすめ

  • この建築実例のカタログをもらう

    YUTORIE富山のカタログ画像
    総合カタログ
    YUTORIE富山総合カタログ
    YUTORIE富山のこだわりや施工事例の紹介カタログです。
  • イベントに参加する

    YUTORIE富山のイベント画像
    【当日予約可!】建物本体価格978万円~、富山で「ZEH住宅」を建てるなら!太陽光パネル6.0kW以上標準搭載【家づくりまとめて相談会】
    • セミナー・教室
    • 設計・資金相談会
    • 構造見学会
    • 土地相談会
    開催日
    随時
    開催場所
    富山県富山市西中野町2丁目15-30 1階

この建築実例の詳細情報

この建築実例を建てた店舗情報

住所 富山県富山市西中野町2丁目15-30 1階
問い合わせ
0120-018-108
  • ※営業時間内の対応となります。

  • ※お問い合わせの際は「SUUMO(スーモ)を見て」とお伝え下さい。

ホームページ この会社のホームページへ

YUTORIE富山のコンテンツ一覧

お問い合わせ

カタログをもらう
総合カタログ
YUTORIE富山のカタログ(YUTORIE富山総合カタログ)
YUTORIE富山総合カタログ
問合コード:1820600001
イベントに参加する
お問い合わせ先
0120-018-108
  • ※営業時間内の対応となります。

  • ※お問い合わせの際は「SUUMO(スーモ)を見て」とお伝え下さい。

  • 富山県富山市西中野町2丁目15-30 1階

  • 定休日:水曜日

この会社のホームページへ

この会社が気になったら

カタログをもらう
総合カタログ
YUTORIE富山のカタログ(YUTORIE富山総合カタログ)
YUTORIE富山総合カタログ
問合コード:1820600001
イベントに参加する

関連キーワード

この建築実例のその他の特徴
ページトップへ戻る