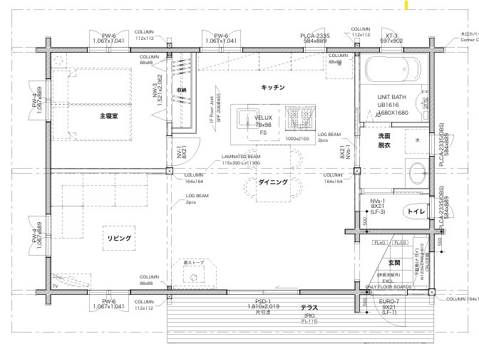
今回の施主様は、シンプルで効率的な生活動線と地震でも安心できる家をお求めになられていました。ログハウスは木を積み重ねることで構造物として一体化するので剛性が生まれ地震に強い家となります。また、間取りは自由設計となりますので、施主様のライフスタイルに合う間取りを何度も打ち合わせを重ねて落ち着いた空間に仕上げることが出来ました。
今回の施主様は、シンプルで効率的な生活動線と地震でも安心できる家をお求めになられていました。ログハウスは木を積み重ねることで構造物として一体化するので剛性が生まれ地震に強い家となります。また、間取りは自由設計となりますので、施主様のライフスタイルに合う間取りを何度も打ち合わせを重ねて落ち着いた空間に仕上げることが出来ました。
毎日が自然に抱かれて寝る贅沢空間
毎日が自然に抱かれて寝る贅沢空間
| 商品名 | - |
| 部材・設備 | - |
| 商品名 | - |
| 部材・設備 | - |
| 延床面積 | 59.40m2 (17.9坪) |
| 敷地面積 | - |
| 工法 | その他(独自認定工法等) |
| 本体価格 | 2,100万円 |
| 竣工年月 | 2016年7月 |
| 住所 | 富山県富山市婦中町蔵島180-1 |
| 問い合わせ | |
| ホームページ | この会社のホームページへ |
※営業時間内の対応となります。
※お問い合わせの際は「SUUMO(スーモ)を見て」とお伝え下さい。
富山県富山市婦中町蔵島180-1
定休日:年中無休