エバーホーム

エバーホーム

こだわりをカタチにする、自然素材でつくる、ちょっとカッコいい家
お気に入りに追加する
富山県射水市  Aさん
【射水市/2000万円台前半/プライベートデッキ】キャンプやバーベキューなど家族でおうち時間を愉しむ家
エバーホーム 【射水市/2000万円台前半/プライベートデッキ】キャンプやバーベキューなど家族でおうち時間を愉しむ家の建築実例画像1
  • 本体価格
    2,000万円2,499万円
    57.3万円71.5万円/坪
  • 延床面積
    115.55m2 (34.9坪)
    敷地面積
    194.82m2 (58.9坪)
    家族構成
    -
  • 竣工年月
    2020年6月
    工法
    木造軸組
この会社をもっと知りたくなったら
無料でお届け!まずはカタログ請求

施主Aさんのこだわり

内と外をゆるやかにつなげ、いつでもアクティビティを愉しめる間取り

キリっとした黒の外壁と温かみのある木目を組み合わせたスタイリッシュな外観が特徴のA邸。建物の前面に窓を配した開放的な造りで、目の前にはプライベートデッキも。「家でも好きなキャンプやバーベキューを愉しめる、アウトドアな暮らしをしたい」という要望をエバーホームが見事に形にした住まいだ。LDKに併設したインナーテラスは、外のテラスとフラットにひと続きになっており、ゆるやかに内と外をつなげることで気軽にアクティビティを愉しめる設計。晴れた日は窓を開けてデッキを楽し… 続きを読む

キリっとした黒の外壁と温かみのある木目を組み合わせたスタイリッシュな外観が特徴のA邸。建物の前面に窓を配した開放的な造りで、目の前にはプライベートデッキも。「家でも好きなキャンプやバーベキューを愉しめる、アウトドアな暮らしをしたい」という要望をエバーホームが見事に形にした住まいだ。LDKに併設したインナーテラスは、外のテラスとフラットにひと続きになっており、ゆるやかに内と外をつなげることで気軽にアクティビティを愉しめる設計。晴れた日は窓を開けてデッキを楽しみ、雨の日はインナーテラスに設置した薪ストーブの火を囲むなど、さまざまな過ごし方ができるのが魅力だ。また、テラスのカウンターとキッチンがつながっていることも大きなポイント。外で料理を愉しんだり、夜は大人だけのアウトドアバーになったりと、いろんなシーンで大活躍。プライベートデッキはフェンスで隣家からの視線を遮っているので、存分に家族のおうち時間を満喫できる。

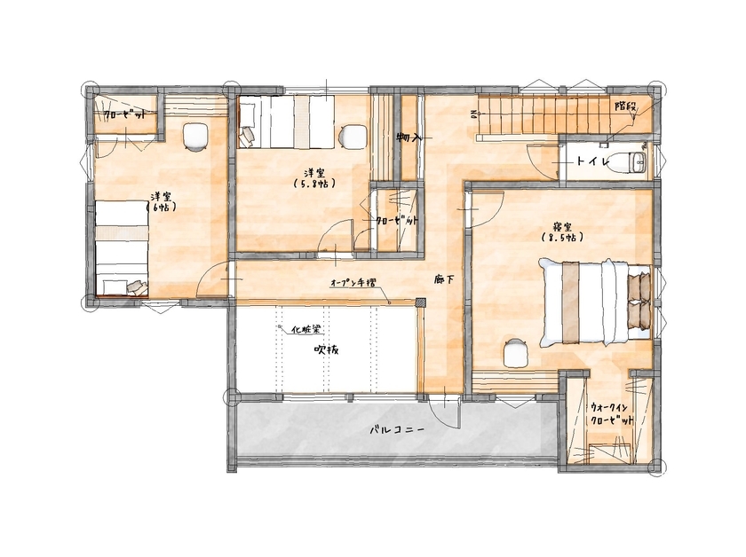
間取り図(3LDK)

1階
エバーホーム 【射水市/2000万円台前半/プライベートデッキ】キャンプやバーベキューなど家族でおうち時間を愉しむ家の間取り図(3LDK)1階
2階
エバーホーム 【射水市/2000万円台前半/プライベートデッキ】キャンプやバーベキューなど家族でおうち時間を愉しむ家の間取り図(3LDK)2階
この会社をもっと知りたくなったら
無料でお届け!まずはカタログ請求

内外観ギャラリー

この会社をもっと知りたくなったら
無料でお届け!まずはカタログ請求

この会社の他の建築実例を見る

この建築実例が気になった方へおすすめ

この建築実例の詳細情報

この建築実例を建てた店舗情報

住所 富山県射水市三ケ3973
問い合わせ
0766-55-3933
  • ※営業時間内の対応となります。

  • ※お問い合わせの際は「SUUMO(スーモ)を見て」とお伝え下さい。

ホームページ この会社のホームページへ

エバーホームのコンテンツ一覧

お問い合わせ

カタログをもらう
総合カタログ
エバーホームのカタログ(エバーホームカタログ)
エバーホームカタログ
問合コード:1696980001
イベントに参加する
お問い合わせ先
0766-55-3933
  • ※営業時間内の対応となります。

  • ※お問い合わせの際は「SUUMO(スーモ)を見て」とお伝え下さい。

  • 富山県射水市三ケ3973

  • 定休日:年末年始

この会社のホームページへ

この会社が気になったら

カタログをもらう
総合カタログ
エバーホームのカタログ(エバーホームカタログ)
エバーホームカタログ
問合コード:1696980001
イベントに参加する

関連キーワード

この建築実例のその他の特徴
ページトップへ戻る