マイホームタナカ

マイホームタナカ

家づくりのあらゆる面で相談できる、良きマイホームアドバイザー
お気に入りに追加する
富山県富山市  Kさん
「愛猫との暮らしをデザインする家づくり」×「家事動線を繋ぐインナーガレージの家」
マイホームタナカ 「愛猫との暮らしをデザインする家づくり」×「家事動線を繋ぐインナーガレージの家」の建築実例画像1
  • 本体価格
    3,700万円3,799万円
    68.6万円70.4万円/坪
  • 延床面積
    178.41m2 (53.9坪)
    敷地面積
    272.71m2 (82.4坪)
    家族構成
    -
  • 竣工年月
    2023年6月
    工法
    木造軸組
この会社をもっと知りたくなったら
無料でお届け!まずはカタログ請求

施主Kさんのこだわり

ご家族お互いそれぞれ思いやりが溢れる住まい

お施主様の強い希望によりインナーガレージと愛猫とともに暮らす家にしてほしいとの事で、ガレージからの家事動線や思い出を収納する中二階収納とシアタールームにもできるセカンドリビングも含めてご提案させていただきました。吹き抜けの4つの窓は南からの日差しを取り入れる事とキャットウォークを通り、猫ちゃんがお外やお星さまを眺める為に設けました。またリビング階段途中にはお子様が同じ空間でお勉強ができるようにスタディーコーナーを、リビングを見下ろせてご家族の気配を感じれる… 続きを読む

お施主様の強い希望によりインナーガレージと愛猫とともに暮らす家にしてほしいとの事で、ガレージからの家事動線や思い出を収納する中二階収納とシアタールームにもできるセカンドリビングも含めてご提案させていただきました。吹き抜けの4つの窓は南からの日差しを取り入れる事とキャットウォークを通り、猫ちゃんがお外やお星さまを眺める為に設けました。またリビング階段途中にはお子様が同じ空間でお勉強ができるようにスタディーコーナーを、リビングを見下ろせてご家族の気配を感じれるような空中ホールが有り、そして少しでも奥様の負担にならない様、家事動線には帰宅からの動線も含めてひとまとめに回遊できるように設計させていただきました。最後に旦那様の希望で弊社コンセプトである大収納と合わせシアタールームを造り、24時間余す事なく楽しめるお家になりました。

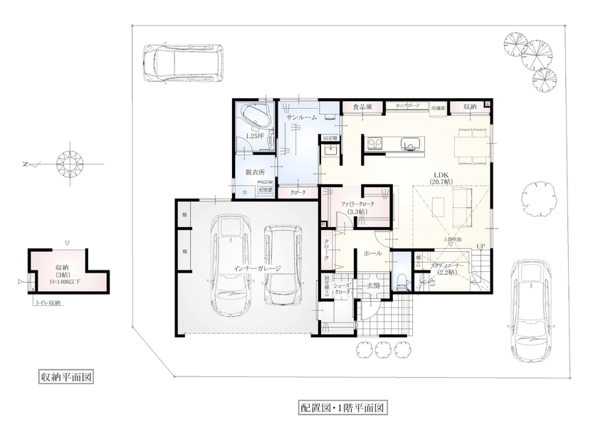
間取り図(3LDK+シアタールーム)

1階
マイホームタナカ 「愛猫との暮らしをデザインする家づくり」×「家事動線を繋ぐインナーガレージの家」の間取り図(3LDK+シアタールーム)1階
2階
マイホームタナカ 「愛猫との暮らしをデザインする家づくり」×「家事動線を繋ぐインナーガレージの家」の間取り図(3LDK+シアタールーム)2階
この会社をもっと知りたくなったら
無料でお届け!まずはカタログ請求

内外観ギャラリー

この会社をもっと知りたくなったら
無料でお届け!まずはカタログ請求

この会社の他の建築実例を見る

この建築実例が気になった方へおすすめ

  • この建築実例のカタログをもらう

    マイホームタナカのカタログ画像
    施工実例集
    WORKS collection
    マイホームタナカがつくる住まいをご紹介します

この建築実例の詳細情報

この建築実例を建てた店舗情報

店舗名 富山支店
住所 富山県富山市新根塚町1-3-1
問い合わせ
076-407-1423
  • ※営業時間内の対応となります。

  • ※お問い合わせの際は「SUUMO(スーモ)を見て」とお伝え下さい。

ホームページ この会社のホームページへ

マイホームタナカのコンテンツ一覧

お問い合わせ

カタログをもらう
施工実例集
マイホームタナカのカタログ(WORKS collection)
WORKS collection
問合コード:1421650001
お問い合わせ先
076-407-1423
  • ※営業時間内の対応となります。

  • ※お問い合わせの際は「SUUMO(スーモ)を見て」とお伝え下さい。

富山支店
  • 富山県富山市新根塚町1-3-1

  • 定休日:水曜日、第4土・日曜日

この会社のホームページへ

この会社が気になったら

カタログをもらう
施工実例集
マイホームタナカのカタログ(WORKS collection)
WORKS collection
問合コード:1421650001

関連キーワード

この建築実例のその他の特徴
ページトップへ戻る