マドリヤアーキテクツ一級建築士事務所

マドリヤアーキテクツ一級建築士事務所

ちょっとカッコいい家をより安く
お気に入りに追加する
神奈川県川崎市  Kさん
【1500万円/間取り図有/がけ地隣接】狭小地・変形地・がけ地の技術集団が作る造作いっぱいのこだわりの家
マドリヤアーキテクツ一級建築士事務所 【1500万円/間取り図有/がけ地隣接】狭小地・変形地・がけ地の技術集団が作る造作いっぱいのこだわりの家の建築実例画像1
  • 本体価格
    1,500万円
    58.3万円/坪
  • 延床面積
    85.09m2 (25.7坪)
    敷地面積
    -
    家族構成
    夫婦+子ども1人
  • 竣工年月
    2016年5月
    工法
    木造軸組
この会社をもっと知りたくなったら
無料でお届け!まずはカタログ請求

施主Kさんのこだわり

【がけ地隣接・1500万円・間取有】狭小地・変形地・がけ地の技術集団だからできた家

土地探しから注文住宅の建築を始めたお施主さま。希望の立地と予算をクリアする土地を見つけたものの、その土地が「がけ地」に隣接しており、その上を道路が通っているため、補強の工事費用が300万円必要と言われてしまったのだ。しかし、どうしても土地を諦めきれず、たまたま見つけたマドリヤアーキテクツに相談。同社設計士が現場に足を運び周辺状況を確認、役所と綿密に相談した結果、80万円の簡易な工事をすれば強度も法律もクリアして家づくりを進められることとなった。設計士は「限… 続きを読む

土地探しから注文住宅の建築を始めたお施主さま。希望の立地と予算をクリアする土地を見つけたものの、その土地が「がけ地」に隣接しており、その上を道路が通っているため、補強の工事費用が300万円必要と言われてしまったのだ。しかし、どうしても土地を諦めきれず、たまたま見つけたマドリヤアーキテクツに相談。同社設計士が現場に足を運び周辺状況を確認、役所と綿密に相談した結果、80万円の簡易な工事をすれば強度も法律もクリアして家づくりを進められることとなった。設計士は「限られたコストや条件の中で、どうしたらお施主様の希望を叶えられるか考えるのが私たちの仕事」と話す。狭小地はもちろん、変形地やがけ地、傾斜地などの難しい土地条件でも、予算内で実現する方法を一緒に考える姿勢に「もう諦めかけていたので、マドリヤさんに出会えて本当に良かったです」と語るお施主さま。横浜・川崎・相模原・町田エリアを中心に施工している同社。困ったことや悩みがある人は毎週開催されている相談会に参加してみては?設計士が解決策を一緒に考えてくれるだろう。

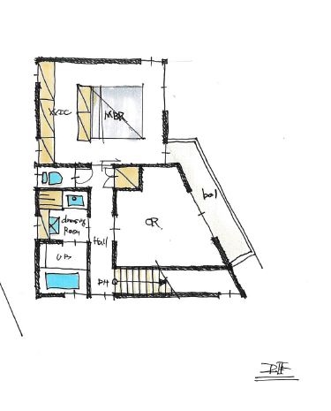
間取り図(2LDK)

1階
マドリヤアーキテクツ一級建築士事務所 【1500万円/間取り図有/がけ地隣接】狭小地・変形地・がけ地の技術集団が作る造作いっぱいのこだわりの家の間取り図(2LDK)1階
2階
マドリヤアーキテクツ一級建築士事務所 【1500万円/間取り図有/がけ地隣接】狭小地・変形地・がけ地の技術集団が作る造作いっぱいのこだわりの家の間取り図(2LDK)2階
この会社をもっと知りたくなったら
無料でお届け!まずはカタログ請求

内外観ギャラリー

この会社をもっと知りたくなったら
無料でお届け!まずはカタログ請求

この会社の他の建築実例を見る

この建築実例が気になった方へおすすめ

  • この建築実例のカタログをもらう

    マドリヤアーキテクツ一級建築士事務所のカタログ画像
    総合カタログ
    マドリヤの家づくりカタログ
    写真&間取り付きの施工例集や標準的な仕様内容を紹介。全42Pの読み応えある一冊です

この建築実例の詳細情報

この建築実例を建てた店舗情報

住所 神奈川県相模原市南区古淵3-1-3 1F-B
問い合わせ
042-707-0910
  • ※営業時間内の対応となります。

  • ※お問い合わせの際は「SUUMO(スーモ)を見て」とお伝え下さい。

ホームページ この会社のホームページへ

マドリヤアーキテクツ一級建築士事務所のコンテンツ一覧

お問い合わせ

カタログをもらう
総合カタログ
マドリヤアーキテクツ一級建築士事務所のカタログ(マドリヤの家づくりカタログ)
マドリヤの家づくりカタログ
問合コード:1591540001
お問い合わせ先
042-707-0910
  • ※営業時間内の対応となります。

  • ※お問い合わせの際は「SUUMO(スーモ)を見て」とお伝え下さい。

  • 神奈川県相模原市南区古淵3-1-3 1F-B

  • 定休日:水曜・日曜

この会社のホームページへ

この会社が気になったら

カタログをもらう
総合カタログ
マドリヤアーキテクツ一級建築士事務所のカタログ(マドリヤの家づくりカタログ)
マドリヤの家づくりカタログ
問合コード:1591540001

関連キーワード

この建築実例のその他の特徴
ページトップへ戻る