ユニバーサルホーム

ユニバーサルホーム

”基礎”で家族をやさしく守る。
お気に入りに追加する
福岡県  Hさん
【大きな吹き抜け/ドッグスペース&ドッグラン/約30畳のLDK】2匹のボーダー・コリーと楽しく暮らす家
ユニバーサルホーム 【大きな吹き抜け/ドッグスペース&ドッグラン/約30畳のLDK】2匹のボーダー・コリーと楽しく暮らす家の建築実例画像1
  • 本体価格
    3,000万円
    55.3万円/坪
  • 延床面積
    179.50m2 (54.2坪)
    敷地面積
    488.99m2 (147.9坪)
    家族構成
    夫婦+子ども1人+犬2匹
  • 竣工年月
    2024年6月
    工法
    木造軸組
この会社をもっと知りたくなったら
無料でお届け!まずはカタログ請求

施主Hさんのこだわり

家族らしい暮らし方を追求。考え抜かれた間取りで、二世帯・店舗付住宅にも対応

眺望の良い敷地に建てられたHさんの住まいは、広い庭にドッグランを備え、2匹のボーダー・コリーくんが元気に駆け回る姿が微笑ましい。家づくりで大切にしたのは、愛犬たちが楽しく快適に暮らせること。住まいのイメージは「リビングのドッグスペース」「30畳の広いLDK」「吹き抜け」など明確だった。「ユニバーサルホームさんを選んだ理由は、ちゃんと話を聞いてくれる誠実な姿勢でした。担当の山下さんはレスポンスも早く、希望を実現することが難しい場合の代替案なども提案してくれて… 続きを読む

眺望の良い敷地に建てられたHさんの住まいは、広い庭にドッグランを備え、2匹のボーダー・コリーくんが元気に駆け回る姿が微笑ましい。家づくりで大切にしたのは、愛犬たちが楽しく快適に暮らせること。住まいのイメージは「リビングのドッグスペース」「30畳の広いLDK」「吹き抜け」など明確だった。「ユニバーサルホームさんを選んだ理由は、ちゃんと話を聞いてくれる誠実な姿勢でした。担当の山下さんはレスポンスも早く、希望を実現することが難しい場合の代替案なども提案してくれて、頼もしかったですね」。完成した住まいでは、リビングから庭のドッグランで遊ぶ犬たちの様子を眺めることができる。LDKには大きな吹き抜けがあり、2階からも犬たちの姿を見守れる設計だ。またメインのLDK、浴室、トイレ、寝室などがある空間に加え、サブのLDK、浴室、トイレ、寝室がある空間が設けられ、仕事部屋、ゲストルーム、二世帯、店舗などさまざまな使い方ができる。他にも「電動シャッター」や「ボッシュ製の大容量食器洗浄乾燥機」、ガス衣類乾燥機「乾太くんデラックスタイプ」など、毎日使うものに優先してコストを配分。実用性重視としたことで、人も犬も快適な暮らしが実現している。暮らし始めて約1年、お子さんも生まれ、家族らしい楽しく賑やかな暮らしが紡がれている。

間取り図(3LDK+リビング+納戸)

1階
ユニバーサルホーム 【大きな吹き抜け/ドッグスペース&ドッグラン/約30畳のLDK】2匹のボーダー・コリーと楽しく暮らす家の間取り図(3LDK+リビング+納戸)1階
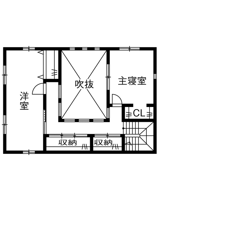
2階
ユニバーサルホーム 【大きな吹き抜け/ドッグスペース&ドッグラン/約30畳のLDK】2匹のボーダー・コリーと楽しく暮らす家の間取り図(3LDK+リビング+納戸)2階
この会社をもっと知りたくなったら
無料でお届け!まずはカタログ請求

内外観ギャラリー

この会社をもっと知りたくなったら
無料でお届け!まずはカタログ請求

この会社の他の建築実例を見る

この建築実例が気になった方へおすすめ

この建築実例の詳細情報

ユニバーサルホームのコンテンツ一覧

お問い合わせ

カタログをもらう
その他
ユニバーサルホームのカタログ(資料請求専用カタログ)
資料請求専用カタログ
問合コード:1053220032
お問い合わせ先
088-698-1650
  • ※営業時間内の対応となります。

  • ※お問い合わせの際は「SUUMO(スーモ)を見て」とお伝え下さい。

徳島北店
  • 徳島県板野郡北島町鯛浜川久保16-1

  • 定休日:水曜日・木曜日

この会社のホームページへ

この会社が気になったら

カタログをもらう
その他
ユニバーサルホームのカタログ(資料請求専用カタログ)
資料請求専用カタログ
問合コード:1053220032

関連キーワード

ページトップへ戻る