1. 不動産・住宅サイト SUUMO > 
  2. 注文住宅・ハウスメーカー > 
  3. 関東 > 
  4. 栃木県 > 
  5. 綿半林業 > 
  6. サイエンスホーム 伊勢崎展示場
綿半林業
綿半林業

「サイエンスホーム」「cotton1/2」伝統的な真壁工法の木の家を現代の性能に進化

お気に入りに
追加する
モデルハウス・イベント来場特典

サイエンスホーム 伊勢崎展示場

木のぬくもりと開放感、夏涼しくて冬暖かい快適空間を体感していただける展示場

テイスト
ナチュラル(自然素材など)、シンプルデザイン
ライフスタイル
収納充実・動線配慮で家事ラクな暮らし、子育て重視の暮らし
サイエンスホーム 伊勢崎展示場1
ひのきの大空間に造作家具、アクセントクロスに小上がり畳スペースなど見どころ満載の展示場だ
サイエンスホーム 伊勢崎展示場2
ひのきの柱や床や梁、オリジナル建具「京ドア・濱ドア」、ダイニングテーブルなどの造作家具をご提案
サイエンスホーム 伊勢崎展示場3
ダイニングの家族とコミュニケーションがとれる間取り。奥のカウンターは子どもの宿題スペースにしても便利
サイエンスホーム 伊勢崎展示場4
キッチンの背面棚は収納プランに合わせて自由にオーダーできるのも注文住宅の魅力だ
サイエンスホーム 伊勢崎展示場5
小上がりの和室は子どものお昼寝スペースやゲストルームにも活用できる。畳下の引き出し収納も便利だ
サイエンスホーム 伊勢崎展示場6
2階のフリースペースにはカウンターを造作。リモートワークはもちろんファミリーのワークスペースとしても
サイエンスホーム 伊勢崎展示場7
小屋裏のロフトスペース。収納はもちろん子どもの遊び場や趣味の部屋としてなど使い方はアイデア次第だ
サイエンスホーム 伊勢崎展示場8
夜になって明かりが灯ると和室はしっとりと落ち着いた空間に
サイエンスホーム 伊勢崎展示場9
照明が無垢材を優しく照らす。昼間とは異なる趣のある居心地の良い居酒屋風ダイニング
サイエンスホーム 伊勢崎展示場10
大容量の無垢材と相性の良いロートアイアンの取っ手がおしゃれな造作の下足入れ
サイエンスホーム 伊勢崎展示場11
玄関面には下屋と格子を付けた。便利かつ防犯にもなり見た目にも美しい
サイエンスホーム 伊勢崎展示場12
白とグレーのガルバリウムのツートンの外観はスタイリッシュな印象

「見て」「触って」「感じる」ことができる展示場で温もり&リラックス空間を体感して

サイエンスホームは「真壁づくりの家×オール国産ひのき」の家を、1000万円台からご提案している。伊勢崎展示場も、柱や梁といった家の構造材が現しになった日本の伝統工法「真壁づくり」をはじめ、一年中快適な高気密・高断熱の「外張り断熱」、軸組×パネルの強固な「ハイブリッド工法」に加えて、無垢の建具や無垢の床、存在感ある大黒柱に開放感いっぱいの吹き抜け空間など、見どころあふれる展示場だ。加えて小上がりの畳空間や棚や収納、ダイニングテーブルにキッチンの背面棚もなども造作した。窓辺につけたカウンターは、子どもの宿題コーナーとして、またカフェスペースとしても便利に使えるコーナーだ。木に囲まれている室内は「見て」「触って」「感じる」ことができる。サイエンスホーム伊勢崎展示場で、『温もり&リラックス空間』をぜひ体感して。

このモデルハウスの見どころ・特長

  • サイエンスホーム 伊勢崎展示場の見どころ1
    柱や梁といった家の構造材が現しになった日本の伝統工法「真壁づくり」

    展示場に一歩入るとひのきの香りにホッと癒やされる。存在感バツグンの大黒柱と規則正しく並んだ梁や手すりが印象的。裸足になってひのきの床の心地よさを体感してほしい

  • サイエンスホーム 伊勢崎展示場の見どころ2
    吹き抜けの開放感を体感して

    大空間の吹き抜けはサイエンスホームの家の特徴のひとつ。外張り断熱によりエアコン一台で夏涼しく冬は暖かい快適な暮らしを実現。天井につけたシーリングファンで家の空気を巡回させている

間取り図

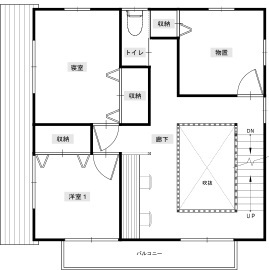
  • 1階
    サイエンスホーム 伊勢崎展示場の間取り図(1階)
  • 2階
    サイエンスホーム 伊勢崎展示場の間取り図(2階)
  • 小屋裏収納
    サイエンスホーム 伊勢崎展示場の間取り図(小屋裏収納)

モデルハウス詳細データ

所在地 群馬県伊勢崎市今泉町1-1238-2
延床面積 122.00m2
間取り 3LDK
部材・設備 ひのき、他
完成年月 2018年
予約締切 見学したい日の2日前まで
電話番号
0120-43-5515
  • ※営業時間内の対応となります。

  • ※お問い合わせの際は「SUUMO(スーモ)を見て」とお伝え下さい。

営業時間 10:00~17:00
定休日 水曜※長期休暇中はお電話にてご確認下さい
展示場名 綿半林業 伊勢崎店
ホームページリンク この会社のホームページへ

2021年07月07日より掲載
問合コード:1309290001001

アクセス

群馬県伊勢崎市今泉町1-1238-2
東武伊勢崎線「新伊勢崎駅」から車で6分

モデルハウス見学予約フォーム

※こちらのフォームに必要事項を入力し『「内容確認」へ進む』ボタンをクリックしてください。

  1. 【1】入力
  2. 【2】確認
  3. 【3】完了

必須は必須項目です。必ず入力ください。

お名前(全角)

必須

氏名

完了

ふりがな
※任意

ご連絡先

E-mailアドレス
(半角英数)

必須

※PCアドレス推奨

※確認のご連絡を差し上げる場合があります。

完了

電話番号
(半角数字)

必須

※確認のご連絡を差し上げる場合があります。

完了

ご希望の連絡時間帯
※任意

見学希望日

必須

定休日: 水曜※長期休暇中はお電話にてご確認下さい

カレンダーから指定
  • 2025年 12月
  • 2026年 1月
  • 2026年 2月
  • 2026年 3月
  • 2026年 4月
  • 2026年 5月
  • 2026年 6月
  • 2026年 7月
  • 2026年 8月
  • 2026年 9月
  • 2026年 10月
  • 2026年 11月
30 1 2 3 4 5 6
7 8 9 10 11 12 13
14 15 16 17 18 19 20
21 22 23 24 25 26 27
28 29 30 31 1 2 3
28 29 30 31 1 2 3
4 5 6 7 8 9 10
11 12 13 14 15 16 17
18 19 20 21 22 23 24
25 26 27 28 29 30 31
1 2 3 4 5 6 7
8 9 10 11 12 13 14
15 16 17 18 19 20 21
22 23 24 25 26 27 28
1 2 3 4 5 6 7
8 9 10 11 12 13 14
15 16 17 18 19 20 21
22 23 24 25 26 27 28
29 30 31 1 2 3 4
29 30 31 1 2 3 4
5 6 7 8 9 10 11
12 13 14 15 16 17 18
19 20 21 22 23 24 25
26 27 28 29 30 1 2
26 27 28 29 30 1 2
3 4 5 6 7 8 9
10 11 12 13 14 15 16
17 18 19 20 21 22 23
24 25 26 27 28 29 30
31 1 2 3 4 5 6
31 1 2 3 4 5 6
7 8 9 10 11 12 13
14 15 16 17 18 19 20
21 22 23 24 25 26 27
28 29 30 1 2 3 4
28 29 30 1 2 3 4
5 6 7 8 9 10 11
12 13 14 15 16 17 18
19 20 21 22 23 24 25
26 27 28 29 30 31 1
26 27 28 29 30 31 1
2 3 4 5 6 7 8
9 10 11 12 13 14 15
16 17 18 19 20 21 22
23 24 25 26 27 28 29
30 31 1 2 3 4 5
30 31 1 2 3 4 5
6 7 8 9 10 11 12
13 14 15 16 17 18 19
20 21 22 23 24 25 26
27 28 29 30 1 2 3
27 28 29 30 1 2 3
4 5 6 7 8 9 10
11 12 13 14 15 16 17
18 19 20 21 22 23 24
25 26 27 28 29 30 31
1 2 3 4 5 6 7
8 9 10 11 12 13 14
15 16 17 18 19 20 21
22 23 24 25 26 27 28
29 30 1 2 3 4 5

完了

希望時間帯

必須

営業時間: 10:00~17:00

完了

見学間近の予約のため、ご質問は直接お問い合わせ下さい。 お問い合わせ先:0120-43-5515
※お問い合わせの際は「SUUMO(スーモ)注文住宅を見た」とお伝えになるとスムーズです。

SUUMOお役立ちメルマガ・アンケート
お役立ち情報の送付希望

※配信を希望しない場合は、「希望しない」にチェックを入れてください。

【ご注意】
1.ご予約いただきました内容に関して、施工会社の担当者よりご連絡させて頂く場合がございます。
集合場所、時間等に関してご質問がある場合は、恐れ入りますが直接お問い合わせください。
2.キャンセルや日程の変更があった場合、直接店舗へご連絡ください。
3.定休日・営業時間外のご予約は原則お受けできかねますので、予めご了承ください。

質問や建築のご予定など

※以下は必須の入力項目ではありませんが、ご入力いただくと今後の流れがスムーズに行えます。

現在のご住所

郵便番号
(半角数字)

ご住所
(全角)

※番地・建物名まで忘れずご記入ください

建築予定時期
建築予算(土地予算除く)
建築予定地

建築内容
年齢  

現在の状況






その他、ご要望があればご記入ください。

【ご注意】
1.ご予約いただきました内容に関して、施工会社の担当者よりご連絡させて頂く場合がございます。
集合場所、時間等に関してご質問がある場合は、恐れ入りますが直接お問い合わせください。
2.キャンセルや日程の変更があった場合、直接店舗へご連絡ください。
3.定休日・営業時間外のご予約は原則お受けできかねますので、予めご了承ください。
このモデルハウスと同じ所在地からハウスメーカー・工務店を探す
このモデルハウスと同じ所在地から展示場を探す

【モデルハウスの本体価格について】
掲載中のモデルハウスの中には一部参考本体価格の記載があるものがございます。価格は全て消費税相当金額を含みます。各社にお問い合わせください。また、モデルハウス情報の参考本体価格は施工当時のもので、現在の価格とは異なる場合があります。詳細は各社にお問い合わせください

お問い合わせ
  • お問い合わせ先
    0120-43-5515
    • ※営業時間内の対応となります。

    • ※お問い合わせの際は「SUUMO(スーモ)を見て」とお伝え下さい。

    サイエンスホーム 伊勢崎展示場
    群馬県伊勢崎市今泉町1-1238-2
    [定休日]水曜※長期休暇中はお電話にてご確認下さい
カタログ一覧

綿半林業のカタログ一覧です。無料で請求できます。1社で請求できるカタログ数は3件までです。

ページトップへ戻る