足利市を中心に、一棟一棟丁寧な家づくりを心がける地元密着の齋藤住建。今回紹介するのはKさんのお住まい。外観は落ち着いた色合いで見る角度によって表情が変わる平屋の佇まい。玄関アプローチは、大きな屋根の下に車を停めるガレージとしても使用できるので、雨の日でもストレスなく出入りができ重い荷物もすぐ運べる。また、屋根には太陽光発電パネルを搭載し、自然エネルギーである太陽の光を、直接電気に変えるシステムを活用している。室内は、勾配天井で開放感を演出した見晴らしの良い… 続きを読む
足利市を中心に、一棟一棟丁寧な家づくりを心がける地元密着の齋藤住建。今回紹介するのはKさんのお住まい。外観は落ち着いた色合いで見る角度によって表情が変わる平屋の佇まい。玄関アプローチは、大きな屋根の下に車を停めるガレージとしても使用できるので、雨の日でもストレスなく出入りができ重い荷物もすぐ運べる。また、屋根には太陽光発電パネルを搭載し、自然エネルギーである太陽の光を、直接電気に変えるシステムを活用している。室内は、勾配天井で開放感を演出した見晴らしの良いLDKとなっており、壁や床は白を基調とし爽やかで、見せ梁が空間のアクセントとなり高級感漂うデザインになっている。人やペットが健康的に暮らせる地中熱を利用することによって、確かな快適性も形成しており「エアコンを使用する機会も減って家計的にもメリットがあります」と奥様も納得の様子。また、室内から続くデッキスペースは、長閑な風景が広がる中で食事をすることができ、外でもペットと共に家族団らんの時間を過ごすことが出来る。Kさんにお家づくりの感想を聞くと、「設計では女性目線での設計を所々に提案頂いて、その点もすごくありがたかったなと感じます」と話している。デザインも住み心地も大満足の住まいが完成した。
清潔感あふれるトイレルームは手洗い台を設け、下の部分が収納スペースになってるのでキレイに保つことが出来る
清潔感あふれるトイレルームは手洗い台を設け、下の部分が収納スペースになってるのでキレイに保つことが出来る
室内から続くデッキスペースは、開放感なロケーションの中で食事ができる
室内から続くデッキスペースは、開放感なロケーションの中で食事ができる
| 商品名 | 地熱の家 |
| 部材・設備 | ZEH、地中熱利用換気システム、太陽光発電、ウッドデッキ、造作洗面台、照明器具、エコキュート、エアコン |
| 商品名 | 地熱の家 |
| 部材・設備 | ZEH、地中熱利用換気システム、太陽光発電、ウッドデッキ、造作洗面台、照明器具、エコキュート、エアコン |
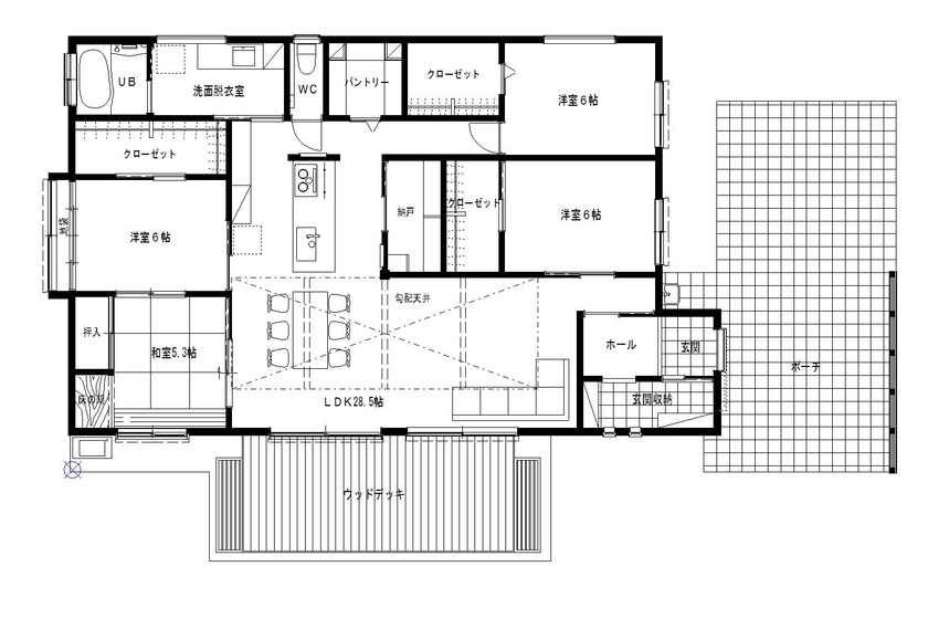
| 延床面積 | 129.18m2 (39.0坪) |
| 敷地面積 | 300.00m2 (90.7坪) |
| 工法 | 木造軸組 |
| 本体価格 | 2,600万円 |
| 竣工年月 | 2022年9月 |
| 住所 | 栃木県足利市百頭町2017-56 |
| 問い合わせ | |
| ホームページ | この会社のホームページへ |
※営業時間内の対応となります。
※お問い合わせの際は「SUUMO(スーモ)を見て」とお伝え下さい。
栃木県足利市百頭町2017-56
定休日:年末年始・GW・お盆休み