フジコーポレーション

フジコーポレーション

ミリ単位で計算されたデザインで美しいカタチを創造
お気に入りに追加する
木と光が紡ぐ、心地よい時間。寛ぎの時間を愉しむ平屋の家
フジコーポレーション 木と光が紡ぐ、心地よい時間。寛ぎの時間を愉しむ平屋の家の建築実例画像1
  • 本体価格
    2,000万円2,499万円
    63.4万円79.2万円/坪
  • 延床面積
    104.40m2 (31.5坪)
    敷地面積
    498.50m2 (150.7坪)
    家族構成
    夫婦+子ども2人
  • 竣工年月
    2022年3月
    工法
    木造軸組(fujico style)
この会社をもっと知りたくなったら
無料でお届け!まずはカタログ請求

施主のこだわり

無垢材のバランスやデザイン性の高さ

化粧梁を美しく見せるデザインや、大きな窓を設けてたっぷり光を取り入れる設計をお願いしました。特に無垢材は色んな種類の木をバランスよく使ってくれたので、格好良さ、香り、質感を楽しめています。リビングの見える勾配天井は私たちの想像を裏切る美しさでした。

化粧梁を美しく見せるデザインや、大きな窓を設けてたっぷり光を取り入れる設計をお願いしました。特に無垢材は色んな種類の木をバランスよく使ってくれたので、格好良さ、香り、質感を楽しめています。リビングの見える勾配天井は私たちの想像を裏切る美しさでした。

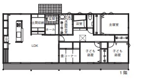
間取り図(3LDK+RF+SC)

1階
フジコーポレーション 木と光が紡ぐ、心地よい時間。寛ぎの時間を愉しむ平屋の家の間取り図(3LDK+RF+SC)1階
この会社をもっと知りたくなったら
無料でお届け!まずはカタログ請求

内外観ギャラリー

この会社をもっと知りたくなったら
無料でお届け!まずはカタログ請求

この建築実例の担当者

フジコーポレーションの担当者画像
代表取締役
須藤勝德
得意分野
目視率にこだわった寛ぎを与える意匠建築・構造計算

この会社の他の建築実例を見る

この建築実例が気になった方へおすすめ

この建築実例の詳細情報

この建築実例を建てた店舗情報

住所 栃木県栃木市岩舟町静和10-1
問い合わせ
0282-55-7090
  • ※営業時間内の対応となります。

  • ※お問い合わせの際は「SUUMO(スーモ)を見て」とお伝え下さい。

ホームページ この会社のホームページへ

フジコーポレーションのコンテンツ一覧

お問い合わせ

カタログをもらう
総合カタログ
フジコーポレーションのカタログ(Fujico Style)
Fujico Style
問合コード:1313870001
イベントに参加する
お問い合わせ先
0282-55-7090
  • ※営業時間内の対応となります。

  • ※お問い合わせの際は「SUUMO(スーモ)を見て」とお伝え下さい。

  • 栃木県栃木市岩舟町静和10-1

  • 定休日:-

この会社のホームページへ

この会社が気になったら

カタログをもらう
総合カタログ
フジコーポレーションのカタログ(Fujico Style)
Fujico Style
問合コード:1313870001
イベントに参加する

関連キーワード

この建築実例のその他の特徴
ページトップへ戻る