ノーブルホーム

「茨城・栃木・千葉で暮らす家族に幸せな毎日を」 地域と歩み、住まいと街と人を育む
お気に入りに追加する
ノーブルホームオリジナルタイル使用で外壁メンテナンスが楽に!上品でスタイリッシュな2階建て
ノーブルホーム ノーブルホームオリジナルタイル使用で外壁メンテナンスが楽に!上品でスタイリッシュな2階建ての建築実例画像1
  • 本体価格
    -
  • 延床面積
    131.51m2 (39.7坪)
    敷地面積
    -
    家族構成
    4人家族
  • 竣工年月
    -
    工法
    木造軸組(在来工法)
この会社をもっと知りたくなったら
無料でお届け!まずはカタログ請求

施主Oさんのこだわり

お手入れ楽々♪NHオリジナルタイルを使った外壁でスタイリッシュな2階建て外観に

お子さんの進学などのタイミングを見据えて、数年前から家づくりの計画を立てていたOさん。当時のOさん宅から展示場までは遠方だったためリモートでの相談が主となったが、内覧した建売住宅に惹かれ同社で建てることを決めたという。「色々無理を言ったりもしましたが、その都度良い案を出してくれました。知識が豊富で安心して相談できました」と、打ち合わせ当時のことを語るOさん。そんなOさんが家づくりで最もこだわったポイントは、防犯・外壁タイル・キッチン設備の3つ。まずは、電動… 続きを読む

お子さんの進学などのタイミングを見据えて、数年前から家づくりの計画を立てていたOさん。当時のOさん宅から展示場までは遠方だったためリモートでの相談が主となったが、内覧した建売住宅に惹かれ同社で建てることを決めたという。「色々無理を言ったりもしましたが、その都度良い案を出してくれました。知識が豊富で安心して相談できました」と、打ち合わせ当時のことを語るOさん。そんなOさんが家づくりで最もこだわったポイントは、防犯・外壁タイル・キッチン設備の3つ。まずは、電動シャッターを設置して防犯対策。次に、外壁には、「メンテナンスがほぼいらなくてデザインが素敵」という理由から、ノーブルホームオリジナルタイルを採用。キッチンは収納・機能共に充実したシステムキッチンを選択。キッチンからの水回り動線を一直線にすることで家事ラクも重視している。長く快適に住み続けることを想定した、居心地の良さと暮らしやすさの両方を叶える、充実の住まいが完成した。

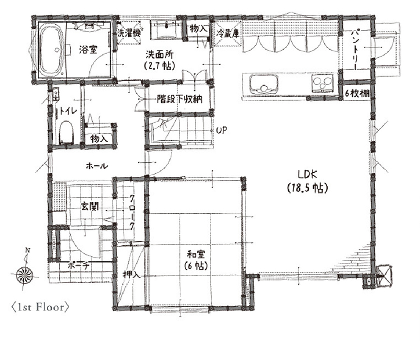
間取り図(4LDK)

1階
ノーブルホーム ノーブルホームオリジナルタイル使用で外壁メンテナンスが楽に!上品でスタイリッシュな2階建ての間取り図(4LDK)1階
2階
ノーブルホーム ノーブルホームオリジナルタイル使用で外壁メンテナンスが楽に!上品でスタイリッシュな2階建ての間取り図(4LDK)2階
この会社をもっと知りたくなったら
無料でお届け!まずはカタログ請求

内外観ギャラリー

この会社をもっと知りたくなったら
無料でお届け!まずはカタログ請求

この会社の他の建築実例を見る

この建築実例が気になった方へおすすめ

この建築実例の詳細情報

この建築実例を建てた店舗情報

住所 茨城県水戸市笠原町1196-15
問い合わせ
029-305-5771
  • ※営業時間内の対応となります。

  • ※お問い合わせの際は「SUUMO(スーモ)を見て」とお伝え下さい。

ホームページ この会社のホームページへ

ノーブルホームのコンテンツ一覧

お問い合わせ

カタログをもらう
イベントに参加する
お問い合わせ先
029-305-5771
  • ※営業時間内の対応となります。

  • ※お問い合わせの際は「SUUMO(スーモ)を見て」とお伝え下さい。

  • 茨城県水戸市笠原町1196-15

  • 定休日:-

この会社のホームページへ
カタログ一覧
※1社で請求できるカタログは3冊までです。

この会社が気になったら

カタログをもらう
イベントに参加する

関連キーワード

この建築実例のその他の特徴
ページトップへ戻る