Kocoro house

Kocoro house

土地探し、設計・施工、外構・インテリアの提案までワンストップ。自社一貫体制が強み
お気に入りに追加する
滋賀県栗東市  Kさん
【50坪以上の土地|栗東市|間取り図有】リビングスキップフロアと屋根付きアウトドアバルコニーのある家
Kocoro house 【50坪以上の土地|栗東市|間取り図有】リビングスキップフロアと屋根付きアウトドアバルコニーのある家の建築実例画像1
  • 本体価格
    3,500万円3,999万円
    58.6万円66.9万円/坪
  • 延床面積
    197.78m2 (59.8坪)
    敷地面積
    299.66m2 (90.6坪)
    家族構成
    夫婦+子ども4人
  • 竣工年月
    2020年9月
    工法
    木造軸組
この会社をもっと知りたくなったら
無料でお届け!まずはカタログ請求

施主Kさんのこだわり

夏の直射日光や雨を気にせずに使えるアウトドアバルコニー。2階の広々空間が圧巻!

子ども4人を含めて家族6人で暮らすKさんの住まいは、家族が集まれる工夫がいっぱい。インナーガレージから屋根づたいに玄関があり、ホールにはたっぷりの階段下ウォークスルークローゼットを設置。家族が混み合わないように考えられたオーダーの幅広階段を通ってリビング・ダイニングにたどり着くと、真正面にはバルコニーの先にある外の景色が見える。リビング・ダイニングと屋根付きのアウトドアバルコニーはつながっており、実際の広さ以上の開放感と奥行きを感じられる。バルコニーでは外… 続きを読む

子ども4人を含めて家族6人で暮らすKさんの住まいは、家族が集まれる工夫がいっぱい。インナーガレージから屋根づたいに玄関があり、ホールにはたっぷりの階段下ウォークスルークローゼットを設置。家族が混み合わないように考えられたオーダーの幅広階段を通ってリビング・ダイニングにたどり着くと、真正面にはバルコニーの先にある外の景色が見える。リビング・ダイニングと屋根付きのアウトドアバルコニーはつながっており、実際の広さ以上の開放感と奥行きを感じられる。バルコニーでは外の景色を眺めながらBBQをしたり、おうちキャンプをしたりと楽しい計画を立てることができ、屋根付きだから季節や天気を問わずデッドスペースになりにくい。またリビング・ダイニングから半フロア下がったスペースにキッチンや水回りを設けてあるのも、視覚的な開放感につながる工夫。6人家族でも手狭な感じがなく、ゆったりとしたくつろぎ感を得られる。半フロア下げたキッチンの上階を活用してロフトを設置しており、子どもたちの小さな頃の思い出の品や、普段は使わない季節用品、アウトドアグッズなどをしまっておける。「家族のちょうどいい暮らし」を低コストで叶えてくれるKocoro house。K邸は、同じ敷地の広さでも立体的な構造で設計すれば生活スペースが広がり、奥行きも演出できるという好例だ。

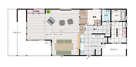
間取り図(3LDK+ロフト)

1階
Kocoro house 【50坪以上の土地|栗東市|間取り図有】リビングスキップフロアと屋根付きアウトドアバルコニーのある家の間取り図(3LDK+ロフト)1階
2階
Kocoro house 【50坪以上の土地|栗東市|間取り図有】リビングスキップフロアと屋根付きアウトドアバルコニーのある家の間取り図(3LDK+ロフト)2階
ロフト
Kocoro house 【50坪以上の土地|栗東市|間取り図有】リビングスキップフロアと屋根付きアウトドアバルコニーのある家の間取り図(3LDK+ロフト)ロフト
この会社をもっと知りたくなったら
無料でお届け!まずはカタログ請求

内外観ギャラリー

この会社をもっと知りたくなったら
無料でお届け!まずはカタログ請求

この会社の他の建築実例を見る

この建築実例が気になった方へおすすめ

この建築実例の詳細情報

この建築実例を建てた店舗情報

店舗名 Purism栗東店
住所 滋賀県栗東市安養寺2丁目4-20
問い合わせ
077-554-2251
  • ※営業時間内の対応となります。

  • ※お問い合わせの際は「SUUMO(スーモ)を見て」とお伝え下さい。

ホームページ この会社のホームページへ

Kocoro houseのコンテンツ一覧

お問い合わせ

カタログをもらう
総合カタログ
Kocoro houseのカタログ(Kocoro house)
Kocoro house
問合コード:1864940001
お問い合わせ先
077-554-2251
  • ※営業時間内の対応となります。

  • ※お問い合わせの際は「SUUMO(スーモ)を見て」とお伝え下さい。

Purism栗東店
  • 滋賀県栗東市安養寺2丁目4-20

  • 定休日:水曜日・日曜日・年末年始

この会社のホームページへ

この会社が気になったら

カタログをもらう
総合カタログ
Kocoro houseのカタログ(Kocoro house)
Kocoro house
問合コード:1864940001

関連キーワード

この建築実例のその他の特徴
ベーシック  |  洋風モダン  |  モノトーン  |  スタイリッシュ  |  洋風  |  おしゃれ  |  開放感  |  重厚感  |  落ち着き  |  かっこいい  |  クール  |  窓が多い
ページトップへ戻る