ホビースタイル 角屋工業

ホビースタイル 角屋工業

『他にはない』を叶えたいあなたへ。 大人の遊びゴコロを刺激する家創り
お気に入りに追加する
群馬県  Aさん
たくさんの夢と理想をカタチに 美しい景観を生かした可愛い家
ホビースタイル 角屋工業 たくさんの夢と理想をカタチに  美しい景観を生かした可愛い家の建築実例画像1
  • 本体価格
    3,500万円3,999万円
    79.9万円91.3万円/坪
  • 延床面積
    144.90m2 (43.8坪)
    敷地面積
    599.00m2 (181.1坪)
    家族構成
    夫婦+子ども1人
  • 竣工年月
    2023年12月
    工法
    木造軸組
この会社をもっと知りたくなったら
無料でお届け!まずはカタログ請求

施主Aさんのこだわり

たくさんの夢と理想をカタチに 美しい景観を生かした可愛い家

「漠然としたイメージで始まった家づくりも、カタチになればなるほど気になるところが出てきましたね。でも、角屋工業さんのスタッフの皆さんが、丁寧に対応してくれたおがげで最終的には要望や理想など数多くの注文をしましたが、全部叶えてくれて、間取りも住み心地も大満足な住まいになりました。実邸見学や事例の写真を見ると、住む人の趣味が全面に出ている家がたくさん。自由度が高く、理想を叶えてもらえるワクワク感があったのが、角屋さんにお願いした最大の決め手ですね。見晴らしのい… 続きを読む

「漠然としたイメージで始まった家づくりも、カタチになればなるほど気になるところが出てきましたね。でも、角屋工業さんのスタッフの皆さんが、丁寧に対応してくれたおがげで最終的には要望や理想など数多くの注文をしましたが、全部叶えてくれて、間取りも住み心地も大満足な住まいになりました。実邸見学や事例の写真を見ると、住む人の趣味が全面に出ている家がたくさん。自由度が高く、理想を叶えてもらえるワクワク感があったのが、角屋さんにお願いした最大の決め手ですね。見晴らしのいい土地も紹介してもらい、重ねて満足度が上がりました」と笑顔で語るAさん。家族が日々笑顔で過ごせる住まいで、日々を健やかに過ごしている

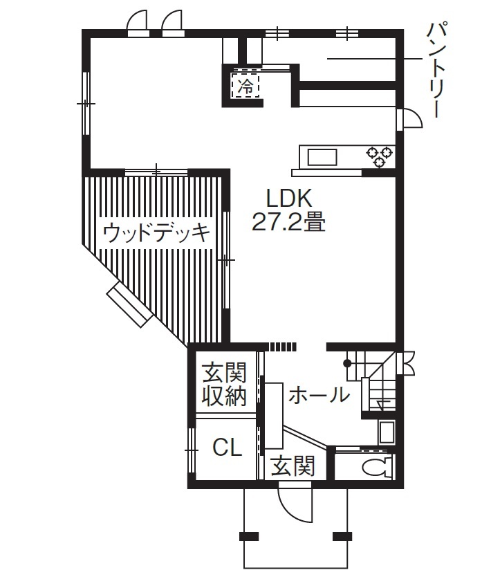
間取り図(3LDK)

1階
ホビースタイル 角屋工業 たくさんの夢と理想をカタチに  美しい景観を生かした可愛い家の間取り図(3LDK)1階
2階
ホビースタイル 角屋工業 たくさんの夢と理想をカタチに  美しい景観を生かした可愛い家の間取り図(3LDK)2階
この会社をもっと知りたくなったら
無料でお届け!まずはカタログ請求

内外観ギャラリー

この会社をもっと知りたくなったら
無料でお届け!まずはカタログ請求

この会社の他の建築実例を見る

この建築実例が気になった方へおすすめ

この建築実例の詳細情報

この建築実例を建てた店舗情報

住所 群馬県太田市東矢島町1276-1
問い合わせ
0276-60-3101
  • ※営業時間内の対応となります。

  • ※お問い合わせの際は「SUUMO(スーモ)を見て」とお伝え下さい。

ホームページ この会社のホームページへ

ホビースタイル 角屋工業のコンテンツ一覧

お問い合わせ

カタログをもらう
施工実例集
ホビースタイル 角屋工業のカタログ(ホビースタイル 施工事例集)
ホビースタイル 施工事例集
問合コード:1290180001
お問い合わせ先
0276-60-3101
  • ※営業時間内の対応となります。

  • ※お問い合わせの際は「SUUMO(スーモ)を見て」とお伝え下さい。

  • 群馬県太田市東矢島町1276-1

  • 定休日:-

この会社のホームページへ

この会社が気になったら

カタログをもらう
施工実例集
ホビースタイル 角屋工業のカタログ(ホビースタイル 施工事例集)
ホビースタイル 施工事例集
問合コード:1290180001

関連キーワード

この建築実例のその他の特徴
ページトップへ戻る