NJ HOME/なかむら住宅

NJ HOME/なかむら住宅

佐賀で「理想の暮らし」を叶えるマイホームを。施主の想いに向き合う丁寧な家づくり
お気に入りに追加する
佐賀県神埼郡  Mさん
【平屋/中庭/北欧】暮らしやすい回遊動線の住まい
NJ HOME/なかむら住宅 【平屋/中庭/北欧】暮らしやすい回遊動線の住まいの建築実例画像1
  • 本体価格
    1,600万円1,699万円
    58.7万円62.3万円/坪
  • 延床面積
    90.26m2 (27.3坪)
    敷地面積
    -
    家族構成
    夫婦
  • 竣工年月
    -
    工法
    2×4、2×6
この会社をもっと知りたくなったら
無料でお届け!まずはカタログ請求

施主Mさんのこだわり

お家にいながら自然を感じられる間取り

ZERO-CUBEシリーズのKAI ACT1の平屋をベースにしたM様邸。来客が多いためリビングは明るく広さが欲しいという希望を叶えたのが、中庭のあるKAIの間取り。中庭から入る光が家全体へと広がる。

ZERO-CUBEシリーズのKAI ACT1の平屋をベースにしたM様邸。来客が多いためリビングは明るく広さが欲しいという希望を叶えたのが、中庭のあるKAIの間取り。中庭から入る光が家全体へと広がる。

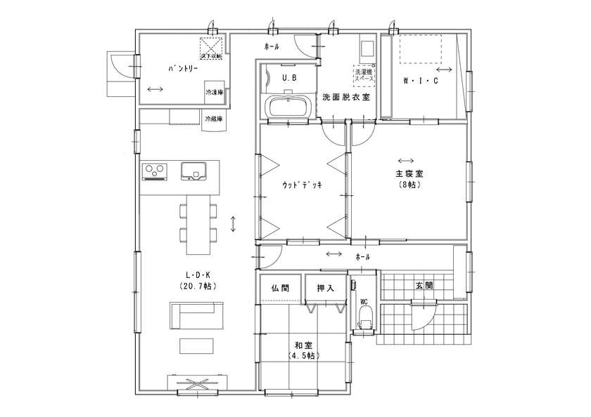
間取り図(2LDK+中庭+WIC)

1階
NJ HOME/なかむら住宅 【平屋/中庭/北欧】暮らしやすい回遊動線の住まいの間取り図(2LDK+中庭+WIC)1階
この会社をもっと知りたくなったら
無料でお届け!まずはカタログ請求

内外観ギャラリー

この会社をもっと知りたくなったら
無料でお届け!まずはカタログ請求

この会社の他の建築実例を見る

この建築実例が気になった方へおすすめ

  • この建築実例のカタログをもらう

    NJ HOME/なかむら住宅のカタログ画像
    施工実例集
    NJ オリジナルカタログ
    なかむら住宅の手がけた実例集です。
  • イベントに参加する

    NJ HOME/なかむら住宅のイベント画像
    【期間限定公開】佐賀市諸富町モデルハウス★3LDKスマートホーム搭載住宅
    • モデルハウス見学会
    開催日
    2025/8/27(水)~随時
    開催場所
    佐賀県佐賀市諸富町大字諸富津28-4

この建築実例の詳細情報

この建築実例を建てた店舗情報

住所 佐賀県佐賀市兵庫北6-1-10
問い合わせ
0120-210-308
  • ※営業時間内の対応となります。

  • ※お問い合わせの際は「SUUMO(スーモ)を見て」とお伝え下さい。

ホームページ この会社のホームページへ

NJ HOME/なかむら住宅のコンテンツ一覧

お問い合わせ

カタログをもらう
施工実例集
NJ HOME/なかむら住宅のカタログ(NJ オリジナルカタログ)
NJ オリジナルカタログ
問合コード:1835350001
イベントに参加する
お問い合わせ先
0120-210-308
  • ※営業時間内の対応となります。

  • ※お問い合わせの際は「SUUMO(スーモ)を見て」とお伝え下さい。

  • 佐賀県佐賀市兵庫北6-1-10

  • 定休日:水曜・祝日

この会社のホームページへ

この会社が気になったら

カタログをもらう
施工実例集
NJ HOME/なかむら住宅のカタログ(NJ オリジナルカタログ)
NJ オリジナルカタログ
問合コード:1835350001
イベントに参加する

関連キーワード

この建築実例のその他の特徴
ページトップへ戻る