遊友建築工房

遊友建築工房

プロ集団と一緒につくる「自分らしいデザイン×心地よい自然素材の家」
お気に入りに追加する
兵庫県西宮市  Mさん
【西宮市/2000万円台/20坪台/間取り図有】クールなデザインの3階建て。室内へ入れば驚きの広さ、明るさ!
遊友建築工房 【西宮市/2000万円台/20坪台/間取り図有】クールなデザインの3階建て。室内へ入れば驚きの広さ、明るさ!の建築実例画像1
  • 本体価格
    2,000万円2,499万円
    52.1万円65.1万円/坪
  • 延床面積
    126.99m2 (38.4坪)
    敷地面積
    81.41m2 (24.6坪)
    家族構成
    -
  • 竣工年月
    2020年1月
    工法
    木造軸組
この会社をもっと知りたくなったら
無料でお届け!まずはカタログ請求

施主Mさんのこだわり

広い土間空間やアウトドアリビングも。細かく区切らず、ゆったりと過ごせる設計

約24坪の敷地に建てられた3階建てのMさん邸。狭小地を快適に暮らす設計の工夫が満載だ。まず、玄関ホールが驚きの広さ。土間とホールが一体化し、ロードバイクを2台飾りながら収納している。土間からホールにかけて、大容量の扉付き収納も設けた。そして、1階から3階まで吹抜けになったストリップ階段は、隣接する居住スペースへと光を通す。2階のLDKは階段側にガラス張りの壁を設けた。また、3階の寝室は扉の開閉でホールとひと続きの空間としても使えるようになっている。3階の階… 続きを読む

約24坪の敷地に建てられた3階建てのMさん邸。狭小地を快適に暮らす設計の工夫が満載だ。まず、玄関ホールが驚きの広さ。土間とホールが一体化し、ロードバイクを2台飾りながら収納している。土間からホールにかけて、大容量の扉付き収納も設けた。そして、1階から3階まで吹抜けになったストリップ階段は、隣接する居住スペースへと光を通す。2階のLDKは階段側にガラス張りの壁を設けた。また、3階の寝室は扉の開閉でホールとひと続きの空間としても使えるようになっている。3階の階段突き当りには、広いインナーバルコニーを設け、アウトドアリビングに。光を取り入れながら、細かく区切らずゆとりのある空間づかいにすることで、気持ちにもゆとりが生まれる住まいだ(設計:一級建築士/松浦太一氏)。

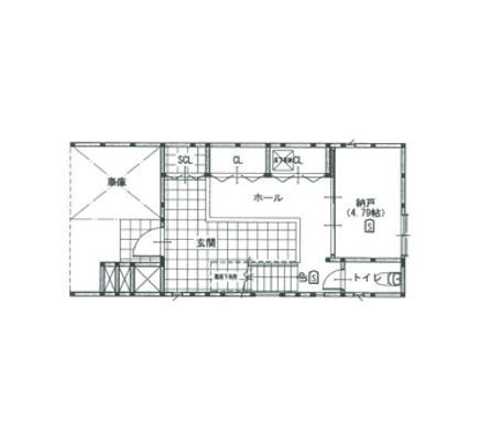
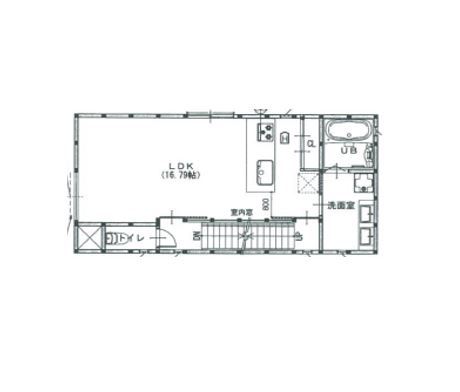
間取り図(2LDK)

1階
遊友建築工房 【西宮市/2000万円台/20坪台/間取り図有】クールなデザインの3階建て。室内へ入れば驚きの広さ、明るさ!の間取り図(2LDK)1階
2階
遊友建築工房 【西宮市/2000万円台/20坪台/間取り図有】クールなデザインの3階建て。室内へ入れば驚きの広さ、明るさ!の間取り図(2LDK)2階
3階
遊友建築工房 【西宮市/2000万円台/20坪台/間取り図有】クールなデザインの3階建て。室内へ入れば驚きの広さ、明るさ!の間取り図(2LDK)3階
この会社をもっと知りたくなったら
無料でお届け!まずはカタログ請求

内外観ギャラリー

この会社をもっと知りたくなったら
無料でお届け!まずはカタログ請求

この会社の他の建築実例を見る

この建築実例が気になった方へおすすめ

この建築実例の詳細情報

この建築実例を建てた店舗情報

住所 兵庫県尼崎市武庫之荘1-20-13 YUYU PARK 3F
問い合わせ
0120-11-8072
  • ※営業時間内の対応となります。

  • ※お問い合わせの際は「SUUMO(スーモ)を見て」とお伝え下さい。

ホームページ この会社のホームページへ

遊友建築工房のコンテンツ一覧

お問い合わせ

カタログをもらう
総合カタログ
遊友建築工房のカタログ(【USMORE】YU-YU STYLE 総合カタログ)
【USMORE】YU-YU STYLE 総合カタログ
問合コード:1660640001
お問い合わせ先
0120-11-8072
  • ※営業時間内の対応となります。

  • ※お問い合わせの際は「SUUMO(スーモ)を見て」とお伝え下さい。

  • 兵庫県尼崎市武庫之荘1-20-13 YUYU PARK 3F

  • 定休日:なし(年末年始・夏期休暇あり)

この会社のホームページへ

この会社が気になったら

カタログをもらう
総合カタログ
遊友建築工房のカタログ(【USMORE】YU-YU STYLE 総合カタログ)
【USMORE】YU-YU STYLE 総合カタログ
問合コード:1660640001

関連キーワード

この建築実例のその他の特徴
ページトップへ戻る