KEN建築工房

KEN建築工房

富田林・大阪狭山・河内長野で高気密高断熱・高耐震の木の家を建てる工務店
お気に入りに追加する
大阪府大阪狭山市
【大阪狭山市/猫と暮らすおうち】帰宅するたび心が丸くなる 猫と緑と暮らす家
  • 本体価格
    -
  • 延床面積
    139.85m2 (42.3坪)
    敷地面積
    193.03m2 (58.3坪)
    家族構成
    夫婦+子ども2人
    竣工年月
    2024年10月
    工法
    木造軸組
  • 特徴
    2階建て  |  収納充実  |  高気密・高断熱  |  こだわりの外観デザイン  |  和モダン  |  こだわりの内観デザイン  |  ペットと暮らす  |  …
この会社をもっと知りたくなったら
無料でお届け!まずはカタログ請求

施主のこだわり

ストレスフリーなお家に住みたいを叶えた邸宅

自然素材の木の外壁を使用したお家。猫と緑が楽しめる空間となっています。 キッチン、カップボード、洗面化粧台など既製品ではない、オリジナルの造作家具となっています。 今回のお家は、のんびりできる空間もありながら、家族や友人とワイワイできる空間も欲しい。ストレスフリーなお家に住みたい。といったご要望のお家です。 ◎自然素材を使用した家 吉野杉の無垢フローリング、オガファーザーの壁紙を使用。 ◎高断熱×高気密なお家 ◎広々とした玄関 たっぷりと太陽光の入る空間。… 続きを読む

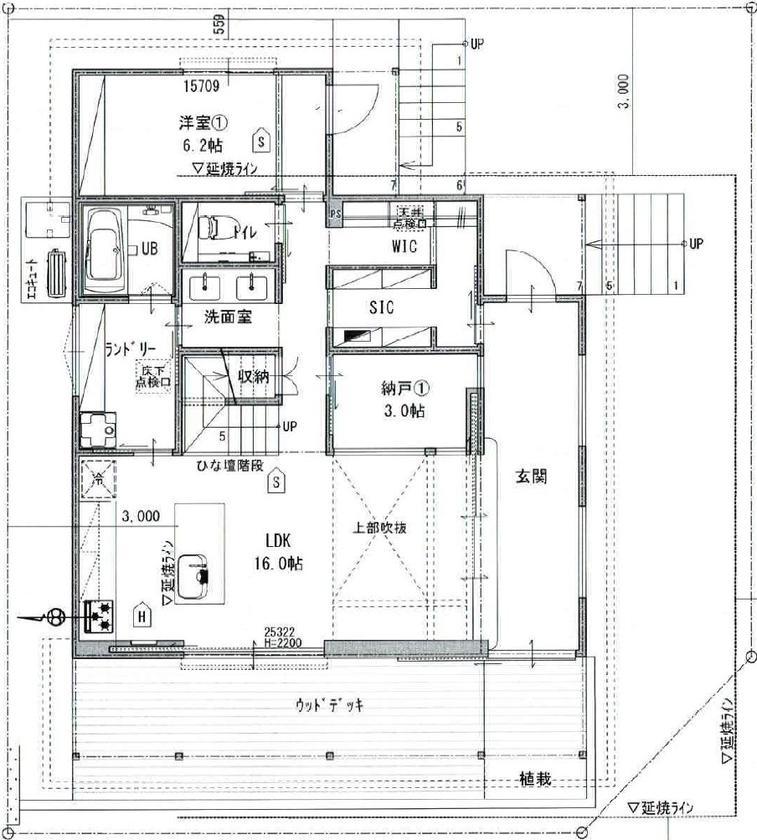
自然素材の木の外壁を使用したお家。猫と緑が楽しめる空間となっています。 キッチン、カップボード、洗面化粧台など既製品ではない、オリジナルの造作家具となっています。 今回のお家は、のんびりできる空間もありながら、家族や友人とワイワイできる空間も欲しい。ストレスフリーなお家に住みたい。といったご要望のお家です。 ◎自然素材を使用した家 吉野杉の無垢フローリング、オガファーザーの壁紙を使用。 ◎高断熱×高気密なお家 ◎広々とした玄関 たっぷりと太陽光の入る空間。「ここって外じゃないの?」と錯覚するような玄関空間となっています。 ◎吹き抜け空間のあるLDK 16.0帖のLDK 2階までの吹き抜け空間のため、開放的な空間となっています。 キッチンはシンクとコンロが2列に分かれたII型タイプのキッチンとなっています。 ◎2階のスタディスペース 2階を上がったところにはスタディスペースを設けています。 勉強をしたり、本を読むなどの空間として家族で使用することができます。 ◎猫も快適なキャットルーム 猫と一緒に暮らすお家ということで猫専用のお部屋も完備されています。 猫も快適に過ごすことができるよう、キャットウォークも設置しています。

間取り図(5K以上)

1階
KEN建築工房 【大阪狭山市/猫と暮らすおうち】帰宅するたび心が丸くなる 猫と緑と暮らす家の間取り図(5K以上)1階

2階
KEN建築工房 【大阪狭山市/猫と暮らすおうち】帰宅するたび心が丸くなる 猫と緑と暮らす家の間取り図(5K以上)2階

この会社をもっと知りたくなったら
無料でお届け!まずはカタログ請求

内外観ギャラリー

この会社をもっと知りたくなったら
無料でお届け!まずはカタログ請求

この会社の他の建築実例を見る

この建築実例が気になった方へおすすめ

  • この建築実例のカタログをもらう

    KEN建築工房のカタログ画像
    総合カタログ
    KEN ARCHITECT STUDIO -趣くままに木と暮らす-
    【南大阪エリア限定】木に囲まれた暮らしを見たい方はお気軽にご請求ください
  • モデルハウスを見学する

    KEN建築工房のモデルハウス画像1
    KEN建築工房のモデルハウス画像2
    • 延床面積
      -
    • 所在地
      大阪府富田林市高辺台1-11-12
    • 営業時間
      9:00~18:00(定休日:日曜日)
    • ナチュラル
    • 平屋
    • 外と繋がる
    • 快適
  • イベントに参加する

    KEN建築工房のイベント画像
    【随時開催中!】『平屋に憧れ』、『建てるならぜったい平屋!』など漠然とした思いをカタチに!家づくり・設計相談会
    • セミナー・教室
    • 設計・資金相談会
    開催日
    2025/9/10(水)~随時
    開催場所
    大阪府富田林市高辺台1-11-12

この建築実例の詳細情報

この建築実例を建てた店舗情報

住所 大阪府富田林市高辺台1-11-12
問い合わせ
0721-68-7325
  • ※営業時間内の対応となります。

  • ※お問い合わせの際は「SUUMO(スーモ)を見て」とお伝え下さい。

ホームページ この会社のホームページへ

KEN建築工房のコンテンツ一覧

お問い合わせ

カタログをもらう
総合カタログ
KEN建築工房のカタログ(KEN ARCHITECT STUDIO -趣くままに木と暮らす-)
KEN ARCHITECT STUDIO -趣くままに木と暮らす-
問合コード:1815600001
お問い合わせ先
0721-68-7325
  • ※営業時間内の対応となります。

  • ※お問い合わせの際は「SUUMO(スーモ)を見て」とお伝え下さい。

  • 大阪府富田林市高辺台1-11-12

  • 定休日:日曜日

この会社のホームページへ

この会社が気になったら

カタログをもらう
総合カタログ
KEN建築工房のカタログ(KEN ARCHITECT STUDIO -趣くままに木と暮らす-)
KEN ARCHITECT STUDIO -趣くままに木と暮らす-
問合コード:1815600001

関連キーワード

この建築実例のその他の特徴
ページトップへ戻る