赤野住宅工房

赤野住宅工房

100%自由設計。子どもが喜ぶ、家族の健康を守る、笑顔が溢れる楽しい家づくりを
お気に入りに追加する
広島県福山市  Mさん
家族をゆるやかにつなぐ、吹き抜けリビングのある家
赤野住宅工房 家族をゆるやかにつなぐ、吹き抜けリビングのある家の建築実例画像1
  • 本体価格
    2,960万円
    65.7万円/坪
  • 延床面積
    149.04m2 (45.0坪)
    敷地面積
    -
    家族構成
    夫婦+子ども1人
  • 竣工年月
    -
    工法
    木造軸組
この会社をもっと知りたくなったら
無料でお届け!まずはカタログ請求

施主Mさんのこだわり

遊び心と家事ラク動線が共存する、光あふれる住まい

大きな吹き抜けと梁に吊るされたハンモックが印象的なリビング。南側の天井まで伸びるスリット窓からはやさしい陽光がたっぷりと注ぎ込み、時間によって表情を変える光と影が、日常に豊かさを添える。リビング・ダイニング・キッチンが縦に並ぶレイアウトは、家族の気配を感じながらも動線がスムーズで、家事のしやすさも抜群。キッチンの正面には小上がりの畳コーナーを設け、小さなお子様の遊び場にぴったりの空間に。料理をしながら見守ることができる安心感も嬉しい。キッチン奥の大容量パン… 続きを読む

大きな吹き抜けと梁に吊るされたハンモックが印象的なリビング。南側の天井まで伸びるスリット窓からはやさしい陽光がたっぷりと注ぎ込み、時間によって表情を変える光と影が、日常に豊かさを添える。リビング・ダイニング・キッチンが縦に並ぶレイアウトは、家族の気配を感じながらも動線がスムーズで、家事のしやすさも抜群。キッチンの正面には小上がりの畳コーナーを設け、小さなお子様の遊び場にぴったりの空間に。料理をしながら見守ることができる安心感も嬉しい。キッチン奥の大容量パントリーからは、ファミリークローク、脱衣室へとつながる回遊動線になっており、毎日の家事を軽やかにサポートしてくれる。階段を上がった中2階には、家の中にそっと設けられた図書コーナーが。静かにこもれる落ち着いた空間で、本を開いたり、自分の時間を楽しんだりと、日常の中にそっと静けさを添えてくれる。また、吹き抜けに面した場所にはパソコンスペースを設け、1階とのつながりを感じながら作業ができるのも魅力のひとつ。“家族で心地よく過ごす”ことを何よりも大切にした、こだわりが詰まった住まいである。

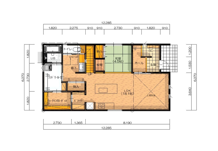
間取り図(5LDK+小屋裏収納)

1階
赤野住宅工房 家族をゆるやかにつなぐ、吹き抜けリビングのある家の間取り図(5LDK+小屋裏収納)1階
2階
赤野住宅工房 家族をゆるやかにつなぐ、吹き抜けリビングのある家の間取り図(5LDK+小屋裏収納)2階
この会社をもっと知りたくなったら
無料でお届け!まずはカタログ請求

内外観ギャラリー

この会社をもっと知りたくなったら
無料でお届け!まずはカタログ請求

この会社の他の建築実例を見る

この建築実例が気になった方へおすすめ

  • この建築実例のカタログをもらう

    赤野住宅工房のカタログ画像
    施工実例集
    赤野住宅工房 Company Profile & Works
    さまざまな実例が紹介されたアイディア満載のカタログ。設備機能の説明も掲載。

この建築実例の詳細情報

この建築実例を建てた店舗情報

住所 岡山県倉敷市玉島乙島6755
問い合わせ
086-523-6222
  • ※営業時間内の対応となります。

  • ※お問い合わせの際は「SUUMO(スーモ)を見て」とお伝え下さい。

ホームページ この会社のホームページへ

赤野住宅工房のコンテンツ一覧

お問い合わせ

カタログをもらう
施工実例集
赤野住宅工房のカタログ(赤野住宅工房 Company Profile & Works)
赤野住宅工房 Company Profile & Works
問合コード:1825430001
お問い合わせ先
086-523-6222
  • ※営業時間内の対応となります。

  • ※お問い合わせの際は「SUUMO(スーモ)を見て」とお伝え下さい。

  • 岡山県倉敷市玉島乙島6755

  • 定休日:水曜日

この会社のホームページへ

この会社が気になったら

カタログをもらう
施工実例集
赤野住宅工房のカタログ(赤野住宅工房 Company Profile & Works)
赤野住宅工房 Company Profile & Works
問合コード:1825430001

関連キーワード

この建築実例のその他の特徴
ページトップへ戻る