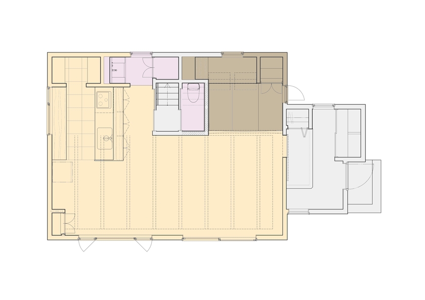
8本の梁を見せた天井が、21帖のLDKに心地よい開放感をプラス。広々としたリビングで、ご家族とのびのびと過ごせます。リビング横の和室には、読書やお昼寝にぴったりの“ヌック”を設けており、ちょっとした特別なひとときを楽しめる空間に。ロールスクリーンで仕切れば、個室としても使えて便利です。また、キッチン横のパントリーや造作家具、リビングの収納など、片付けやすく暮らしやすい工夫も充実。水まわりはお施主様のご希望で2階にまとめ、1階はLDKを中心にゆとりある空間設… 続きを読む
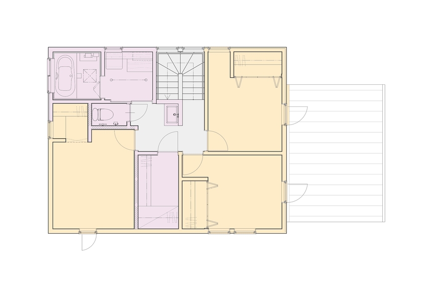
8本の梁を見せた天井が、21帖のLDKに心地よい開放感をプラス。広々としたリビングで、ご家族とのびのびと過ごせます。リビング横の和室には、読書やお昼寝にぴったりの“ヌック”を設けており、ちょっとした特別なひとときを楽しめる空間に。ロールスクリーンで仕切れば、個室としても使えて便利です。また、キッチン横のパントリーや造作家具、リビングの収納など、片付けやすく暮らしやすい工夫も充実。水まわりはお施主様のご希望で2階にまとめ、1階はLDKを中心にゆとりある空間設計に。暮らしやすさを大切にした、快適な動線にもこだわりました。
ベージュ系の外壁と木目の風合いを感じさせる外壁材を組み合わせることで、やわらかく温かみのある印象の外観に仕上げ… 続きを読む
ベージュ系の外壁と木目の風合いを感じさせる外壁材を組み合わせることで、やわらかく温かみのある印象の外観に仕上げている。ベージュの穏やかなトーンがベースとなり、木目調の外壁がアクセントとして空間に深みを与えるため、単調にならず自然素材の豊かな表情が際立つデザインだ。木目調のドアを設置することで、外観全体の統一感を高めるとともに、やわらかな印象もプラス。屋根はゆるやかな片流れのデザインで、シンプルながらもスタイリッシュな印象を演出し、モダンさと自然素材の調和が感じられる外観になっている
食洗器ミーレを採用し、大容量で洗浄力が高く静音性や耐久性にも優れているので、家事効率がアップ。キッチンの奥には… 続きを読む
食洗器ミーレを採用し、大容量で洗浄力が高く静音性や耐久性にも優れているので、家事効率がアップ。キッチンの奥にはパントリーがあり、調味料やキッチン家電をまとめて収納でき、作業台を広々と使うことができる。パントリーの奥には自由にカスタマイズできるボードを設置しており、エプロンやキッチングッズなどを掛けられるように工夫している。必要なものにすぐに手が届く配置のため、調理や片付けの動作がスムーズに行え、家事の効率を高めながら整理整頓もしやすい実用的なキッチンになっている
脱衣室兼ランドリールームは窓が設けられていることで、明るく清潔感のある雰囲気を保つことができる。収納スペースも… 続きを読む
脱衣室兼ランドリールームは窓が設けられていることで、明るく清潔感のある雰囲気を保つことができる。収納スペースも確保されているため、タオルや洗剤、洗濯用具などをすっきりと整理できる。天井には昇降式の吊り下げタイプの物干しを設置し、洗濯から乾燥までをまとめて行うことができる。使わないときには収納できるため、限られたスペースを有効活用できるのも魅力のひとつ。ガス衣類乾燥機「乾太くん」専用の造作収納を採用していることで配管を隠し、スッキリと見せることができる
| 住所 | 岡山県赤磐市河本910-1 |
| 問い合わせ | |
| ホームページ | この会社のホームページへ |