アンドクリエイト

アンドクリエイト

あなたの夢+αの住まいづくりをご提案いたします
お気に入りに追加する
新潟県長岡市  Bさん
ニューヨークの歴史あるホテルのようなインテリアデザインの家
アンドクリエイト ニューヨークの歴史あるホテルのようなインテリアデザインの家の建築実例画像1
  • 本体価格
    2,000万円2,499万円
    62.4万円77.9万円/坪
  • 延床面積
    106.10m2 (32.0坪)
    敷地面積
    158.60m2 (47.9坪)
    家族構成
    夫婦
  • 竣工年月
    2021年12月
    工法
    木造軸組
この会社をもっと知りたくなったら
無料でお届け!まずはカタログ請求

施主Bさんのこだわり

スチール階段×勾配天井で広がるヴィンテージデザインの家

「非日常的な空間で生活したい」施主のそんな想いを現実化したのがこちらのお宅。フローリング材と天井材に無垢の木材を使用することでナチュラルなテイストを残しつつ、直線的な部材の配置によりモダンなインテリアに仕上げている。注文住宅検討者にとって憧れの吹き抜け&リビング階段を設えているのも豪奢の一語に尽きる。キッチンと背面キャビネットには色味の違う木目を採用し、ヴィンテージテイストながらも爽やかさも感じられるような美しい仕上がりとなった。洗面脱衣室から2階居室に至… 続きを読む

「非日常的な空間で生活したい」施主のそんな想いを現実化したのがこちらのお宅。フローリング材と天井材に無垢の木材を使用することでナチュラルなテイストを残しつつ、直線的な部材の配置によりモダンなインテリアに仕上げている。注文住宅検討者にとって憧れの吹き抜け&リビング階段を設えているのも豪奢の一語に尽きる。キッチンと背面キャビネットには色味の違う木目を採用し、ヴィンテージテイストながらも爽やかさも感じられるような美しい仕上がりとなった。洗面脱衣室から2階居室に至るまで、あらゆる箇所で決して手を抜かないアンドクリエイトの家づくりが集約されたようなデザイン建築のお手本のような邸宅となった

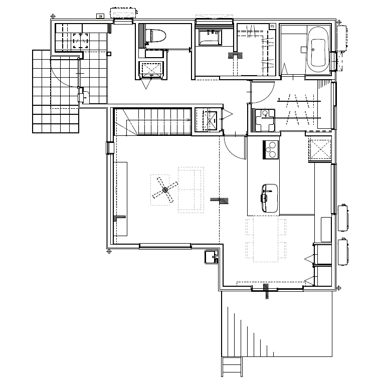
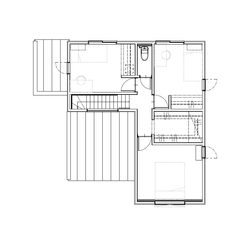
間取り図(3LDK)

1階
アンドクリエイト ニューヨークの歴史あるホテルのようなインテリアデザインの家の間取り図(3LDK)1階
2階
アンドクリエイト ニューヨークの歴史あるホテルのようなインテリアデザインの家の間取り図(3LDK)2階
この会社をもっと知りたくなったら
無料でお届け!まずはカタログ請求

内外観ギャラリー

この会社をもっと知りたくなったら
無料でお届け!まずはカタログ請求

この会社の他の建築実例を見る

この建築実例が気になった方へおすすめ

この建築実例の詳細情報

この建築実例を建てた店舗情報

住所 新潟県新潟市中央区湖南5-4
問い合わせ
0800-800-7070
  • ※営業時間内の対応となります。

  • ※お問い合わせの際は「SUUMO(スーモ)を見て」とお伝え下さい。

ホームページ この会社のホームページへ

アンドクリエイトのコンテンツ一覧

お問い合わせ

カタログをもらう
総合カタログ
アンドクリエイトのカタログ(アンドクリエイト総合カタログ)
アンドクリエイト総合カタログ
問合コード:1548090001
お問い合わせ先
0800-800-7070
  • ※営業時間内の対応となります。

  • ※お問い合わせの際は「SUUMO(スーモ)を見て」とお伝え下さい。

  • 新潟県新潟市中央区湖南5-4

この会社のホームページへ

この会社が気になったら

カタログをもらう
総合カタログ
アンドクリエイトのカタログ(アンドクリエイト総合カタログ)
アンドクリエイト総合カタログ
問合コード:1548090001

関連キーワード

この建築実例のその他の特徴
ページトップへ戻る