吹抜けの家  福山住宅

吹抜けの家 福山住宅

住みたい町で土地探しから家作り 土地探し成功率70% 北摂・阪神間に実績
お気に入りに追加する
大阪府池田市  Cさん
【吹き抜け/北摂/2000万円台/間取有り】性能と暮らし心地にこだわった家
吹抜けの家  福山住宅 【吹き抜け/北摂/2000万円台/間取有り】性能と暮らし心地にこだわった家の建築実例画像1
  • 本体価格
    2,500万円2,999万円
    97.9万円117.4万円/坪
  • 延床面積
    84.46m2 (25.5坪)
    敷地面積
    100.35m2 (30.3坪)
    家族構成
    夫婦
  • 竣工年月
    2024年2月
    工法
    2×4、2×6
この会社をもっと知りたくなったら
無料でお届け!まずはカタログ請求

施主Cさんのこだわり

「思い出の家具が映えるレトロモダンな家が完成しました。全てが心地よい空間です」

大阪府池田市に完成したC様邸は、レトロモダンなデザインを基調にした、温かみのある住まいである。施主のC様は「生家の家具や調度品を大切にしたい」という思いから、空間に調和するよう設計を進めた。特に、吹抜けのあるリビングは、自然光がたっぷりと入る開放的な空間を実現し、家族が集う場所として最適だ。また、2×4工法により、優れた断熱性が確保され、冬場でも快適な温度を保つことができる。C様は「気密性に優れ、結露の心配がないので安心して過ごせます。地震にも強い設計で、… 続きを読む

大阪府池田市に完成したC様邸は、レトロモダンなデザインを基調にした、温かみのある住まいである。施主のC様は「生家の家具や調度品を大切にしたい」という思いから、空間に調和するよう設計を進めた。特に、吹抜けのあるリビングは、自然光がたっぷりと入る開放的な空間を実現し、家族が集う場所として最適だ。また、2×4工法により、優れた断熱性が確保され、冬場でも快適な温度を保つことができる。C様は「気密性に優れ、結露の心配がないので安心して過ごせます。地震にも強い設計で、家族全員が安心して暮らせる家になりました」と語る。さらに、間取りの工夫も施され、各部屋の動線がスムーズで、日常生活がより快適に行えるよう配慮されている。C様邸は、福山住宅の一級建築士が設計を担当し、細部にわたるデザインのこだわりが感じられる。また、希望エリアの土地探しもサポートしてもらい、理想の家を実現するためのプロセスが心に残る経験となった。家づくりを通じて得られた満足感は、C様にとって一生の宝物である。

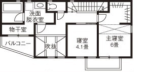
間取り図(3LDK)

1階
吹抜けの家  福山住宅 【吹き抜け/北摂/2000万円台/間取有り】性能と暮らし心地にこだわった家の間取り図(3LDK)1階
2階
吹抜けの家  福山住宅 【吹き抜け/北摂/2000万円台/間取有り】性能と暮らし心地にこだわった家の間取り図(3LDK)2階
この会社をもっと知りたくなったら
無料でお届け!まずはカタログ請求

内外観ギャラリー

この会社をもっと知りたくなったら
無料でお届け!まずはカタログ請求

この会社の他の建築実例を見る

この建築実例が気になった方へおすすめ

  • この建築実例のカタログをもらう

    吹抜けの家  福山住宅のカタログ画像
    総合カタログ
    福山住宅の家づくりコンセプト
    “強さ”に支えられ、“美しさ”に囲まれた“健康”に暮らせる住まいをお届けします。

この建築実例の詳細情報

この建築実例を建てた店舗情報

住所 大阪府大阪市北区天神橋3-8-6
問い合わせ
0120-828-812
  • ※営業時間内の対応となります。

  • ※お問い合わせの際は「SUUMO(スーモ)を見て」とお伝え下さい。

ホームページ この会社のホームページへ

吹抜けの家 福山住宅のコンテンツ一覧

お問い合わせ

カタログをもらう
総合カタログ
吹抜けの家  福山住宅のカタログ(福山住宅の家づくりコンセプト)
福山住宅の家づくりコンセプト
問合コード:1359000001
お問い合わせ先
0120-828-812
  • ※営業時間内の対応となります。

  • ※お問い合わせの際は「SUUMO(スーモ)を見て」とお伝え下さい。

  • 大阪府大阪市北区天神橋3-8-6

  • 定休日:水曜日

この会社のホームページへ

この会社が気になったら

カタログをもらう
総合カタログ
吹抜けの家  福山住宅のカタログ(福山住宅の家づくりコンセプト)
福山住宅の家づくりコンセプト
問合コード:1359000001

関連キーワード

この建築実例のその他の特徴
ページトップへ戻る