シンプルハウス

シンプルハウス

自由設計・耐震等級3・断熱等性能等級6を圧倒的コスパで!
お気に入りに追加する
滋賀県草津市  Tさん
【1000万円台/延床面積30坪台/家事ラクの間取り】おしゃれな階段のあるシンプルな三角屋根の外観の家
  • 本体価格
    1,654万円
    52.9万円/坪
  • 延床面積
    103.50m2 (31.3坪)
    敷地面積
    150.25m2 (45.4坪)
    家族構成
    夫婦(30代)+子ども1人
    竣工年月
    2020年7月
    工法
    木造軸組
  • 特徴
    耐震・免震・制震  |  2階建て  |  省エネ・創エネ・エコ(eco)  |  収納充実  |  家事がラク  |  高耐久  |  こだわりの外観デザイン  |  …
この会社をもっと知りたくなったら
無料でお届け!まずはカタログ請求

施主Tさんのこだわり

「憧れのデザインはもちろん、ストレスのない動線や収納プランにも納得です」

シンプルな三角屋根、四角い窓、木質のドア、黄色いポストと植栽…。たったこれだけで街並みに映えるおしゃれなデザインに仕上げた外観は「毎日、家に帰ってくるのが楽しいです」というTさんのお気に入りのポイントのひとつだ。室内は高窓から光や風を招き入れる吹抜けや側面に木をあしらった階段が絶妙のバランスで配置して、落ち着いたモダンな雰囲気にコーディネート。「明るくて開放的なのに戸外の視線が気にならない」おしゃれな空間が広がっている。さらに注目しておきたいのは、洗面スペ… 続きを読む

シンプルな三角屋根、四角い窓、木質のドア、黄色いポストと植栽…。たったこれだけで街並みに映えるおしゃれなデザインに仕上げた外観は「毎日、家に帰ってくるのが楽しいです」というTさんのお気に入りのポイントのひとつだ。室内は高窓から光や風を招き入れる吹抜けや側面に木をあしらった階段が絶妙のバランスで配置して、落ち着いたモダンな雰囲気にコーディネート。「明るくて開放的なのに戸外の視線が気にならない」おしゃれな空間が広がっている。さらに注目しておきたいのは、洗面スペースを中心に独立した脱衣室、洗濯物の室内干しができる家事室が短い動線でつながれた「家事ラク」の水廻り動線だ。「この間取りのおかげで日々の暮らしがすごく快適。ストレスを感じない家です」とTさん。2階ホールには家族共用の収納が設けられ、主寝室には2WAYのウォークイン・クローゼットも実現した。

間取り図(3LDK)

1階
シンプルハウス 【1000万円台/延床面積30坪台/家事ラクの間取り】おしゃれな階段のあるシンプルな三角屋根の外観の家の間取り図(3LDK)1階

家族が自然と顔を合わせるように階段はリビングに設けた。注目は洗面スペース。洗濯機置き場のある独立した脱衣室、室内干しができる家事スペースが実に短い動線でつながれている。「毎日の家事がすごくラク。ストレスフリーの間取りです」とTさんは話す。家事室やリビングは庭から自然の風を招き入れられるように大きな掃… 続きを読む

家族が自然と顔を合わせるように階段はリビングに設けた。注目は洗面スペース。洗濯機置き場のある独立した脱衣室、室内干しができる家事スペースが実に短い動線でつながれている。「毎日の家事がすごくラク。ストレスフリーの間取りです」とTさんは話す。家事室やリビングは庭から自然の風を招き入れられるように大きな掃き出し窓が設けられている点も暮らし良さのポイントだ。

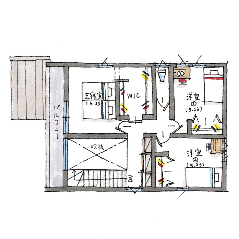
2階
シンプルハウス 【1000万円台/延床面積30坪台/家事ラクの間取り】おしゃれな階段のあるシンプルな三角屋根の外観の家の間取り図(3LDK)2階

階段を上がってすぐの場所には家族共用の収納を設計。主寝室に隣接するウォークイン・クローゼットは主寝室側からも廊下側からも出入りできる便利な2WAYアクセス。

階段を上がってすぐの場所には家族共用の収納を設計。主寝室に隣接するウォークイン・クローゼットは主寝室側からも廊下側からも出入りできる便利な2WAYアクセス。

この会社をもっと知りたくなったら
無料でお届け!まずはカタログ請求

内外観ギャラリー

この会社をもっと知りたくなったら
無料でお届け!まずはカタログ請求

施主Tさんがこの会社に決めた理由

1000万円台(1654万円)で憧れの家!アドバイスが的確で何もかもがスムーズ

「予算の範囲内でおしゃれな家を叶えたい!」と考えていたTさんは土地探しから頼れる会社としてシンプルハウスに相談。「スタッフの方がすごく話しやすくて、土地探しや資金相談はもちろん間取りやデザインに的確なアドバイスがもらえると実感できたこと」が依頼の決め手になったと言う。「モデルハウスや完成見学会でシンプルハウスさんの家を見て、どの家も動きやすい動線が提案されているうえに、コーディネートのテイストも多彩でおしゃれに仕上げられていました。打合せをスタートしてから… 続きを読む

「予算の範囲内でおしゃれな家を叶えたい!」と考えていたTさんは土地探しから頼れる会社としてシンプルハウスに相談。「スタッフの方がすごく話しやすくて、土地探しや資金相談はもちろん間取りやデザインに的確なアドバイスがもらえると実感できたこと」が依頼の決め手になったと言う。「モデルハウスや完成見学会でシンプルハウスさんの家を見て、どの家も動きやすい動線が提案されているうえに、コーディネートのテイストも多彩でおしゃれに仕上げられていました。打合せをスタートしてからは、間取りやデザインが次々と形になっていき、すごく楽しかったです」とTさん。側面に木をあしらったおしゃれな階段が印象的な吹抜けリビングの家を実現したTさんは「大満足です」と同社との家づくりを振り返っていた。

この建築実例の担当者より

土地探しから間取り、デザインまでお手伝い。耐震等級3が標準です

何からどう進めればいいの?と不安なことがいっぱいの家づくり。私たちシンプルハウスのスタッフはそんなお客様の気持ちに寄り添って、わかりやすくシンプルに土地探しから間取り、デザインまでトータルでお手伝いしています。まずは「憧れの暮らし」や「ご家族の希望」を遠慮なくお話しください。コストを抑えても暮らしやすくて、おしゃれな家が実現できると、ぜひ多くのお客様に知っていただきたいと思います。耐震等級3など充実の標準仕様についてもお話させていただければと思います。私た… 続きを読む

何からどう進めればいいの?と不安なことがいっぱいの家づくり。私たちシンプルハウスのスタッフはそんなお客様の気持ちに寄り添って、わかりやすくシンプルに土地探しから間取り、デザインまでトータルでお手伝いしています。まずは「憧れの暮らし」や「ご家族の希望」を遠慮なくお話しください。コストを抑えても暮らしやすくて、おしゃれな家が実現できると、ぜひ多くのお客様に知っていただきたいと思います。耐震等級3など充実の標準仕様についてもお話させていただければと思います。私たちと一緒に憧れの家を予算内で形にしませんか。家づくり相談会(無料)は栗東スタジオで毎日夜7時まで開催しています。どうぞお気軽にお越しください。

シンプルハウスの担当者画像
設計インテリア担当
兒玉紗也華
得意分野
プラン提案(女性目線の動線と収納提案)・二級建築士
実績
12棟

この会社の他の建築実例を見る

この建築実例が気になった方へおすすめ

この建築実例の詳細情報

この建築実例を建てた店舗情報

店舗名 栗東オープンスタジオ
住所 滋賀県栗東市小柿3丁目4-37
問い合わせ
0120-255-252
  • ※営業時間内の対応となります。

  • ※お問い合わせの際は「SUUMO(スーモ)を見て」とお伝え下さい。

ホームページ この会社のホームページへ

シンプルハウスのコンテンツ一覧

お問い合わせ

カタログをもらう
総合カタログ
シンプルハウスのカタログ(シンプルハウス コンセプトブック)
シンプルハウス コンセプトブック
問合コード:0766830001

この会社が気になったら

カタログをもらう
総合カタログ
シンプルハウスのカタログ(シンプルハウス コンセプトブック)
シンプルハウス コンセプトブック
問合コード:0766830001

関連キーワード

この建築実例のその他の特徴
ページトップへ戻る